仲介物件の多くは『レインズ』という不動産会社だけが利用できる情報サイトに掲載されています。レインズはどの不動産会社も同じ情報にアクセスできる仕組みのため、会社によって紹介できる物件が限定されるということはほとんどありません。
当サイトに掲載されていない物件であっても、気になる物件があれば、仲介手数料無料または割引(規定上限額の30〜50%)でご案内可能です。そのため、物件の条件にかかわらず、常にお客さまのご負担を最小限に抑えたご提案を行っています。
■マートルコート代々木八幡概要
■過去掲載物件 1F
■過去掲載物件 1F

東京メトロ千代田線「代々木公園」駅から歩いて12分のマンションのご紹介です♪駅周辺は新鮮な野菜が揃っているスーパーやファストフード店などがあるので帰り道など気軽に立ち寄れちゃいますねσ(*ゝω・*)

すぐ近くには小田急線の「代々木八幡」駅もあるので新宿に出るときはこちらが便利です。


山手通りの歩道はきちんと舗装されているので歩きやすくベビーカーなども使いやすい道でした。大通りから横道に入ると周辺は静かな住宅街へと変わっていきます✿


駅から距離はありますがスーパー、ドラッグストア、コンビニが揃っているので、必要最低限の買い物をおうちの近くで済ませられますよ(*˘︶˘*)

凸凹とした立体感あるデザインで重厚感のある「マートルコート代々木八幡」。

奥まった造りのエントランスアプローチ✨植栽も手入れが行き届き管理体制の良さが伺えます✿

シンプルで無駄のないエントランスホールがお出迎え♪オートロックではありませんが、管理人さんの目と防犯カメラでセキュリティ面も少しは安心できそう♡
【マートルコート代々木八幡 1F】はご成約となりましたが、弊社では他にも仲介手数料無料もしくは30%OFFでご紹介できる物件を多数(売買も賃貸も)扱っております。
お問い合せを頂けましたら、皆様にぴったりなお部屋をお探しさせて頂きます♪
☆本物件の賃貸管理も承ります。管理費等の諸条件ご相談下さい☆

●種類 中古マンション/リノベーション
●住所 渋谷区初台2-7-14
●築年月 昭和58年6月
●構造 鉄筋コンクリート造 6階建1階部分
●土地 所有権
●総戸数 27戸
●管理会社 三井不動産レジデンシャルサービス株式会社
●専有 51.15㎡
●テラス 7.15㎡
●専用庭 15.26㎡
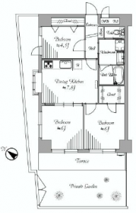
●間取り 1SLDK
○管理費 15,180円/月
○修繕積立金 24,760円/月
○専用庭使用料 1,100円/月
○組合運営費 150円/月
○駐車場 無
○駐輪場 空有(500円/月)
※ペット飼育 可(小型犬及び猫・小鳥・籠の中で飼育することのできる小動物)
▲2019年5月17日更新▲
ACCESS
・小田急線 『代々木八幡』駅 徒歩11分
・京王新線 『初台』駅 徒歩11分
・東京メトロ千代田線 『代々木公園』駅 徒歩12分
ブラウンを基調とした温かみのある玄関がお出迎え(v´∀`v)ペットと一緒に暮らせる1階のお部屋です♪

玄関上がってすぐにあるシューズボックスには、靴や掃除道具をたっぷりしまえます✨可動棚仕様で使い勝手も抜群(v´∀`v)

サニタリールームも玄関上がってすぐのところに✨洗面台、洗濯機置き場、バスルームがまとまっているので、水仕事や掃除をスムーズに済ませられます♪


洗面台はシンプルですが、十分な収納、シャワー水栓、広い洗面ボウルが備わります✨白を基調とし、清潔感もたっぷり♡

サニタリールームにはトイレが併設しています(♡˙︶˙♡)

ペーパーやトイレ用品をたっぷりしまえる戸棚付きで、スッキリとした空間を保てますよ♪

ライトブラウンのパネルが癒しの空間演出ヽ(≧∀≦)ノ新規交換されているので、新生活を気持ち良くスタート出来ます♬

もちろん、浴室乾燥機付き(*˘︶˘*)クリーンな空間を保ち、毎日のお手入れも楽々♪雨の日の洗濯もお任せあれ☂

サニタリールームの向かいにあるのは、約4.4帖のお部屋(^^♪ 換気の出来る窓が、快適空間に導いてくれます♡

洋服や小物をたっぷりしまえるクローゼット付き☆少しでもお部屋を広く使えます♪

お待ちかねのリビングダイニングキッチンへ(*^-^*)

広さは約12.2帖。ライトブラウン×ホワイトの温かみある空間は、入った途端にホッと落ち着きます♡手前にキッチンがあるので、重たい買い物袋を持ち運ぶのも楽々♪

壁面積の広い縦長の間取りなので、家具の配置もしやすそうですヽ(*´∀`*)ノ

リビングを見渡せる対面式キッチンなので、家族との会話を楽しみながら料理が出来ます(*´ω`pq゛

どこに何があるか一目でわかるスライド式収納仕様(*^-^*)足元のデッドスペースまで物をしまえます☆

こちらは、リビングから行き来できる約7.6帖のお部屋ヽ(*´∀`*)ノ窓の向こうかはお庭の緑が見え、爽やかな雰囲気です✨

備え付けのクローゼットは奥行きがあるので、工夫次第で沢山の物をしまえそう♪

家庭菜園や水遊びを楽しめる専用庭付き✿人の背よりも高い木々が目隠しの役割を果たしてくれていますよ♪
【動画もご覧ください】
https://youtu.be/krXQt5ds7FA
mach19e17
都心の仲介手数料無料、割引の中古マンションをお探しの方はハイアーグラウンドまでお問い合わせ下さいませ♪
【マートルコート代々木八幡 1F】はご成約となりましたが、弊社では売買物件も賃貸物件も一律仲介手数料30%Offで ご紹介しております。
また、売買も賃貸も仲介手数料無料物件を多数ご用意しております。
是非お問い合せを頂けましたら、皆様にぴったりなお部屋をお探しさせて頂きます♪

●住所 渋谷区初台2-7-14
●築年月 昭和58年6月
●構造 鉄筋コンクリート造 6階建1階部分
●土地 所有権
●総戸数 27戸
●管理会社 三井不動産レジデンシャルサービス(株)
●専有 54.87㎡
●テラス 7.67㎡
●専用庭 27.67㎡
●間取り 3DK
○管理費 16,171円/月
○修繕積立金 26,560円/月
○専用庭使用料 1,980円/月
○組合運営費 150円/月
○駐車場 無
※ペット飼育可(細則有)
※アフターサービス保証付
ACCESS
・小田急線 『代々木八幡』駅 徒歩11分
・京王新線 『初台』駅 徒歩11分
・東京メトロ千代田線 『代々木公園』駅 徒歩12分

柔らかな雰囲気のある室内はフルフラットで誰にでも優しい造りに♥♡

フットライトの付いたシューズボックスは玄関周りを明るい印象にしてくれます。両開きのシューズボックスは収納力も高く家族全員分しっかりとしまうことができますね。



玄関ホールの右手側には約4.5帖の洋室です。縦長の窓から光が差し込む明るい一部屋となっています(≧∀≦)
枕棚付のクローゼットは衣類はもちろん寝具などかさばる物も綺麗にしまっておけますね。

反対側はサニタリールームです。
スライドドアなので玄関ホールや脱衣所スペースが狭くなる心配もありませんよ。

凹凸のない洗面台は毎日のお掃除も楽々です。
蛇口もシャワーに切り替えることができるのでちょっとした洗髪も出来そう☆


浴室乾燥機・追炊き機能完備のバスルームはゆったりと出来そうな浴槽にワイドミラーが魅力的(●’艸`*)

反対側はウォシュレット完備のトイレです。
上部に吊戸棚があるので掃除用具などの置き場所にも困りません!



突き当たりは約8帖のダイニングキッチンです。
優しい色調の室内はホッと落ち着ける空間ですo(≧ω≦)o


人造大理石張りのキッチンはワークトップも広く料理もスムーズに行うことが出来ますよ。食器をしまうスペースが少し狭いですが、大きくかさばる調理器具などは楽々しまっておけそうです。


スライドドアの先は約6帖の洋室です。2面採光になるので光が入り明るく風通しの良い一部屋(*・´ω`・*)
扉を開けきれば約14帖の広々としたダイニングキッチンにもなりますよ。


隣は約6帖と同じ大きさの洋室です。
こちらのお部屋には大きなクローゼットが設置されています。
照明も付いているのでしまってある物が見やすいですし、ハンガーポールで綺麗にしまっておく事ができますね✿

テラスと専用庭で約35㎡ある広々とした空間は洗濯物を干すだけでは物足りないくらい。高さのある塀がプライベートをきちんと守ってくれているので安心して寛ぐことができそうです(○´艸`)

1階なので景色を遠くまで望むことは出来ませんが、空は遮られていないので陽射しは充分にはいってきますよ。

ウッドチップが敷き詰められた専用庭♥♡
ペットと遊ぶもよし、ガーデニングするもよしで楽しみが広がりますよ(*´▽`)◇ゞ
【動画もご覧ください】
http://youtu.be/IiiQmFYUEfM
Na.14F07