ライオンズマンション南青山グランフォート

ライオンズマンション南青山グランフォート

URLとタイトルをコピーしました!

仲介手数料最大無料でライオンズマンション南青山グランフォートを購入したい方へ。定休日なし・内見予約や無料相談はお気軽にどうぞ!賃貸の住まい探しもお任せください。

仲介手数料最大無料でご紹介

東京グラウンド掲載物件以外も
仲介手数料が最大無料!

仲介物件の多くは『レインズ』という不動産会社だけが利用できる情報サイトに掲載されています。レインズはどの不動産会社も同じ情報にアクセスできる仕組みのため、会社によって紹介できる物件が限定されるということはほとんどありません。
仲介手数料最大無料でご紹介 当サイトに掲載されていない物件であっても、気になる物件があれば、仲介手数料無料または割引(規定上限額の30〜50%)でご案内可能です。そのため、物件の条件にかかわらず、常にお客さまのご負担を最小限に抑えたご提案を行っています。

●ご購入以外の当社サービスについても、すべて無料相談を承っております

ご希望のサービスにチェックを入れて、お問い合わせフォームへお進みください。

無料相談する

仲介手数料無料(ゼロ)物件/中古マンション

【ライオンズマンション南青山グランフォート 2F】はご成約となりましたが、弊社では売買物件賃貸物件一律仲介手数料30%Offで ご紹介しております。
また、売買も賃貸も仲介手数料無料物件も多数ご用意しております。
是非お問い合せを頂けましたら、皆様にぴったりなマンションをお探しさせて頂きます♪

ライオンズマンション南青山グランフォート 2階

●住所   港区南青山7-5-4
●築年数   平成13年4月
●構造   鉄筋コンクリート造 7階建て2階部分
●土地   所有権
●総戸数   36戸
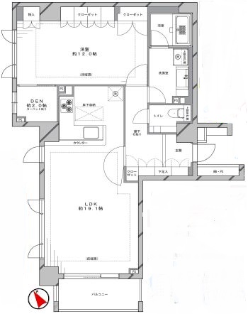
●専有   77.33㎡ ●バルコニー  5.55㎡
●間取り  1LDK+DEN
○管理費   18,510円
○修繕積立金   11,290円
○駐車場  空有(35,000円~45,000円/月・大きさ制限あり)

※ペット飼育  可(規約有)
※事務所使用  不可
※平成26年2月大規模修繕工事実施済 ※フラット35S適合物件

ACCESS ・東京メトロ千代田線・銀座線・半蔵門線 『表参道』駅 徒歩13分
・東京メトロ日比谷線 『広尾』駅 徒歩14分
・JR山手線各線 『渋谷』駅 徒歩16分

【間取り】





ご紹介する「ライオンズマンション南青山グランフォート」があるのは、「南青山7丁目」。

六本木通りの交差点から、広尾方面へ曲がります。ENEOSが目印ですね★そうすると、坂道が現れて・・・


静かな住宅地へと入ります。



六本木通りが近いのに、「ライオンズマンション南青山グランフォート」の周辺は交通量も少なく、歩行者にもとても優しい環境です(^^) 近くには病院や大使館、教育環境も揃っており高級住宅が建ち並んでいます。



夜はライトアップされて、また違った雰囲気になります…★




上品な門構えのエントランス。この門の部分からからオートロック対応で、部外者を少しも寄せ付けない警戒態勢があります。



駐車場も空きがございます!どの駅からも結構徒歩距離があるので、やっぱり車があったほうが何かと便利でしょう!!



室内は南西角部屋に位置しており、日当たり良好☆室内にいても開放感たっぷりです(^^)

骨董通りも近く、周辺にはセレブ御用達のレストランもございます★
ワンランク上の生活を落ち着いた空間でお過ごしいただけるはず☆


ご紹介のお部屋は現在リノベーション中ですが、工事中も眺望や陽当たりなどを実際ご覧いただけますのでどうぞお気軽にお問い合わせください☆

【og14D15】

不動産にまつわるご相談・ご質問・資料請求など
まずはお気軽にお問い合わせくださいませ。