仲介物件の多くは『レインズ』という不動産会社だけが利用できる情報サイトに掲載されています。レインズはどの不動産会社も同じ情報にアクセスできる仕組みのため、会社によって紹介できる物件が限定されるということはほとんどありません。
当サイトに掲載されていない物件であっても、気になる物件があれば、仲介手数料無料または割引(規定上限額の30〜50%)でご案内可能です。そのため、物件の条件にかかわらず、常にお客さまのご負担を最小限に抑えたご提案を行っています。
【第二整美楽マンション 5F】はご成約となりましたが、弊社では売買物件も賃貸物件も一律仲介手数料30%Offで ご紹介しております。
また、売買も賃貸も仲介手数料無料物件も多数ご用意しております。
是非お問い合せを頂けましたら、皆様にぴったりなマンションをお探しさせて頂きます♪
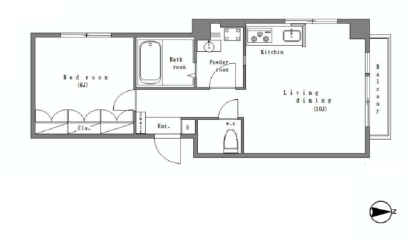
第二整美楽マンション 5階

●住所 世田谷区松原4-11-10
●築年数 昭和48年10月
●構造 鉄筋コンクリート造 地下1階付地上5階建て5階部分
●土地 所有権
●総戸数 25戸
●専有 41.90㎡
●バルコニー 1.96㎡
●間取り 1LDK
○管理費 21,000円
○修繕積立金 管理費に含む
ACCESS
・東急世田谷線 『松原』駅 徒歩1分
・京王線 『下高井戸』駅 徒歩11分
・小田急線 『豪徳寺』駅 徒歩13分

世田谷区を走る2両編成の路面電車“世田谷線”♪田園都市線・小田急線・京王線を縦に繋ぐので意外と侮れません!!今回は京王線寄りの『松原』駅が最寄です☆

小ぢんまりとした駅で周辺もほのぼのした雰囲気。大きなスーパーがあったのでお買い物はこちらでできますね(*´∀`*)

駅の前の前に佇む、ホワイト×レッドのレトロなマンションが「第二整美楽マンション」。飲食店も入っていて親しみやすい雰囲気です☆
電車の音が聞こえてきてからお部屋を出ても間に合いそうなくらいの駅近マンションです!

やっぱりオートロックはないのですが、このレトロな雰囲気がお好きな方もいらっしゃるのでは・・・(*´ω`*)管理人さんが常駐なので安心♪築年数が経っていても嫌な感じはなく、きれいにされています☆

実はこちらのマンションにはエレベーターがありません。ご紹介のお部屋は5階なのでちょっと大変ですが。。。最上階目指して頑張りましょうヽ(*´v`*)ノ

室内は北欧風リノベーション済み☆個性的でオシャレなデザインの内装にワクワクしますよ♪

ベージュのタイルフロアが柔らかな雰囲気の玄関。お部屋からの陽射しが玄関まで入ります。右手にシューズボックス。左手にはシェルフを設置済み。シェルフも高さを調整できるので、お気に入りの雑貨などを並べて、玄関を演出してくださいo(>∀< o)


廊下を左へ進むと、6帖の洋室があります。窓は西向きで、程よい明るさです♪夏の午後はまた雰囲気が変わるかもしれませんね。
天井にはライティングレールを設置済み♪


壁一面がクローゼットになっています。仕切りも沢山、もちろんハンガーラックもあるのでたっぷりと収納頂けます☆クローゼット上にも照明が設けられ、お部屋の照明使いまでがオシャレなんです(*´∀`*)

カーテンフックはヨーロピアンな雰囲気♪線路と世田谷の住宅街を一望頂けます☆電車の音は聞こえてきますが、2両編成だからかうるさい感じではありません♪

玄関右手へ進みます。ブラウンのカラークロス、木目のデザインクロス・・・様々な素材が使用されていますが、統一感があります。

天窓があり、廊下からリビングに掛けて吹き抜けになっているので、広々開放的で明るい室内です(●´∀`●)

右手にトイレがあります。タンクレスですっきりした印象。ウォシュレット機能付きです。木製のカウンターもナチュラルな雰囲気です♡

左手にはサニタリールーム。グリーンのクロスで爽やかな空間です。扉の後ろに、リビングダイニグに面したかわいい窓も付いています。気になる場合はカーテンを付けてください♪

収納は少なめですが、高さを自由に調整できるラックがあります。カゴなどを使って収納力をアップしたいところです。

毎日使うバスルームはシンプルで機能的☆浴室換気乾燥暖房機能付きです。

リビングダイニグキッチンは扉がなく、廊下からダイレクトに繋がっています。 10帖の空間は2面採光、天井からの陽射しによって広々と感じられます(*´∇`*)


ちょうどトイレの上がロフトになっています。シーズンオフの荷物を置いたりするのに便利なスペースです☆



キッチンもパーツ1つ1つがオシャレです(●´U`●)それもそのはず、スウェーデン製のシステムキッチンなんです。シンクがちょっと狭かったりもしますが、作業スペースもしっかりとられ、3口ガスコンロも確保☆窓に面しているので明るく、換気もばっちりです☆
キッチン側は眺望も開放的♪

北側の窓際には雨の日に嬉しいホスクリーンを設置済み♪バルコニーは広くはありませんが、洗濯物を干すスペースはしっかりと確保されています。

こちらも遮るものがなく、とっても開放的な眺望が広がっています。
【動画もご覧ください】
ya.13C29