仲介物件の多くは『レインズ』という不動産会社だけが利用できる情報サイトに掲載されています。レインズはどの不動産会社も同じ情報にアクセスできる仕組みのため、会社によって紹介できる物件が限定されるということはほとんどありません。
当サイトに掲載されていない物件であっても、気になる物件があれば、仲介手数料無料または割引(規定上限額の30〜50%)でご案内可能です。そのため、物件の条件にかかわらず、常にお客さまのご負担を最小限に抑えたご提案を行っています。
こちらのお部屋は販売終了いたしました
[高級住宅街”大山町”の新築レジデンス] 代々木大山レジデンス
代々木上原駅
徒歩7分
その他の共用部・設備写真
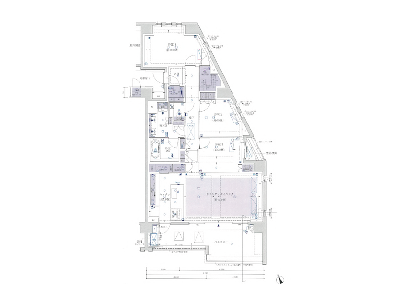
物件概要
設備・特徴
オートロック 宅配BOX 防犯カメラ ゲストルームゴルフレンジコンシェルジュサービスパーティールームボードルームルーフトップテラスディスポーザー