間取り図
こちらの物件の仲介手数料は
個別にご案内いたします。
詳細をご希望の方は
お気軽にご相談ください。
お問い合わせはこちら
月々の支払い目安を見る
※ローンの⽬安は、頭⾦ゼロ、借⼊年数35年、都市銀⾏・変動⾦利0.595%(優遇利⽤を想定。) 審査内容により、融資の⼀部または全部をご利⽤いただけない場合がございます。予めご了承ください。
間取り図
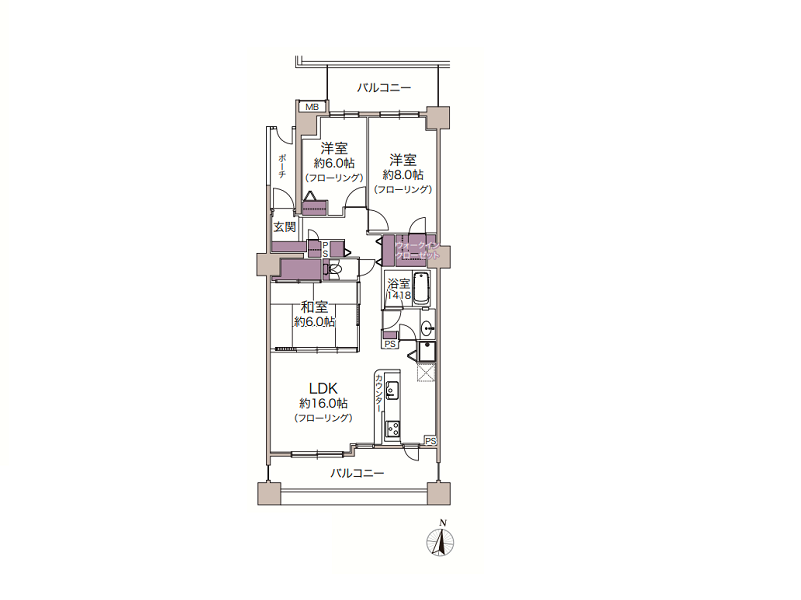
壱番館410号室
編集部が実際に現地を訪れ、見たもの・感じたことをレポート。
図面だけでは伝わらない"リアルな空気感"をお届けします。
更新日:2025/10/27
更新日:2025/10/27
陽だまりと木の温もりを満喫

3~4人家族で暮らすのにピッタリの3LDKをご紹介します。ワンちゃんやネコちゃんを2匹まで飼育OKなので動物好きの方にもオススメのお部屋です。新規リノベーションが施された温かみのあるナチュラルなお部屋となっており、清々しく新生活をスタートするのに最適ではないでしょうか。

メインルームはおよそ16.8帖のゆったりとしたスペースが設けられ、リビングとダイニングそれぞれの空間をしっかりと確保できそうです。南側にはバルコニーに面した大きな窓が2面あり、開放感溢れる爽やかなお部屋でした。

開放感抜群のペニンシュラキッチンは対面側がキャビネットになっており、食器や日用品をたっぷり収納できるようになっていました。更に、高さ調整可能なオープンシェルフも取り入れられ、スペースを無駄なく活用できるように工夫されています。

3つある洋室のうち唯一LDKと隣接している洋室。廊下からもLDKからも入室可能な回廊型のレイアウトとなっており、優れた生活動線が魅力です。寝室としてはもちろん、書斎やペットのお部屋としても活用できそうです。

こちらは一番広い約8帖の洋室。収納力抜群なWICが完備され、主寝室として最適です。出窓は北側に面しており直射日光の影響を受けづらいので、日焼けを気にせずにディスプレイスペースとしてご利用いただけるのではないでしょうか。

パウダールームにはランドリー、洗面化粧台、バスルームが集結していました。収納が豊富に取り入れられており、水回り用品の収納場所には困りません。オープンシェルフは棚板の高さを調整できるので、しまいたい物にあわせて効率良くスペースを活用することができそうです。

廊下にも大容量の収納が確保されていました。これだけ収納スペースがあれば、ストック類や防災用品、掃除道具など、様々な物をまとめてしまっておくことが出来そうです。オープンシェルフなので、どこに何がしまわれているか一目瞭然ですね。

玄関に入ると、温かみのある木目壁と間接照明が取り入れられたカウンターがお出迎えしてくれました。大きなシューズクローゼットも完備され、家族全員分の靴をすっきり収納しておくことが可能です。
その他の室内・設備写真
東京グラウンド編集部の住まいレビュー
今回ご紹介したのは『ヒルズ久が原』の壱号館4階にある3LDK。緑が豊かな敷地内には、大きな池のある中庭や、遊具のあるスペースがあり、伸び伸びと子育てするのにもオススメです。お部屋はリノベーションが施され隅々までピカピカ。水回りの設備も一新され、新築に近い感覚でお住まいいただけそうです。全体的に木目が基調となった温かみのある印象のお部屋ですが、窓枠やライティングレール、ドアノブなど、所々にブラックがバランス良く取り入れられ、洗練されたナチュラルモダンな内装デザインに。メインルームには約16.8帖とゆったりとしたスペースが確保されている上に、南に大きな窓が2面あるおかげでより一層広々とした空間に感じられました。全体的に収納が多く、スペースを有効活用できるように配慮されている点もオススメしたいポイントです。ぜひ1度内見してみてくださいね。 ライター:kayo【25I26】
この物件の毎月の支払いイメージを
試算してみませんか?
頭金や返済年数などを入力するだけで毎月の合計支払額をシミュレーションできます。
8,980
毎月の支払い予想シミュレーション
※試算結果はあくまで目安であり、実際の借り入れを保証するものではありません。
※物件によっては上記以外の別途費用が発生する場合もございます。詳しくはお問い合わせくださいませ。
住戸概要
間取り図
こちらの物件の仲介手数料は
個別にご案内いたします。
詳細をご希望の方は
お気軽にご相談ください。
お問い合わせはこちら
月々の支払い目安を見る
※ローンの⽬安は、頭⾦ゼロ、借⼊年数35年、都市銀⾏・変動⾦利0.595%(優遇利⽤を想定。) 審査内容により、融資の⼀部または全部をご利⽤いただけない場合がございます。予めご了承ください。
間取り図
壱番館608号室
この物件の毎月の支払いイメージを
試算してみませんか?
頭金や返済年数などを入力するだけで毎月の合計支払額をシミュレーションできます。
7,480
毎月の支払い予想シミュレーション
※試算結果はあくまで目安であり、実際の借り入れを保証するものではありません。
※物件によっては上記以外の別途費用が発生する場合もございます。詳しくはお問い合わせくださいませ。
住戸概要
間取り図
こちらの物件の仲介手数料は
個別にご案内いたします。
詳細をご希望の方は
お気軽にご相談ください。
お問い合わせはこちら
月々の支払い目安を見る
※ローンの⽬安は、頭⾦ゼロ、借⼊年数35年、都市銀⾏・変動⾦利0.595%(優遇利⽤を想定。) 審査内容により、融資の⼀部または全部をご利⽤いただけない場合がございます。予めご了承ください。
間取り図
壱番館309
この物件の毎月の支払いイメージを
試算してみませんか?
頭金や返済年数などを入力するだけで毎月の合計支払額をシミュレーションできます。
8,480
毎月の支払い予想シミュレーション
※試算結果はあくまで目安であり、実際の借り入れを保証するものではありません。
※物件によっては上記以外の別途費用が発生する場合もございます。詳しくはお問い合わせくださいませ。
住戸概要
こちらのお部屋は販売終了いたしました
過去に販売したお部屋の一部をご紹介。
住まい探しやリノベーションのヒントにご覧ください。
広さと開放感を満喫する




東京グラウンド編集部の住まいレビュー
千鳥駅から歩いて9分、静かな住宅街に堂々と佇む『ヒルズ久が原』。壱番館、弐番館、参番館、管理棟の4棟で構成され、敷地内には子どもが遊べる遊具や、緑豊かな池を中心にした中庭など、家族でのんびり過ごせるスポットが点在しています。今回ご紹介したのは参番館の7階に位置する4LDKのお部屋。リノベーションが完了し室内はまるで新築のような美しさです。ホワイト×木目のナチュラルトーンの内装は自然光を受けて柔らかく温もりのある空間を演出。色味の統一感が心地よく、暮らしの中でどんな家具も馴染みやすいデザインになっています。南・北・東の三方向に面した角部屋につきバルコニーと窓が多く、室内はどこにいても明るく風通しが抜群。朝の光で目覚め、昼間は穏やかな日差しの中で家族と過ごし、夕方にはやわらかい光に包まれながらくつろぐ。そんな毎日を想像させる、開放感が魅力的な住まいをぜひ現地にてご確認くださいね♩ ライター:mao【25I17】
[広さと開放感を満喫する] ヒルズ久が原
千鳥町駅
徒歩9分

18,982㎡の広大な敷地に建設された『ヒルズ久が原』。壱番館~参番館の3棟がトライアングルの形に建っています。3棟合計の総戸数は447戸!

敷地内には複数箇所に平置きの駐車場がありました。来客用の駐車場もしっかりと確保されています。駐輪場やバイク置き場も完備されていました。

緑豊かな中庭には噴水のある大きな池がありました。池の周りにはベンチが設けられ、身近に緑を感じながら休憩をすることが出来ます。

エントランスにはオートロックが取り入れられ、セキュリティー面も安心です。メールコーナーには宅配ボックスも設置され、暮らしやすい設備が整っています。
その他の共用部・設備写真
物件概要
設備・特徴
エレベーター オートロック 宅配BOX トランクルーム 防犯カメラ 新耐震基準適合
『ヒルズ久が原』にお住まいの場合、千鳥町駅か池上駅のいずれかを利用するのがおすすめです。どちらも東急池上線のみが乗り入れており距離の差もそれほど大きくないため、立ち寄りたいお店の有無やお出かけ先の方向に合わせて使い分けてはいかがでしょうか。周辺の店舗数が多いのは池上駅で、スーパーが複数軒にドラッグストア、飲食店など非常に充実しています。池上は「池上本門寺」の門前町として発展してきた歴史があるため、街全体がどことなく和の雰囲気✿小京都のような趣きを感じられますよ。さらに「池上警察署」というバス停が徒歩1分のところにあるので、悪天候時のお出かけや足腰に不安がある方はバス便をご利用になると良いかもしれません。
アクセス
東急池上線 『千鳥町』駅 徒歩9分
東急池上線 『池上』駅 徒歩13分
東急バス 『池上警察署』停 徒歩1分
買い物
学区
※掲載している学区情報は、記事制作時点での参考情報です。
区域によっては学校の指定が異なる場合もありますので、詳細は必ずご確認ください。
その他
こちらの物件は弊社運営の別サイトでもご紹介中♪