間取り図
価格改定
なら
仲介手数料 無料!
追加費用も一切なし
マンションは、“どこから買うか”で
支払う費用が変わります
仕組みを詳しく見る
月々の支払い目安を見る
※ローンの⽬安は、頭⾦ゼロ、借⼊年数35年、都市銀⾏・変動⾦利0.595%(優遇利⽤を想定。) 審査内容により、融資の⼀部または全部をご利⽤いただけない場合がございます。予めご了承ください。
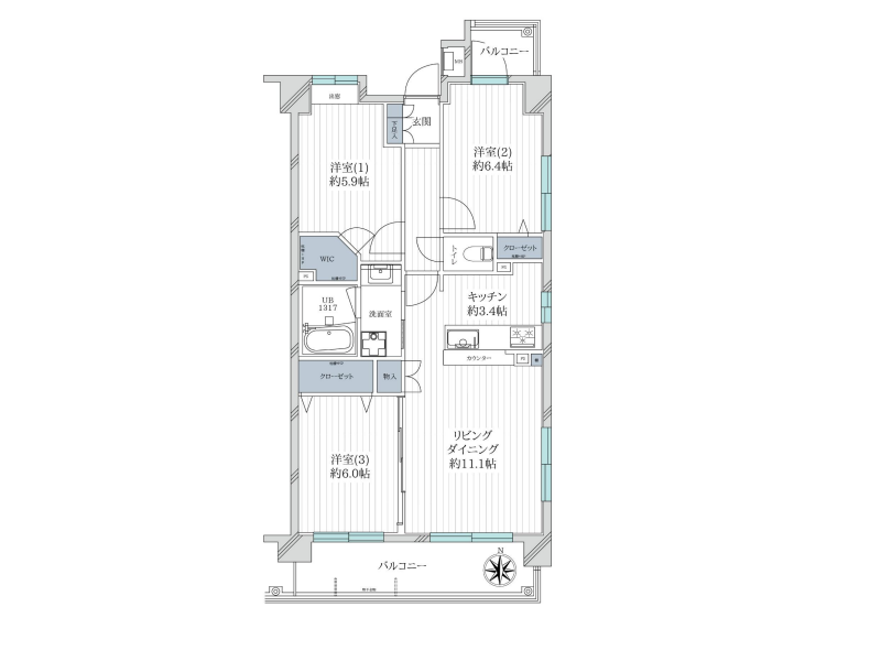
間取り図
406号室
編集部が実際に現地を訪れ、見たもの・感じたことをレポート。
図面だけでは伝わらない"リアルな空気感"をお届けします。
更新日:2025/10/24
更新日:2025/10/24
陽だまりの中で、家族の時間をゆったりと。

7階部分に位置するこちらのお部屋は、専有面積70.57㎡の3LDK+WIC。ご家族でも広々と暮らせる間取りです。2025年9月にリノベーションが完了し、ナチュラルで洗練されたインテリアに一新。新しい暮らしをすぐに始められる快適なお住まいです♩

リビングダイニングは約11.1帖。南・東に窓があるため、日差しがたっぷり入り風通しも抜群です☀ 天井が高く、より広々と感じられるのも嬉しいポイント。家族が自然と集まりたくなる、心地よい空間が広がっています。

上品なグレートーンでまとめられたシステムキッチンは、リビングを一望できる対面式。ワイドな設計で複数人の同時作業もスムーズに行えます。食洗機付きで家事の時短にも◎ 広めのワークトップが料理時間を快適にしてくれます。

リビングに隣接する約6.0帖の洋室は、大きなスライドドアで仕切りが可能。ドアを閉めれば独立した個室に、開ければ一体感のある広々とした空間に早変わり。ゲストルームやお子さまのプレイルームとしても使いやすい間取りです。

ペールクリーム色のパネルが爽やかに彩るバスルームは、清潔感とやすらぎを感じる空間。追い焚き機能を備え、ワンタッチで心地よい温度に調整可能。半身浴を楽しみながら、ゆったりとしたリラックスタイムを過ごせます♡

約6.4帖の洋室は、2面採光で明るく快適。ベッドを置いても広さに余裕があり、主寝室としてぴったりです。小さなバルコニーに出て外の空気を吸えば、朝の目覚めも気持ちよく迎えられますよ☀

約5.9帖の洋室は、北向きの出窓から柔らかな光が差し込む落ち着いた空間。窓辺には写真やグリーンを飾って、季節の移ろいを楽しめそう✿ウォークインクローゼットを完備し、衣類や家電をすっきり収納可能です。

南側に設けられたワイドバルコニーは、リビングから直接アクセス可能。洗濯物をたっぷり干せるゆとりの広さがあります。天気のいい日には、チェアを出してコーヒーを楽しむなど、開放的なひとときを過ごすのもいいですね。
その他の室内・設備写真
東京グラウンド編集部の住まいレビュー
池上駅から徒歩7分のところに位置する『セラード池上』。道は平坦でとても歩きやすく、通勤や通学も快適そうです。周辺にはスーパーやドラッグストア、コンビニが揃っていてちょっとした買い物にもとても便利。さらに、JR京浜東北線が通る蒲田駅までは2駅とアクセスも良好です◎今回ご紹介するお部屋は2025年9月にリノベーションが完了した3LDK+WIC。濃いブラウンの木目とダークグレーを組み合わせたシックなデザインで、落ち着いた雰囲気が印象的です✧南東角部屋のため陽当たり・風通しともに抜群! どのお部屋も6帖前後の広さがあり、家族それぞれの空間をしっかり確保できます。窓からは静かな住宅街の景色が広がり、都会にいながら穏やかに過ごせる心地よい住まいです。 ライター:hana【25J24】
この物件の毎月の支払いイメージを
試算してみませんか?
頭金や返済年数などを入力するだけで毎月の合計支払額をシミュレーションできます。
6,999
毎月の支払い予想シミュレーション
※試算結果はあくまで目安であり、実際の借り入れを保証するものではありません。
※物件によっては上記以外の別途費用が発生する場合もございます。詳しくはお問い合わせくださいませ。
住戸概要
[住み心地を重視するライフスタイル] セラード池上
池上駅
徒歩7分

『セラード池上』は、池上駅から徒歩7分の好立地に位置する6階建てマンション。1999年2月築の鉄筋コンクリート造で、全29戸の落ち着いたコミュニティです。淡いベージュのタイル外観が上質さを漂わせ、新耐震基準適合で安心感のある暮らしを叶えます。

タイルが美しく敷き詰められたアプローチを進むと、緑に包まれた静かなエントランスが姿を見せます。奥まった位置に入口が設けられているため、プライバシー性が高く安心。整えられた植栽が上品な雰囲気を演出しています。

駐輪場は屋内に設けられたビルトインタイプ。雨風の影響を受けにくく、自転車を清潔に保てます。2段式ラックが整備されており、効率的かつスマートに収納可能。

オートロックに加え、防犯カメラと管理人室を備えた充実のセキュリティ。入居者の安全を最優先に考えた設計で、安心感に包まれた暮らしを実現します。
その他の共用部・設備写真
物件概要
設備・特徴
エレベーター オートロック 宅配BOX 防犯カメラ 新耐震基準適合
池上駅は東急池上線が利用でき、五反田方面や蒲田方面へのアクセスがスムーズ◎駅直結の「エトモ池上」にはカフェやショップ、ヨガスタジオなどが揃い、通勤前後や待ち時間の利用にも便利です。駅前のバスターミナルを使えば電車以外での移動も可能で、行動範囲が広がります。駅東口には「池上東口商店街」が広がり飲食店や薬局、スーパー、美容室など日常生活に欠かせない店舗が軒を連ねており、毎日の買い物や外食も快適に♪さらに駅周辺は閑静な住宅街が広がり、落ち着いた住環境と利便性の両方を兼ね備えたエリアとなっています。
アクセス
東急池上線 『池上』駅 徒歩7分
東急多摩川線 『矢口渡』駅 徒歩15分
JR京浜東北線 『蒲田』駅 徒歩18分
買い物
学区
※掲載している学区情報は、記事制作時点での参考情報です。
区域によっては学校の指定が異なる場合もありますので、詳細は必ずご確認ください。
その他
こちらの物件は弊社運営の別サイトでもご紹介中♪