間取り図
価格改定
なら
仲介手数料 無料!
追加費用も一切なし
マンションは、“どこから買うか”で
支払う費用が変わります
仕組みを詳しく見る
月々の支払い目安を見る
※ローンの⽬安は、頭⾦ゼロ、借⼊年数35年、都市銀⾏・変動⾦利0.595%(優遇利⽤を想定。) 審査内容により、融資の⼀部または全部をご利⽤いただけない場合がございます。予めご了承ください。
間取り図
2F
編集部が実際に現地を訪れ、見たもの・感じたことをレポート。
図面だけでは伝わらない"リアルな空気感"をお届けします。
更新日:2026/04/28
更新日:2026/04/28
大きな窓が気分を明るくしてくれる

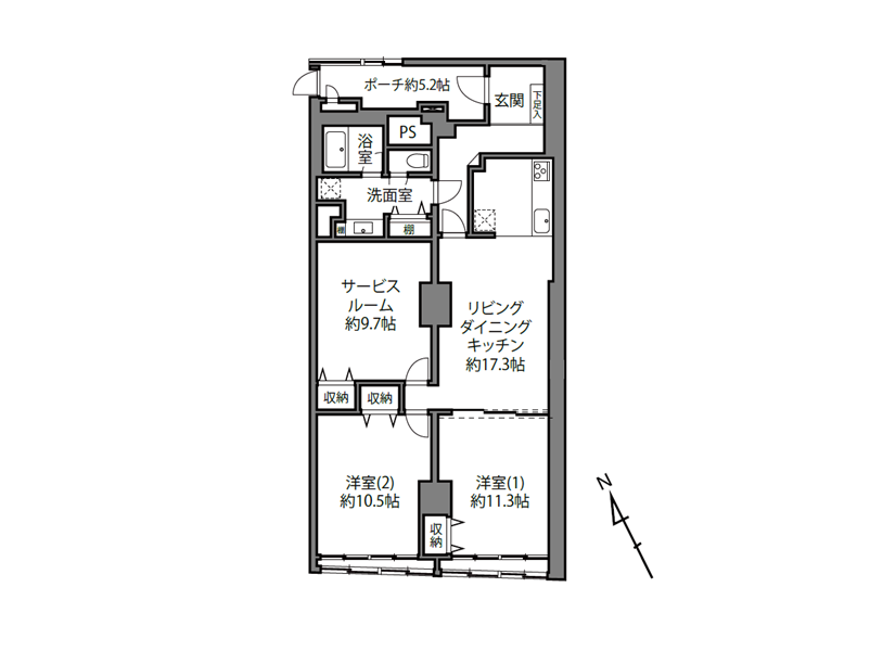
ご家族とゆとりを持って暮らしたい方にオススメなのが、今回ご紹介する2SLDK。専有面積は驚きの109.99㎡。荻窪駅徒歩7分でこの条件はかなり希少です!新規フルリノベーションが実施されており、室内は新築のようにピカピカ。

リビングダイニングキッチンはおよそ17.3帖。これだけ余裕があれば自由に家具をレイアウトできますね。メインルームには窓がないのですが、お隣の洋室との間仕切りがガラス建具になっているので、南からの光がしっかり感じられますよ。

キッチンはご覧の通りかなり幅が広いです。これなら背面に冷蔵庫やカップボードを設置しても行き来がしやすいですね。壁面にタイルがあしらわれたモダンなデザインも素敵です♬機能性の高さも文句なし。

こちらはメインルームの先に広がるおよそ11.3帖の洋室。天井が高く、明るい光がしっかり射し込みますよ。もう1つの洋室はおよそ10.5帖、サービスルームでもおよそ9.7帖もの広さがあります。のびのびと過ごすことができそうですね◎

今回の2SLDKにはバルコニーがありません。南向きの窓は「青梅街道」に面しています。2重サッシになっているお陰で車の音は気になりにくかったですが、通行人の視線が気になるので、レースカーテンは必須かもしれません。

私が印象に残ったのはメインルームと洋室を仕切るカラス建具の間仕切り。ガラス部分が大きくとても開放的ですね。間仕切りに沿ってカーテンレールが備わっているので、来客時にはカーテンを閉めてプライベートな部分を隠すことができるんです。

玄関前にはおよそ5.2帖のポーチが。玄関前にワンクッションあることでプライベート性と防犯性が高まります。また、玄関にピクチャーレールやカウンターなど飾るための設備が備わっているのもポイント。シンプルなデザインだからこそ、ワンポイントで個性を表現しましょう。

パウダールームは横に長く、ご家族と一緒に使用しても狭さを感じにくいはず。洗面化粧台の壁面にキッチン同様タイルが使用されていて統一感がありました。また、大きなリネン庫があり、リネンはもちろん洗剤やお掃除道具の保管場所にも困りません。
その他の室内・設備写真
▲ このお部屋の雰囲気がお好みの方へ
東京グラウンド編集部の住まいレビュー
都心へのアクセスが良い上にお買い物できるスポットが豊富、閑静な住環境も手に入る…と魅力がたくさん詰まった荻窪駅。治安が良いので、子育て中のファミリー層にもオススメです♪
『エントピア第一荻窪』は、そんな荻窪駅から歩いて7分の場所に。駅沿いの道を歩くだけというシンプルな道のりなので、お引越し初期から迷わずご帰宅いただけるはず。お子様も安心して登校・下校できるのでは。
昭和築のヴィンテージマンションではありますが、しっかり手入れされていてかなり綺麗な状態が保たれていました。数年前に大規模修繕工事が実施されたということなので、長い目で見ても安心して暮らせますね。
今回ご紹介したのは2階部分に位置する2SLDK。新規フルリノベーションによって、シンプルながら高級感のあるモダンな空間にリニューアルされました。かなり広々としたお部屋で、どんな風にインテリアを置こうか考えるとワクワクしますね。白い壁を利用して、プリジェクターで映画を楽しむ、なんてこともできちゃいます。大きな窓が生み出す開放感も見事でした。ぜひ一度ご覧ください♩ ライター:mii【26D22】
この物件の毎月の支払いイメージを
試算してみませんか?
頭金や返済年数などを入力するだけで毎月の合計支払額をシミュレーションできます。
7,790
毎月の支払い予想シミュレーション
※試算結果はあくまで目安であり、実際の借り入れを保証するものではありません。
※物件によっては上記以外の別途費用が発生する場合もございます。詳しくはお問い合わせくださいませ。
住戸概要
[懐かしさを感じる] エントピア第一荻窪
荻窪駅
徒歩7分

「青梅街道」沿いにどっしりと佇む『エントピア第一荻窪』。地上12階建て総戸数65戸の大きなマンションです。1970年11月築と築年数は経っているものの、数年前に大規模修繕工事が実施されたため綺麗な状態が保たれていますよ。

レトロなフォントのマンション名が掲げられたアプローチ。階段以外にスロープが設けられており、あらゆる世代の方がスムーズに行き来しやすくなっています。車両置き場の出入口はエントランス右手に。接触の心配がなく安心して行き来できます。

エントランスはかなり奥行きがあり、マンション内のプライベート性を高めていました。防犯カメラを完備している上に、管理人さんが行き来する人をチェックしてくれています。宅配ボックスが備わっていて、再配達のリスクが低いのも嬉しいですね。

エレベーターは1基備わっています。階段も備わっているので、お急ぎの際は階段のご利用もオススメ。居住フロアは外廊下になっている階と内廊下になっている階がありました。
その他の共用部・設備写真
物件概要
設備・特徴
エレベーター 宅配BOX 防犯カメラ
テナント
美容院
JR中央線・総武線・東京メトロ丸ノ内線の3路線が利用可能な荻窪駅。駅の北側、南側ともに商店街が広がっており、買い物が便利。「ルミネ荻窪」など大きな商業施設があるのもポイントです。マンションはどちらから向かってもほぼ同じ距離だったので、寄り道したい場所などに合わせて出る出口を選べますよ。『エントピア第一荻窪』は「青梅街道」沿いに。1階には美容院が入っています。
アクセス
JR中央線/総武線/東京メトロ丸ノ内線 『荻窪』駅 徒歩7分
東京メトロ丸ノ内線 『南阿佐ヶ谷』駅 徒歩12分
JR中央線/総武線 『阿佐ヶ谷』駅 徒歩13分
買い物
学区
※掲載している学区情報は、記事制作時点での参考情報です。
区域によっては学校の指定が異なる場合もありますので、詳細は必ずご確認ください。
その他
こちらの物件は弊社運営の別サイトでもご紹介中♪