間取り図
価格改定
なら
仲介手数料 無料!
追加費用も一切なし
マンションは、“どこから買うか”で
支払う費用が変わります
仕組みを詳しく見る
月々の支払い目安を見る
※ローンの⽬安は、頭⾦ゼロ、借⼊年数35年、都市銀⾏・変動⾦利0.595%(優遇利⽤を想定。) 審査内容により、融資の⼀部または全部をご利⽤いただけない場合がございます。予めご了承ください。
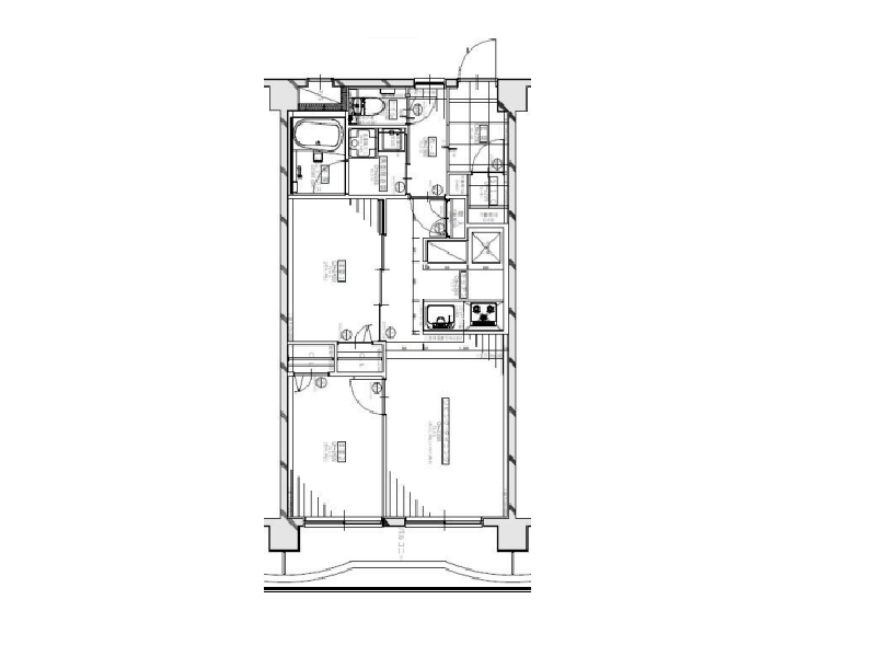
間取り図
202号室
編集部が実際に現地を訪れ、見たもの・感じたことをレポート。
図面だけでは伝わらない"リアルな空気感"をお届けします。
更新日:2025/11/04
更新日:2025/11/04
暮らしの中にちょうどいい仕事時間を。

穏やかな陽射しが差し込む2階のお部屋。専有面積49.40㎡の2LDKで、2人暮らしにちょうどいいサイズ感です。ペットと一緒に暮らせるのも嬉しいポイント。国内外で活躍するozidesignworksによるデザイン監修で、上質な空間へと生まれ変わりました。新生活をスタイリッシュに始めたい方におすすめです◎

南向きの大きな窓から自然光がたっぷりと降り注ぐメインルーム。明るくシンプルな内装は、どんな家具とも相性抜群です。柔らかな光とダウンライトの組み合わせが、心地よい立体感を演出。昼も夜も快適に過ごせる空間です☀

シンプルで洗練された白いシステムキッチン。背面にゆとりがある設計で、カップボードを設置することが可能です。新しい設備が揃っているので、お料理時間がより楽しくなりそう♪キッチンに立つたびに気分が上がる空間です。

玄関に一歩入ると、想像以上の広さに驚きます。ベビーカーやスーツケースも余裕で置けるゆとりあるスペース。お出かけ前の支度もスムーズに。壁面に季節のリースやアートを飾れば、自分らしい“お迎え空間”の完成です♡

収納力抜群のシューズインクローゼット付き。床が玄関と分かれているため、清潔に保てるのが魅力です。靴だけでなく、雨具や小物の整理にも便利。身支度の時間がスマートになります。

グレーの引き戸で仕切られた洋室は開ければ広がり、閉めれば落ち着きのあるプライベート空間に様変わり。窓がなくてもドアを開けることで開放感をプラスできます。シンプルで使い勝手の良い一部屋です。

温もりある木目デザインの壁面が印象的な洋室。ナチュラルなインテリアとの相性抜群です。南からの光を感じながら、心地よい朝を迎えられそう。花やアートを飾って、自分だけの癒しの空間を楽しんでみてください。

玄関廊下からアクセスできるサニタリースペースは、生活動線がスムーズ◎バスルームは優しいグレートーンで統一され、ゆったりくつろげる癒しの空間。家族みんなが快適に使える機能が充実しています。
その他の室内・設備写真
東京グラウンド編集部の住まいレビュー
東新宿駅から徒歩3分の好立地に建つ『大久保杉ハイム』。ブラウンの螺旋階段が印象的なレトロモダンな外観です。今回ご紹介するのは2階部分に位置するお部屋。2LDK・49.40㎡の間取りでカップルやDINKS層に最適。さらにペットと一緒に過ごせる嬉しい一室です♡。室内は新規リノベーションで生まれ変わり、明るくナチュラルな雰囲気に。どんな家具とも相性が良さそうで自分好みのお部屋作りが楽しめそうです♪また、事務所としての利用も可能なため、自由度の高い暮らしが叶います。ぜひ、気になる方は現地にてご確認くださいね。 ライター:hana【25J17】
この物件の毎月の支払いイメージを
試算してみませんか?
頭金や返済年数などを入力するだけで毎月の合計支払額をシミュレーションできます。
4,599
毎月の支払い予想シミュレーション
※試算結果はあくまで目安であり、実際の借り入れを保証するものではありません。
※物件によっては上記以外の別途費用が発生する場合もございます。詳しくはお問い合わせくださいませ。
住戸概要
[国際的な雰囲気に包まれた] 大久保杉ハイム
東新宿駅
徒歩3分

明治通りから少し奥まった場所に建つ『大久保杉ハイム』。白を基調としたタイル貼りの外観が爽やかな印象を与えます。全24戸の中規模マンションで、落ち着いた住環境が魅力。波を打つようなバルコニーラインが建物に柔らかなリズムを生み、個性を感じさせます。

エントランスへ続くアプローチは、美しいタイル貼り。道路からエントランスまでの距離がしっかり取られており、奥まった造りがプライバシーを守ってくれます。外の喧騒を忘れ、落ち着いて建物へと入っていける心地よいアプローチでした。

建物の横手には、駐車場と駐輪場が設けられています。しっかりとしたゲートで仕切られており、居住者以外の立ち入りを防ぐ設計。安心して大切な車や自転車を保管できる環境が整っています。

エントランスは明るい白を基調にまとめられ、足元のレッドカーペットが印象的。華やかさと実用性を兼ね備えた空間で、雨の日も快適に出入りができます。シンプルながらも品のあるデザインが魅力的。
その他の共用部・設備写真
物件概要
設備・特徴
エレベーター 防犯カメラ
都営大江戸線・東京メトロ副都心線が利用できる東新宿駅。新宿三丁目駅や西早稲田駅も徒歩圏内にあり、都心主要エリアへのアクセスは抜群です。通勤・通学はもちろん、休日のお出かけにも便利な立地。周辺にはスーパーやドラッグストア、コンビニ、飲食店が豊富に揃い日々の買い物もスムーズ。少し足を延ばせば新宿伊勢丹や大型家電量販店なども利用でき、都会ならではの利便性を感じられます◎一方で、マンション周辺は大通りから1本入った穏やかな住宅街。街路樹が並び比較的落ち着いた雰囲気の中で暮らせます。アクセスと住みやすさのバランスが取れた、都会の中でも穏やかに暮らせるロケーションです✿
アクセス
都営大江戸線 『東新宿』駅 徒歩3分
JR山手線 『新大久保』駅 徒歩10分
JR総武線 『大久保』駅 徒歩15分
買い物
学区
※掲載している学区情報は、記事制作時点での参考情報です。
区域によっては学校の指定が異なる場合もありますので、詳細は必ずご確認ください。
その他
こちらの物件は弊社運営の別サイトでもご紹介中♪