間取り図
NEW
こちらの物件の仲介手数料は
個別にご案内いたします。
詳細をご希望の方は
お気軽にご相談ください。
お問い合わせはこちら
月々の支払い目安を見る
※ローンの⽬安は、頭⾦ゼロ、借⼊年数35年、都市銀⾏・変動⾦利0.595%(優遇利⽤を想定。) 審査内容により、融資の⼀部または全部をご利⽤いただけない場合がございます。予めご了承ください。
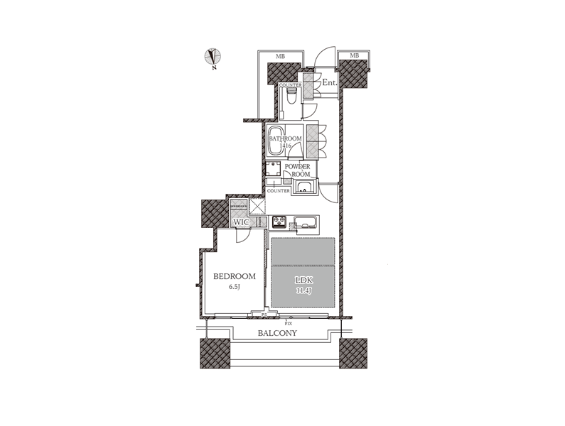
間取り図
618号室
この物件の毎月の支払いイメージを
試算してみませんか?
頭金や返済年数などを入力するだけで毎月の合計支払額をシミュレーションできます。
13,900
毎月の支払い予想シミュレーション
※試算結果はあくまで目安であり、実際の借り入れを保証するものではありません。
※物件によっては上記以外の別途費用が発生する場合もございます。詳しくはお問い合わせくださいませ。
住戸概要
こちらのお部屋は販売終了いたしました
過去に販売したお部屋の一部をご紹介。
住まい探しやリノベーションのヒントにご覧ください。
東京グラウンド編集部の住まいレビュー
商業施設や繁華街のある新宿駅から少し距離があり、都会ながらも落ち着いた雰囲気を感じられる新宿御苑前駅から徒歩7分のマンションをご紹介します。なんといっても新宿御苑があるので、四季折々の豊かな自然に触れられ、都会の喧騒を忘れ、優雅なひとときを過ごせますよ。そんなエリアにある『富久クロスコンフォートタワー』は地上55階建て・総戸数1093戸の大規模制震タワーレジデンス。敷地内にスーパーや保育施設、クリニックなどの生活施設が充実し、暮らしやすさ抜群です。お部屋は2LDKで、シューズインクローゼットやそれぞれの洋室にクローゼットがあり収納力が豊富。荷物をしまって、空間を有効活用できますよ。お部屋は北向きですが、暑くなりがちな高層階であっても涼しく過ごせるのが北向きのタワーマンションの魅力です。ペット飼育可能なのも嬉しいポイントで、将来的に新しい家族を迎えたいなとお考えの方にもピッタリですよ。眺望の素晴らしさはさすがタワマンの高層階。青空を近くに感じ、開放的な景色を楽しめます。夜景もとっても綺麗そうですよね。現在居住中で室内写真が少ないため、実際の陽当たりや洋室の雰囲気などをチェックしたい方は内見可能なので、気軽にお問い合わせください。 ライター:渡邊【24A16】
[青空を近くに感じられるお部屋] 富久クロスコンフォートタワー
新宿三丁目駅
徒歩5分

2015年9月に施工された『富久クロスコンフォートタワー』。55階建て、総戸数1093戸なので周囲でも圧倒的な高さを誇り、ランドマークとして輝きを放っていました。野村不動産をはじめとした4社分譲のブランドマンションです。

ホテルライクなエントランス。オートロックを搭載しているだけでなく、コンシェルジュが常駐しています。荷物の受け渡しから配車、クリーニングまで多種多様なサービスを受けることもできますよ。24時間有人管理によって、より安心感が高まりますね。

スカイラウンジ、パーティーラウンジ、フィットネスルーム、ペット足洗い場、防音ルームといった豊富な共用施設が揃っているのもメリット。積極的に利用して、マンション内で充実した生活を送りましょう。

エレベーターは全部で11基稼働しており、ピークの時間帯でも、そこまで待つことなく利用できそうです。高級感漂う内廊下仕様でお部屋への期待感が高まりますね。天候の影響を受けにくかったり、外部から見えにくいという利点があります。
その他の共用部・設備写真
物件概要
設備・特徴
エレベーター オートロック 宅配BOX トランクルーム 防犯カメラ コンシェルジュサービス24時間有人管理防災倉庫各階にゴミステーション有24時間ゴミ出し可 新耐震基準適合 制震構造
アクセス
東京メトロ丸ノ内線 『新宿御苑前』駅 徒歩5分
東京メトロ丸ノ内線/副都心線/都営新宿線 『新宿三丁目』駅 徒歩8分
都営新宿線 『曙橋』駅 徒歩9分
都営大江戸線 『若松河田』駅 徒歩13分
JR山手線/埼京線/湘南新宿ライン/中央線/総武線/京王線/京王新線/小田急線/東京メトロ丸ノ内線/都営新宿線/大江戸線 『新宿』駅 徒歩18分
学区
※掲載している学区情報は、記事制作時点での参考情報です。
区域によっては学校の指定が異なる場合もありますので、詳細は必ずご確認ください。
こちらの物件は弊社運営の別サイトでもご紹介中♪