間取り図
価格改定
なら
仲介手数料 無料!
追加費用も一切なし
マンションは、“どこから買うか”で
支払う費用が変わります
仕組みを詳しく見る
月々の支払い目安を見る
※ローンの⽬安は、頭⾦ゼロ、借⼊年数35年、都市銀⾏・変動⾦利0.595%(優遇利⽤を想定。) 審査内容により、融資の⼀部または全部をご利⽤いただけない場合がございます。予めご了承ください。
間取り図
103号室
編集部が実際に現地を訪れ、見たもの・感じたことをレポート。
図面だけでは伝わらない"リアルな空気感"をお届けします。
更新日:2026/01/08
更新日:2026/01/08
住まいに+αの贅沢を

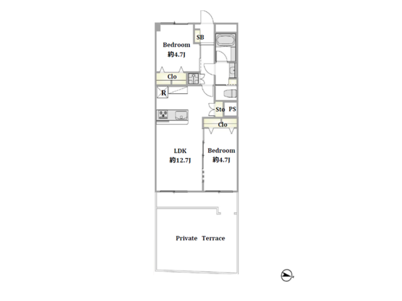
専有面積52.52㎡の2LDKは、新規フルリノベーションによって現代的で洗練された住空間へと生まれ変わりました。2人暮らしにフィットする広さを確保しつつ、木目のやさしさと白を基調とした内装が調和した、居心地の良いデザインが魅力です。東向き住戸ならではの明るさもあり、朝の時間帯は特に清々しい印象。アフターサービス保証が付いているため、長く安心して暮らせる点も嬉しいポイント。

メインのリビングダイニングキッチンは約12.7帖。リビングとダイニングをしっかり分けて使うこともできますし、あえて一体的にレイアウトすれば、より広がりを感じられる空間に。大きな掃き出し窓から自然光がたっぷりと入り、室内に明るさと開放感をもたらしてくれます。

約4.7帖の洋室は、スライドドアによって柔軟な使い方ができる一室。LDKとつなげて広く使うも良し、個室として活用するも良しと、暮らしの変化に対応できます。キッズスペースとして利用すれば、目が届きやすく安心感がありますよ。

1階部分ならではの魅力として、バルコニーの先には専用庭が設けられています。広さは29.18㎡とゆとりがあり、ガーデニングや家庭菜園を楽しむことも可能。塀で囲われているため外部からの視線が気になりにくく、プライベート感のあるアウトドア空間として活用できそう☀

対面式のキッチンは空間全体に一体感を生み出す設計。料理をしながらでも自然とコミュニケーションが取りやすく、暮らしに温かみが生まれます。収納スペースも豊富で、キッチン周りが散らかりにくいのは嬉しいところ。食洗機が備えられているため、忙しい日常をしっかりサポート◎

扉付きの洗濯機スペースは、空間全体をすっきりと見せてくれる工夫のひとつ。音の軽減にも配慮されており、日常生活への影響を抑えてくれます。上部棚には洗濯用品をまとめて収納できるため使い勝手も抜群!

ナチュラルな木目調パネルが印象的なバスルームは、リラックスタイムにぴったりの空間。小窓付きで風通しが良く、清潔感を保ちやすい仕様です。追い焚き機能や浴室乾燥機を備え、機能面も申し分なし。備え付けのラックにより、バスアイテムを整理しやすい点も好印象でした。

広さに余裕のあるサニタリースペースには、使い勝手の良い3面ミラータイプの洗面化粧台を配置。収納が充実しているため、生活感が出やすい小物類も上手に隠せます。可動棚にはタオルやストック用品を整理でき、日々の身支度や家事を快適に支えてくれる空間です。
その他の室内・設備写真
▲ このお部屋の雰囲気がお好みの方へ
東京グラウンド編集部の住まいレビュー
用賀駅から徒歩7分。アクセスの良さに加え日々の暮らしを支えてくれる利便性が魅力の『用賀ガーデンフラッツ』。駅からの道中には、コストパフォーマンスの高さで評判の「オーケー新用賀店」があり、重たい荷物を抱えて長く歩く必要がないのも嬉しいポイント。そのすぐ裏側にある石畳風の遊歩道を進むと、整った街並みの中に溶け込むように物件が現れます。実際に歩いてみると落ち着いた雰囲気と清潔感のある景観が心地よく、日々の帰宅が楽しみになりそうな環境でした。今回ご紹介するのは1階部分に位置する専用庭付きの1LDK住戸。専有面積は52.52㎡あり、1~2人暮らしにちょうど良い広さを確保しています。室内はフルリノベーション済みで、白を基調としたナチュラルで洗練された空間に生まれ変わっていました。キッチンやバスルームなどの水回り設備はもちろん、収納も新設されており、細部まで丁寧に整えられた印象です。リビングダイニングと洋室が隣接しているため、間仕切りを開ければゆとりあるメインルームとしても活用可能。写真だけでは伝えきれない魅力を、ぜひ現地でご確認ください♪ ライター:hana【26A08】
この物件の毎月の支払いイメージを
試算してみませんか?
頭金や返済年数などを入力するだけで毎月の合計支払額をシミュレーションできます。
4,299
毎月の支払い予想シミュレーション
※試算結果はあくまで目安であり、実際の借り入れを保証するものではありません。
※物件によっては上記以外の別途費用が発生する場合もございます。詳しくはお問い合わせくださいませ。
住戸概要
[自然の気配が息づく] 用賀ガーデンフラッツ
用賀駅
徒歩7分

用賀駅から徒歩7分、穏やかな住宅街の一角に佇む『用賀ガーデンフラッツ』。1979年築の3階建て・総戸数29戸のマンション。世帯数が多すぎないため住民同士の距離感も程よく、落ち着いたコミュニティが形成されています。主張しすぎない外観は周囲の街並みに自然と溶け込み、築年数を感じさせない整った印象を与えてくれました。

エントランスへと続くアプローチは、タイル貼りで清潔感のある佇まい。手すりも備えられており、小さなお子様やご年配の方にも配慮された造りに。

マンション内には駐車場も完備されており、通勤や週末のお出かけに車を使う方も安心。空き区画については都度変動しますので、早めのチェックが良さそうです。

館内にエレベーターはありませんが、3階建てのため移動の負担は最小限。風通しの良い外廊下を歩きながら、それぞれのお部屋へ向かいましょう♪
その他の共用部・設備写真
物件概要
用賀駅は東急田園都市線が利用でき、渋谷までは乗り換えなしでスムーズにアクセス可能。通勤や通学はもちろん休日のお出かけにも便利な立地です。駅周辺には「世田谷ビジネススクエア」をはじめ飲食店やショップ、クリニックなど生活利便施設が集まり、日常の用事を駅周りで完結できるのも魅力のひとつ。さらに徒歩圏内には価格と品揃えに定評のあるスーパー「オーケー」などもあり、日々の買い物に困ることはありません。駅から少し離れると落ち着いた住宅街が広がり、車通りも比較的少なく穏やかな住環境が保たれています✿
アクセス
東急田園都市線 『用賀』駅 徒歩7分
買い物
学区
※掲載している学区情報は、記事制作時点での参考情報です。
区域によっては学校の指定が異なる場合もありますので、詳細は必ずご確認ください。
その他
こちらの物件は弊社運営の別サイトでもご紹介中♪