間取り図
価格改定
なら
仲介手数料 無料!
追加費用も一切なし
マンションは、“どこから買うか”で
支払う費用が変わります
仕組みを詳しく見る
月々の支払い目安を見る
※ローンの⽬安は、頭⾦ゼロ、借⼊年数35年、都市銀⾏・変動⾦利0.595%(優遇利⽤を想定。) 審査内容により、融資の⼀部または全部をご利⽤いただけない場合がございます。予めご了承ください。
間取り図
402号室
編集部が実際に現地を訪れ、見たもの・感じたことをレポート。
図面だけでは伝わらない"リアルな空気感"をお届けします。
更新日:2025/12/02
更新日:2025/12/02
ゆったり、自分だけのラグジュアリー

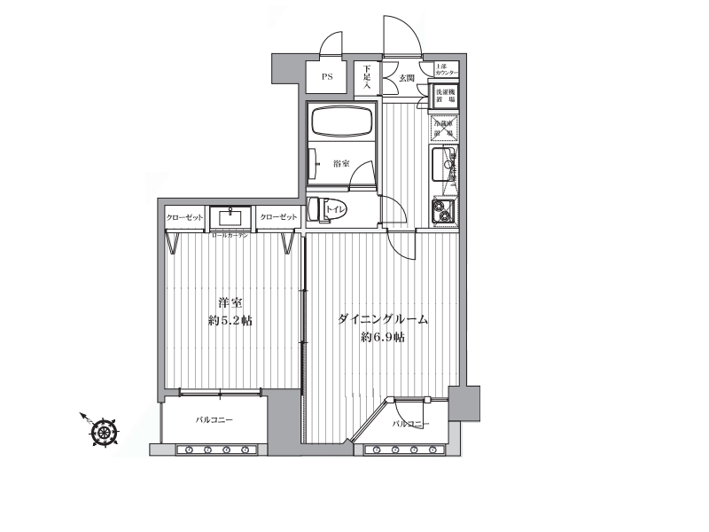
4階部分に位置する専有面積30.68㎡の1LDKのお部屋。ワンルームよりも生活の“ON・OFF”を切り替えやすく、くつろぎと食事の空間をしっかり分けて使えるのが魅力です。自分のペースでゆったりと過ごしたい方にぴったりの間取りですね。

廊下にキッチンをまとめたことで、リビングダイニングはすっきりと広く感じられる空間に。無駄のない設計とシンプルなデザインが、空間の美しさを際立たせます。ミニマルなライフスタイルを楽しみたい方に最適です。

限られた玄関スペースを有効活用。シンプルなシューズボックスを設置し、清潔感をキープ!廊下にある洗濯機置き場は扉付きで、生活感を上手に隠せます。来客時も安心のすっきり空間です。

玄関正面に配置された独立キッチンは、動線設計が見事♪食材の整理から調理までの流れがスムーズで、忙しい平日でも無駄なく過ごせます。暮らしの“テンポ”を大切にしたい人へ。

スライドドアを開ければ、洋室とリビングダイニングがゆるやかに繋がり1つの大きな空間に。お掃除や模様替えがしやすく、生活シーンに応じて空間を変化させられるフレキシブルな設計です。1人暮らしにちょうどいい合理性です✧

ロールカーテンの向こうには、シンプルでおしゃれなフロートタイプの洗面台が。インテリアの一部のように美しく収まり、ホテルのような非日常感を演出します✧また、クローゼットの隣にあるので、朝の身支度もスムーズ。忙しい朝でも気分良く1日を始められますね。

上質な大理石調パネルが放つ艶感が、バスルームをまるでホテルのように格上げ。機能も充実し、追い焚き・乾燥機付きで使い勝手は申し分ありません◎自宅でスパのような時間を堪能できますよ。

グレートーンでまとめたトイレ空間は、無駄のないスマートなデザイン。バスルームと繋がるシームレスな設計が、空間全体をモダンに見せます。小さな空間にもデザインのこだわりを♡
東京グラウンド編集部の住まいレビュー
洗練と快適を両立した、都心のラグジュアリー1LDK✧専有面積約30.68㎡の中に約6.9帖のリビングダイニングと5.2帖の洋室を備え、食事とリラックスの空間をきちんと分けた快適な間取りです。新規リフォームによって、キッチン・バスルーム・トイレ・フローリング・照明まで一新し、潔感のある空間へと生まれ変わりました。2つのクローゼットとロールカーテン付き収納スペースで、すっきりとした暮らしも実現可能。さらに、東京ミッドタウン徒歩数分という好立地で、ビジネスもプライベートも軽やかに♪都心にいながらも“暮らす”ことを楽しめる、上質な一部屋です。ぜひ気になる方はお気軽にお問い合わせくださいね。 ライター:hana【25J22】
この物件の毎月の支払いイメージを
試算してみませんか?
頭金や返済年数などを入力するだけで毎月の合計支払額をシミュレーションできます。
5,280
毎月の支払い予想シミュレーション
※試算結果はあくまで目安であり、実際の借り入れを保証するものではありません。
※物件によっては上記以外の別途費用が発生する場合もございます。詳しくはお問い合わせくださいませ。
住戸概要
間取り図
なら
仲介手数料 無料!
追加費用も一切なし
マンションは、“どこから買うか”で
支払う費用が変わります
仕組みを詳しく見る
月々の支払い目安を見る
※ローンの⽬安は、頭⾦ゼロ、借⼊年数35年、都市銀⾏・変動⾦利0.595%(優遇利⽤を想定。) 審査内容により、融資の⼀部または全部をご利⽤いただけない場合がございます。予めご了承ください。
間取り図
4F
この物件の毎月の支払いイメージを
試算してみませんか?
頭金や返済年数などを入力するだけで毎月の合計支払額をシミュレーションできます。
11,480
毎月の支払い予想シミュレーション
※試算結果はあくまで目安であり、実際の借り入れを保証するものではありません。
※物件によっては上記以外の別途費用が発生する場合もございます。詳しくはお問い合わせくださいませ。
住戸概要
こちらのお部屋は販売終了いたしました
過去に販売したお部屋の一部をご紹介。
住まい探しやリノベーションのヒントにご覧ください。




東京グラウンド編集部の住まいレビュー
街並みがとても綺麗でしたが、周辺にスーパーが少ないのは不便さを感じてしまうかもしれません(/_;)
ただ高級住宅街に位置しているとあって、外観から品格を感じられました☆
リノベーションされたお部屋はとてもかっこよく仕上がっており、洗練された空間演出が魅力の1つかもしれません+*
ウォークインクローゼット、デスクスペースといったメリハリを付けながら暮らせる設備が整っており、とてもおススメしたい物件です♡ ライター:小笠原【21F06】
こちらのお部屋は販売終了いたしました
過去に販売したお部屋の一部をご紹介。
住まい探しやリノベーションのヒントにご覧ください。




[都会の真ん中で贅沢ガーデニング] 赤坂ロイヤルマンション
乃木坂駅
徒歩3分

入り組んだ場所にひっそりと佇む『赤坂ロイヤルマンション』。言わずもがな好立地にあり、ご友人に羨ましがられる機会も増えるのではないでしょうか。建物に囲まれ隠れていますが、過去に大規模修繕履歴がある赤いタイル貼りの外壁で存在感たっぷり♪

アプローチ部分は長く取られており、マンションと「赤坂通り」との距離が空いていました。車の走行音や、通行人の声を気にせずに暮らしが叶いますよ。

清潔感のある広々としたエントランス。オートロックを完備している上に、親切な管理人さんがいらっしゃるので防犯面もバッチリです。

エントランスの一角には、宅配ボックスが設置されています。不在時に届いたお荷物を、帰宅後すぐに受け取ることが可能です◎
その他の共用部・設備写真
物件概要
設備・特徴
エレベーター オートロック 宅配BOX 防犯カメラ 新耐震基準適合 長期修繕計画有
乃木坂駅は東京メトロ千代田線が乗り入れる利便性抜群の駅で、表参道・赤坂・霞ヶ関など都心主要エリアへのアクセスもスムーズです。駅周辺には美術館やギャラリーが点在し、特に「国立新美術館」や「サントリー美術館」など文化施設が徒歩圏内にあるため、アートや文化に触れながら日常を楽しむことができます✿もちろん、スーパーやコンビニ、カフェ、レストランが充実しており、日々の生活に必要なものを徒歩圏内で揃えられる利便性の高さも魅力。また、駅周辺は高級住宅街や落ち着いたオフィス街が混在しており、華やかさと静けさを両立した住環境。治安も良好で夜間でも安心して歩ける街並みが整っています。
アクセス
東京メトロ千代田線 『乃木坂』駅 徒歩3分
東京メトロ日比谷線/都営大江戸線 『六本木』駅 徒歩6分
東京メトロ千代田線 『赤坂』駅 徒歩9分
東京メトロ銀座線/半蔵門線/都営大江戸線 『青山一丁目』駅 徒歩11分
買い物
学区
※掲載している学区情報は、記事制作時点での参考情報です。
区域によっては学校の指定が異なる場合もありますので、詳細は必ずご確認ください。
その他
こちらの物件は弊社運営の別サイトでもご紹介中♪