間取り図
価格改定
なら
仲介手数料 無料!
追加費用も一切なし
マンションは、“どこから買うか”で
支払う費用が変わります
仕組みを詳しく見る
月々の支払い目安を見る
※ローンの⽬安は、頭⾦ゼロ、借⼊年数35年、都市銀⾏・変動⾦利0.595%(優遇利⽤を想定。) 審査内容により、融資の⼀部または全部をご利⽤いただけない場合がございます。予めご了承ください。
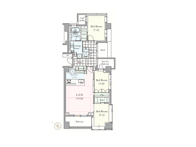
間取り図
1003号室
編集部が実際に現地を訪れ、見たもの・感じたことをレポート。
図面だけでは伝わらない"リアルな空気感"をお届けします。
更新日:2026/04/22
更新日:2026/04/22
光と風を享受するハイグレード住戸

ご紹介するのは10階部分に位置する南西向きの3方角住戸。専有面積90.05㎡の3LDK+2WICというゆとりある間取りで、お子様のいるご家庭でものびのびと暮らせる広さが確保されています。三方向に開かれた設計により、陽光と風をたっぷり取り込む開放的な空間に。まさに採光に恵まれたプレミアムな一邸です。

約19.9帖のリビングダイニングキッチンは、家族の中心となる広々空間。床暖房を完備しているため、寒い季節も足元からやさしく温まり、小さなお子様やペットにも快適♪南西向きの大きな窓からはたっぷりと陽光が差し込み、日中は照明をつけなくても十分な明るさに包まれます。

洋室は約7.4帖、5.6帖、6.1帖の3部屋。全室に窓が設けられ、どのお部屋も明るい空間に仕上がっています。クローゼットやウォークインクローゼットも備え、収納力も十分。家族構成の変化にも対応できる間取りですよ。

広さに余裕のあるキッチンは、家族でキッチンに立つ時間も楽しめるレイアウト。背面にはカップボードが設置され、食器類から電子レンジなどの家電まで美しく収納可能。食洗機・ディスポーザーも備わり、忙しい日々の家事負担を軽減してくれますよ◎

深みのあるブラウン木目が印象的な洗面化粧台は、空間に落ち着きを与えます。三面鏡仕様で後ろ姿までスムーズにチェック可能。鏡裏やボウル下の収納も充実しており、日用品を美しく整理できます。

大理石調パネルを採用したバスルームは、高級感あふれる仕上がり。1620サイズのゆとりある空間で、お子様との入浴も快適です。楽湯機能付きのバスタブは肩や腰にお湯を当てられ、まるでスパのよう。窓付きで自然換気ができるのも嬉しいポイント。

廊下の壁一面に窓が設けられ、室内にたっぷりの自然光が届きます。閉塞感を感じさせない明るさが印象的。さらに玄関から室内が直接見えない設計となっており、プライバシーにも配慮されていました。

10階部分ならではの開放的な眺望も魅力のひとつ。昼間は澄んだ青空が広がり、爽やかな景色を楽しめます。夜になるとビル群の灯りが煌めき、ロマンティックな雰囲気に。日常の中で異なる表情の景色を堪能できるのは嬉しいですね♡
その他の室内・設備写真
▲ このお部屋の雰囲気がお好みの方へ
東京グラウンド編集部の住まいレビュー
今回ご紹介したのは『プラウド赤坂』の10階部分に位置する角住戸。南西向きの3方角に開かれたポジションで、専有面積は90㎡超の3LDK+2WICです。お子様のいるご家庭でもゆとりを持って暮らせる広さが確保されていました。室内に入ると、まず感じるのは光の豊かさ。3方向から差し込む陽光が空間全体を明るく包み込み、まさにプレミアムと呼ぶにふさわしい開放感です。
約19.9帖のリビングダイニングキッチンは、家族が自然と集まるゆとりある空間。床暖房を完備しているため、寒い季節でも足元からじんわりと温まり、小さなお子様やペットにもやさしい設計です。南西向きの大きな窓からはたっぷりの光が入り、日中は照明に頼らず過ごせるほどの明るさ。10階ならではの抜け感ある眺望も魅力で、昼は青空、夜は煌めく都心の灯りと時間帯ごとに異なる景色を楽しめそう♡キッチンは収納力が抜群で、食器や調理器具を集めるのが好きな方でも安心◎食洗機やディスポーザーも完備しており日々の忙しい家事をサポートしてくれるのも嬉しいポイントです。
廊下は壁一面が窓となっており、住戸の奥まで自然光が届く設計らに玄関から室内が直接見えない造りになっているため、プライバシーへの配慮も感じられました。大理石調パネルを採用したバスルームは楽湯機能付きバスタブで肩や腰に心地よくお湯を当てながら、まるでスパのようなリラックスタイムを堪能できます。3つの洋室すべてに窓を備え、明るさと通風を確保。ウォークインクローゼットをはじめ収納も充実しており、ライフスタイルに合わせて柔軟に使い分けられそうです。都心・赤坂で、光と開放感に満たされる10階角住戸。日常を一段引き上げる、上質な暮らしはいかがでしょうか♪ ライター:hana【26B06】
この物件の毎月の支払いイメージを
試算してみませんか?
頭金や返済年数などを入力するだけで毎月の合計支払額をシミュレーションできます。
44,800
毎月の支払い予想シミュレーション
※試算結果はあくまで目安であり、実際の借り入れを保証するものではありません。
※物件によっては上記以外の別途費用が発生する場合もございます。詳しくはお問い合わせくださいませ。
住戸概要
こちらのお部屋は販売終了いたしました
過去に販売したお部屋の一部をご紹介。
住まい探しやリノベーションのヒントにご覧ください。
東京グラウンド編集部の住まいレビュー
『赤坂』駅は高いビルが立ち並ぶ日本有数のオフィス街。高級住宅街としても知られており、芸能人や著名人も多く暮らしています。『プラウド赤坂』は、高級感溢れる共用部が印象的。お部屋の一番のオススメは、窓が多く開放感のあるメインルーム。ペットも元気に遊べるゆったりしたお部屋は、家族のコミュニケーションの要になるはずです。収納豊富なのも魅力的。ぜひ一度、ご覧ください♡ ライター:田中【22C26】
[歴史と格式のある土地で] プラウド赤坂
赤坂駅
徒歩3分

氷川坂沿いに立つ『プラウド赤坂』。野村不動産株式会社旧分譲”プラウドシリーズ”の1つです。レンガ調のタイル張りが特徴の総戸数40戸の中規模コミュニティマンション。2015年築とまだまだ新しく新耐震基準を満たしているところもポイントです◎

車両置き場は敷地内に設けられています。駐輪場はお部屋の鍵をもっていないと出し入れできない仕様で、防犯面もバッチリ★

重厚感のあるアプローチを抜けエントランスへ…。外観と同じレンガ調のタイルが使用されています。オートロック・防犯カメラ・24時間セキュリティシステムなど安心した毎日を送れるでしょう。

フロア間のご移動にはエレベーターをご利用ください。1基のみの稼働ではありますが、総戸数は40戸とあまり多くはないため待ち時間は少なく済みそうですね。
その他の共用部・設備写真
物件概要
設備・特徴
エレベーター オートロック 宅配BOX 防犯カメラ 24時間セキュリティシステム24時間ゴミ出し可 新耐震基準適合
『プラウド赤坂』の最寄りは、東京メトロ千代田線が乗り入れる赤坂駅。ビジネス街というイメージの強い赤坂ですが、「TBS」のお隣には「赤坂Bizタワー SHOPS&DINING」や「赤坂サカス」などのショッピングモールもあり、お出かけスポットとしての一面もあります♪赤坂はグルメの街でもあり、人気店が多く出店しているところも特徴の1つ。普段から外食をメインにしている方でも飽きることなく過ごせるでしょう。駅周辺は賑わっていますが、『プラウド赤坂』に近づくにつれ落ち着いたエリアへと変わっていき、静かな環境に身を置きたい方にとってもオススメのエリアです。
アクセス
東京メトロ千代田線 『赤坂』駅 徒歩3分
東京メトロ南北線 『六本木一丁目』駅 徒歩10分
東京メトロ銀座線/南北線 『溜池山王』駅 徒歩10分
東京メトロ日比谷線/都営大江戸線 『六本木』駅 徒歩11分
買い物
学区
※掲載している学区情報は、記事制作時点での参考情報です。
区域によっては学校の指定が異なる場合もありますので、詳細は必ずご確認ください。
その他
こちらの物件は弊社運営の別サイトでもご紹介中♪