購入・売却・リノベ・無料相談はこちら 公式LINEで気軽に相談

ダイアパレス戸越

URLとタイトルをコピーしました!

【仲介手数料相談】品川区平塚2-1-16/戸越銀座駅徒歩6分/総戸数27戸/昭和54年/1979年7月/地上8階建/定休日なしで内見予約・無料相談受付中です!
この物件の売却相談はこちら
仲介手数料相談
203号室
5,480万円

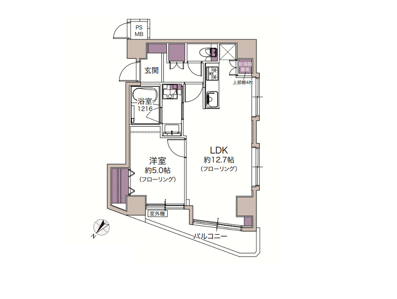
間取り図

URLとタイトルをコピーしました!
5,480万円
43.20㎡
1LDK

こちらの物件の仲介手数料は
個別にご案内いたします。
詳細をご希望の方は
お気軽にご相談ください。

お問い合わせはこちら

月々の支払い目安を見る

ローンの目安
144,000円/月
管理費
18,150円/月
修繕積立金
7,300円/月
合計
169,450円/月

※ローンの⽬安は、頭⾦ゼロ、借⼊年数35年、都市銀⾏・変動⾦利0.595%(優遇利⽤を想定。) 審査内容により、融資の⼀部または全部をご利⽤いただけない場合がございます。予めご了承ください。

間取り図

203号室
43.20㎡ 1LDK

この物件の毎月の支払いイメージを
試算してみませんか?

頭金や返済年数などを入力するだけで毎月の合計支払額をシミュレーションできます。

5,480

万円

最初にまとめて支払うお金です。
頭金なしでもローンは組めますので
ご安心ください。

万円

ローンを何年かけて返済するかを
入力します。よくある期間は
35年、30年、20年など。

変動金利で0.3〜0.6%(低金利だが将来的に変動)、固定金利で1.0〜1.5%(返済額がずっと一定で安心)が一般的な目安です。

毎月の支払い予想シミュレーション

ローン支払い目安
144,000円/月
管理費
18,150円/月
修繕積立金
7,300円/月
合計
169,450円/月

※試算結果はあくまで目安であり、実際の借り入れを保証するものではありません。
※物件によっては上記以外の別途費用が発生する場合もございます。詳しくはお問い合わせくださいませ。

住戸概要

価格
5,480万円
所在階
2階
間取り
1LDK
専有面積
43.20㎡
バルコニー
5.59㎡
管理費
18,150円/月
修繕積立金
7,300円/月
リノベーションアフターサービス保証付

建物と街のようす

[ここで見つける、昔ながらの優しさと今の便利。] ダイアパレス戸越

品川区平塚2-1-16MAP

戸越銀座駅

徒歩6分

外観・共用部

その他の共用部・設備写真

物件概要

物件名
ダイアパレス戸越
所在地
品川区平塚2-1-16
築年月
昭和54年/1979年7月
構造
鉄骨鉄筋コンクリート造
階数
8階建
土地
所有権
総戸数
27戸
分譲会社
ダイア建設株式会社
管理会社
株式会社東急コミュニティ
駐車場
駐輪場
有 (500円/月)
バイク置き場
有 (1,000円/月)
ペット飼育
その他 (小鳥・観賞用魚のみ可 ※細則有)

設備・特徴

エレベーター 防犯カメラ

アクセス・周辺環境

アクセス

都営浅草線 『戸越』駅 徒歩6分

東急池上線 『戸越銀座』駅 徒歩7分

学区

京陽小学校
徒歩9分(650m)
荏原平塚学園
徒歩12分(900m)

※掲載している学区情報は、記事制作時点での参考情報です。
区域によっては学校の指定が異なる場合もありますので、詳細は必ずご確認ください。

こちらの物件は弊社運営の別サイトでもご紹介中♪

ダイアパレス戸越Ⅱもご紹介中

こんなお部屋に住みたい方へ リフォーム:リノベーション

不動産にまつわるご相談・ご質問・資料請求など
まずはお気軽にお問い合わせくださいませ。