間取り図
なら
仲介手数料 30% OFF
マンションは、“どこから買うか”で
支払う費用が変わります
仕組みを詳しく見る
月々の支払い目安を見る
※ローンの⽬安は、頭⾦ゼロ、借⼊年数35年、都市銀⾏・変動⾦利0.595%(優遇利⽤を想定。) 審査内容により、融資の⼀部または全部をご利⽤いただけない場合がございます。予めご了承ください。
間取り図
4F
東京グラウンド編集部の住まいレビュー
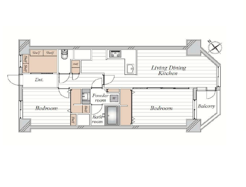
目黒駅から徒歩4分。山手線をはじめ複数路線が使える利便性を持ちながら、駅前の喧騒を少し離れた場所に佇むのが『目黒プラザ』です。1971年築・総戸数102戸のビッグコミュニティ。16階建てマンションですが、共用部は日勤管理と行き届いた清掃により、築年数を感じさせない落ち着いた印象。エントランスから廊下に至るまで、住まう人を静かに迎えてくれます♩お部屋は4階部分、南東向きの角部屋。専有面積70.81㎡の2LDKで、最大の魅力は21.9帖の広々としたLDKです。南東からの光がやわらかく差し込み、窓の先には目黒の街並みを一望する開放的な眺望。ホワイト基調の内装に木目を取り入れたナチュラルな雰囲気で、家具やインテリアの自由度も高めです。廊下には約5.4帖と約5.6帖の洋室を独立配置し、どちらもクローゼット付き。生活空間とプライベート空間をきちんと分けられるため、2人暮らしにも心地よい設計です。サニタリールームはLDKから直接アクセスでき、洗面・バス・洗濯機置き場を集約。木目デザインの洗面化粧台にはキャビネットも備え、収納力も申し分ありません。セントラル空調を採用し、冷暖房費は管理費に含まれる点も魅力のひとつ。日当たりの良いバルコニーとゆとりあるLDKを中心に、都心でありながら伸びやかな暮らしが叶う一室ですよ✧ ライター:mao【26A26】
この物件の毎月の支払いイメージを
試算してみませんか?
頭金や返済年数などを入力するだけで毎月の合計支払額をシミュレーションできます。
8,180
毎月の支払い予想シミュレーション
※試算結果はあくまで目安であり、実際の借り入れを保証するものではありません。
※物件によっては上記以外の別途費用が発生する場合もございます。詳しくはお問い合わせくださいませ。
住戸概要
間取り図
なら
仲介手数料 無料!
追加費用も一切なし
マンションは、“どこから買うか”で
支払う費用が変わります
仕組みを詳しく見る
月々の支払い目安を見る
※ローンの⽬安は、頭⾦ゼロ、借⼊年数35年、都市銀⾏・変動⾦利0.595%(優遇利⽤を想定。) 審査内容により、融資の⼀部または全部をご利⽤いただけない場合がございます。予めご了承ください。
間取り図
1303号室
この物件の毎月の支払いイメージを
試算してみませんか?
頭金や返済年数などを入力するだけで毎月の合計支払額をシミュレーションできます。
7,980
毎月の支払い予想シミュレーション
※試算結果はあくまで目安であり、実際の借り入れを保証するものではありません。
※物件によっては上記以外の別途費用が発生する場合もございます。詳しくはお問い合わせくださいませ。
住戸概要
こちらのお部屋は販売終了いたしました
過去に販売したお部屋の一部をご紹介。
住まい探しやリノベーションのヒントにご覧ください。
東京グラウンド編集部の住まいレビュー
高級住宅街としても知られる”品川区上大崎2丁目”アドレスの『目黒プラザ』。格式高いヴィンテージマンションですが、無償でトランクルームを借りることができるなど、親近感を感じられるのも魅力の1つかもしれません。
室内は、ポップなアクセントクロスが目を惹く3LDK。全室のフローリングには天然木を使用しているため、素材の経年変化を楽しむことができます。専有面積約100.10㎡の広さを、是非ご自身で体感してみてくださいね+* ライター:小笠原【22C16】
[駅チカでヴィンテージの暮らしを] 目黒プラザ
目黒駅
徒歩4分

周辺に視界を遮る建物が少ないため、街並みの中で際立つ『目黒プラザ』。白を基調とした外観に、規則的で躍動感のあるデザインが映え、通りからも自然と目を惹きます。目黒駅より徒歩4分、16階建て・総戸数102戸のスケール感あるマンション✦

ブラウンのタイル貼りの階段が印象的で、エントランス周りは明るく華やかな雰囲気。ベビーカーや足腰の弱い方も安心して出入りできるスロープ付きなのも嬉しいポイントです♪

敷地内には屋根付きの駐車場を完備しており、雨の日の乗り降りや汚れ対策も安心。専用トランクルームも用意されているため、アウトドア用品や季節家電の置き場にも困りません◎

エントランスにはオートロックと管理人室があり、建物全体に落ち着いた安心感をプラス◎宅配ボックスも完備されているので、不在時の宅配物もストレスなく受け取れますね。
その他の共用部・設備写真
物件概要
設備・特徴
エレベーター オートロック 宅配BOX トランクルーム 防犯カメラ 長期修繕計画有
目黒駅周辺は都心の利便性と落ち着いた住環境を兼ね備えた人気エリアです。JR山手線をはじめ、南北線・三田線・目黒線が利用でき、渋谷や品川、大手町方面へもスムーズにアクセス可能。駅前には商業施設や飲食店が揃い、日常の買い物から外食まで不自由しません。一方で、駅から少し歩くと閑静な住宅街が広がり都会の喧騒を感じさせない穏やかな雰囲気が漂います✿「目黒川」沿いは散策やランニングに人気で、季節ごとの景色を楽しめるのも魅力。さらに「自然教育園」や「林試の森公園」など緑を身近に感じられるスポットも充実しています♩利便性と住み心地、どちらも大切にしたい方におすすめしたいエリアですよ✦
アクセス
JR山手線/東急目黒線/東京メトロ南北線/都営三田線 『目黒』駅 徒歩4分
買い物
学区
※掲載している学区情報は、記事制作時点での参考情報です。
区域によっては学校の指定が異なる場合もありますので、詳細は必ずご確認ください。
その他
こちらの物件は弊社運営の別サイトでもご紹介中♪