購入・売却・リノベ・無料相談はこちら 公式LINEで気軽に相談

ライオンズガーデン浜田山

ライオンズガーデン浜田山

URLとタイトルをコピーしました!

【仲介手数料最大無料】杉並区成田西1-28-11/浜田山駅徒歩16分/駐車場有/ペット飼育可/新耐震基準適合/定休日なしで内見予約・無料相談受付中です!
この物件の売却相談はこちら

仲介手数料最大無料でご紹介

東京グラウンド掲載物件以外も
仲介手数料が最大無料!

仲介物件の多くは『レインズ』という不動産会社だけが利用できる情報サイトに掲載されています。レインズはどの不動産会社も同じ情報にアクセスできる仕組みのため、会社によって紹介できる物件が限定されるということはほとんどありません。
仲介手数料最大無料でご紹介 当サイトに掲載されていない物件であっても、気になる物件があれば、仲介手数料無料または割引(規定上限額の30〜50%)でご案内可能です。そのため、物件の条件にかかわらず、常にお客さまのご負担を最小限に抑えたご提案を行っています。

●ご購入以外の当社サービスについても、すべて無料相談を承っております

ご希望のサービスにチェックを入れて、お問い合わせフォームへお進みください。

無料相談する

成約済み
販売終了物件

こちらのお部屋は販売終了いたしました

建物と街のようす

[新鮮な空気で] ライオンズガーデン浜田山

杉並区成田西1-28-11MAP

浜田山駅

徒歩16分

外観・共用部

その他の共用部・設備写真

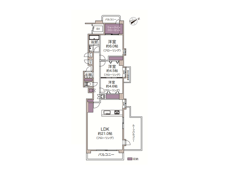
物件概要

物件名
ライオンズガーデン浜田山
所在地
杉並区成田西1-28-11
築年月
昭和62年/1987年7月
構造
鉄筋コンクリート造
階数
地下1階付 3階建
土地
所有権
総戸数
18戸
分譲会社
大京観光株式会社
管理会社
株式会社大京アステージ
駐車場
有 (15,000円~18,000円/月)
駐輪場
有 (12,000円/年)
バイク置き場
有 (17,000円/月)
ペット飼育
可 (細則有)
事務所使用
不可

設備・特徴

エレベーター オートロック 防犯カメラ 新耐震基準適合 長期修繕計画有

アクセス・周辺環境

アクセス

京王井の頭線 『浜田山』駅 徒歩16分

東京メトロ丸ノ内線 『南阿佐ヶ谷』駅 徒歩16分

学区

杉並第二小学校
徒歩3分(230m)
東田中学校
徒歩8分(600m)

※掲載している学区情報は、記事制作時点での参考情報です。
区域によっては学校の指定が異なる場合もありますので、詳細は必ずご確認ください。

こちらの物件は弊社運営の別サイトでもご紹介中♪

こんなお部屋に住みたい方へ リフォーム:リノベーション

不動産にまつわるご相談・ご質問・資料請求など
まずはお気軽にお問い合わせくださいませ。