購入・売却・リノベ・無料相談はこちら 公式LINEで気軽に相談

ダイアパレス池袋

URLとタイトルをコピーしました!

【仲介手数料最大無料】豊島区池袋2-73-5/池袋駅徒歩8分/駐車場有/新耐震基準適合/総戸数53戸/定休日なしで内見予約・無料相談受付中です!
この物件の売却相談はこちら

仲介手数料最大無料でご紹介

東京グラウンド掲載物件以外も
仲介手数料が最大無料!

仲介物件の多くは『レインズ』という不動産会社だけが利用できる情報サイトに掲載されています。レインズはどの不動産会社も同じ情報にアクセスできる仕組みのため、会社によって紹介できる物件が限定されるということはほとんどありません。
仲介手数料最大無料でご紹介 当サイトに掲載されていない物件であっても、気になる物件があれば、仲介手数料無料または割引(規定上限額の30〜50%)でご案内可能です。そのため、物件の条件にかかわらず、常にお客さまのご負担を最小限に抑えたご提案を行っています。

●ご購入以外の当社サービスについても、すべて無料相談を承っております

ご希望のサービスにチェックを入れて、お問い合わせフォームへお進みください。

無料相談する

成約済み
販売終了物件
成約済み
販売終了物件

こちらのお部屋は販売終了いたしました

編集部の
部屋レポ

過去に販売したお部屋の一部をご紹介。
住まい探しやリノベーションのヒントにご覧ください。

肩肘張らず、リラックス。

▲ このお部屋の雰囲気がお好みの方へ

東京グラウンド編集部の住まいレビュー

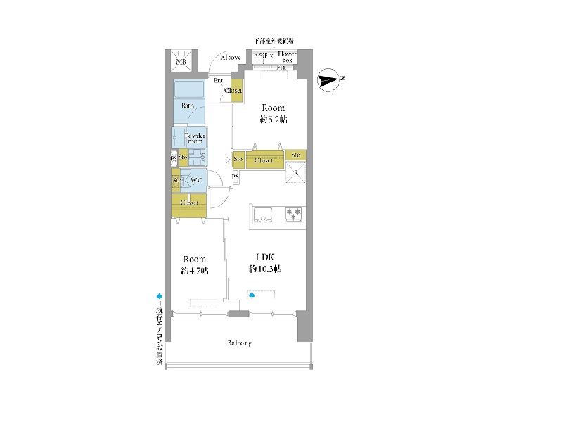
『ダイアパレス池袋』は大都会のターミナル・池袋駅から徒歩8分のマンションです。山手線、丸の内線、有楽町線といった都内主要都市を走る路線のほか、西武池袋線を始めとした埼玉方面へのお出かけに便利な路線が複数乗り入れているのが特徴的ですね。駅からのルートは東武百貨店のある西口から文化通りを一直線。エントランスは劇場通りに面しています。西口は飲み屋街として知られていますが、『ダイアパレス池袋』の周辺は緑が多く落ち着いた雰囲気✿池袋駅が徒歩圏内という立地でありながら、ゆったりと暮らせる環境ですよ。こちらの物件は2階に位置する2LDKで、以前に一度リノベーションが行われています。大理石調の高級感あふれる玄関&廊下を抜けると、ベージュ調のお洒落なリビングダイニングキッチンがお出迎え。居室の床はフローリングが使用されているため、裸足のまま過ごしても快適です。お天気が良い日はウッド調のバルコニーにイスを出して、のんびりと羽を伸ばしてみてはいかがでしょうか☼ ライター:yuki【24G31】

こちらのお部屋は販売終了いたしました

編集部の
部屋レポ

過去に販売したお部屋の一部をご紹介。
住まい探しやリノベーションのヒントにご覧ください。

▲ このお部屋の雰囲気がお好みの方へ

東京グラウンド編集部の住まいレビュー

今回はビッグターミナルである池袋駅から徒歩7分のマンションをご紹介しました♡駅周辺には百貨店、ショッピングビル、商業施設、娯楽施設、飲食店と充実した生活を送ることができるお店が勢揃いです◎マンションへと向かう道中には大きなスーパーがあるので食品のお買い物も済ませられますよ♬劇場通りに佇む『ダイアパレス池袋』は新耐震基準適合物件のため安全な暮らしが叶います。ご紹介したお部屋は2022年10月にリノベーションが完了し、綺麗な状態が保たれていますよ✧気になる設備は、追い焚き機能・浴室乾燥機・床暖房・食洗器・浄水器と充実しているので快適にお過ごしいただけます♡ぜひ一度ご内覧くださいね。 ライター:坂口【23A17】

建物と街のようす

[なんでも揃う、大都会で暮らす] ダイアパレス池袋

豊島区池袋2-73-5MAP

池袋駅

徒歩8分

外観・共用部

その他の共用部・設備写真

物件概要

物件名
ダイアパレス池袋
所在地
豊島区池袋2-73-5
築年月
平成11年/1999年7月
構造
鉄筋コンクリート造
階数
14階建
土地
所有権
総戸数
53戸
分譲会社
ダイア建設株式会社
管理会社
株式会社東急コミュニティー
駐車場
有 (34,000円/月)
駐輪場
有 (1,200円/年 ※ステッカー貼り付け)
バイク置き場
有 (12,000円/年)
ペット飼育
不可
事務所使用
不可
備考・その他
2025年11月 大規模修繕工事実施中
組合費:500円/月

設備・特徴

エレベーター オートロック 宅配BOX 防犯カメラ 新耐震基準適合

アクセス・周辺環境

アクセス

JR山手線/埼京線/湘南新宿ライン/東武東上線/西武池袋線/東京メトロ丸ノ内線/有楽町線/副都心線 『池袋』駅 徒歩8分

こちらの物件は弊社運営の別サイトでもご紹介中♪

こんなお部屋に住みたい方へ リフォーム:リノベーション

不動産にまつわるご相談・ご質問・資料請求など
まずはお気軽にお問い合わせくださいませ。