間取り図
価格改定
なら
仲介手数料 無料!
追加費用も一切なし
マンションは、“どこから買うか”で
支払う費用が変わります
仕組みを詳しく見る
月々の支払い目安を見る
※ローンの⽬安は、頭⾦ゼロ、借⼊年数35年、都市銀⾏・変動⾦利0.595%(優遇利⽤を想定。) 審査内容により、融資の⼀部または全部をご利⽤いただけない場合がございます。予めご了承ください。
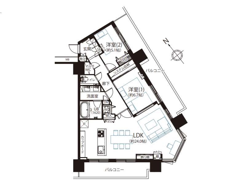
間取り図
2504号室
編集部が実際に現地を訪れ、見たもの・感じたことをレポート。
図面だけでは伝わらない"リアルな空気感"をお届けします。
更新日:2025/12/13
更新日:2025/12/13
富士山ビューの高層階・高機能2LDK

25階ならではの開放感に包まれる、タワーマンションの2LDK。広がる景色をまるで1枚のパノラマアートのように切り取るワイドサッシが、住まう人の毎日を華やかに彩ります。室内はフルリノベーションで生まれ変わり、木目のぬくもりとホワイトの清潔感が溶け合う空間に仕上がりました✧

メインルームは、約24帖とは思えないほどの伸びやかな広がり。窓辺に広がる景色は、ただの外の風景ではなく、室内のデザインに溶け込む“もうひとつのインテリア”として存在します。住まうほどに自分だけのギャラリーのような空間をお楽しみいただけますよ♥

25階からのパノラマは、この住まいの特権。天気の良い日には、遠くに富士山の稜線がくっきりと浮かび上がり、思わず見とれてしまうほどの景色が広がります。夜には煌びやかな都会の夜景を楽しむことができるのでは・・・✧

オープンなアイランドキッチンは毎日の料理をワクワクに変える空間。食材を手に取るたびに、自然と笑顔が広がり、簡単な食事も特別なひと時に。お揃いのカップボード付きで収納力も抜群です◎

バルコニーに面したベッドルームは、朝の目覚めとともに広がる景色を存分に楽しめる贅沢な空間。シンプルで洗練されたデザインの室内には、システム収納を完備しており、衣類や小物もすっきりと整理可能です。

ベージュトーンでまとめられたバスルームは、上質な高級感が漂う特別な空間。浴室乾燥や追い焚き機能に加え、浴室TVも完備しており、ゆったりと湯船に浸かりながら映像を楽しむ贅沢な時間が叶いますよ✦

ふたり並んでゆったり使えるダブルボウル仕様のパウダールーム。朝の支度も、夜のお手入れも、互いのペースを気にせず心地よく過ごせます。壁面にはたっぷりのキャビネットが備わり、日用品やコスメをすっきり整理できるので、空間はいつも美しく整いますね。

アクセントクロスに木製ミラー、そしてベッセル型の洗面台が映える独立トイレ。ひとつひとつの要素が調和し、機能性だけでなく“見て楽しむ”トイレとしての魅力を存分に感じられる空間に仕上がっていますよ✿
その他の室内・設備写真
東京グラウンド編集部の住まいレビュー
池尻大橋駅から徒歩2分の駅チカタワーマンション『プリズムタワー』。こちらのお部屋は27階中の25階に位置しており、突き抜けるような眺望が魅力的◎東×南×西向きの三方角部屋なので、1日を通して明るい日差しが入ります☀もちろん魅力的なのは眺望だけではありません。ゆとりを持って暮らせる専有面積86.02㎡の2LDKで、内装は新規フルリノベーション済み。リビングダイニングキッチンの広さは約24帖です。間接照明やデザインウォールがあちらこちらに取り入れられており、煌びやかな印象のデザイン✦キッチンにディスポーザーや蒸気排出ユニット、バスルームにモニターや肩湯・腰湯、床ワイパー洗浄機能を備えているなど水回りの機能性が優れているのも外せないポイントですね。ペットは2匹まで飼育可能です。タワーマンションならではの高級感あふれる暮らしをお楽しみください! ライター:yuki【25K19】
この物件の毎月の支払いイメージを
試算してみませんか?
頭金や返済年数などを入力するだけで毎月の合計支払額をシミュレーションできます。
26,800
毎月の支払い予想シミュレーション
※試算結果はあくまで目安であり、実際の借り入れを保証するものではありません。
※物件によっては上記以外の別途費用が発生する場合もございます。詳しくはお問い合わせくださいませ。
住戸概要
こちらのお部屋は販売終了いたしました
過去に販売したお部屋の一部をご紹介。
住まい探しやリノベーションのヒントにご覧ください。
景色に見惚れる♡




東京グラウンド編集部の住まいレビュー
池尻大橋から歩いて3分ほど、桜の名所として知られる目黒川沿いにそびえる『プリズムタワー』。地下2階付き27階建ての堂々たる姿は圧巻です°˖✧シンプル且つ洗練された造りの館内を進みお目当てのお部屋へ…。今回ご紹介するお部屋は24階の高層フロアにあります。リノベーションされた室内はナチュラルテイストのホッとする空間。ペット可×SOHO利用可×2LDKのお部屋は住みやすさも詰まっているんです。メインルームには床暖房とビルトインエアコンを完備。1年中快適にお過ごしいただけます。足元から冷えてしまう心配がなくペットも元気よく走り回ることができそう♡日用品の収納に適した物入もご用意。季節家電から防犯グッズまで様々なアイテムを収納することが可能です。コンパクトなお部屋なので収納を賢く利用してスッキリとした空間を保ってくださいね。バルコニーからは中目黒方面を望め、お隣にある「目黒天空庭園」の緑を見ることもできますよ。利便性に優れた立地で新しい生活をスタートしませんか♡それでは室内を詳しく見ていきましょう。 ライター:yuka【24H27】
こちらのお部屋は販売終了いたしました
過去に販売したお部屋の一部をご紹介。
住まい探しやリノベーションのヒントにご覧ください。




東京グラウンド編集部の住まいレビュー
渋谷駅の隣のエリアで非常に立地が良く、人気のエリアへ歩いて行ける池尻大橋駅から徒歩2分のマンションをご紹介します♩駅周辺には、スーパーもコンビニがあり、生活に必要な買い物に困ることはありません。プリズムタワーは首都高大橋ジャンクションの空中庭園に直結の大規模タワーマンションです。お部屋は清潔感のあるワンルームで、ペット飼育可能なのが魅力ですよ♡18階からの眺望は良好で、快適な都会暮らしを体感できますね。 ライター:渡邊【23I08】
[圧巻の眺めを手に入れて] プリズムタワー
池尻大橋駅
徒歩2分

地下2階付き・地上27階建て、総戸数219戸の『プリズムタワー』。端正なシルエットとモダンなデザインが印象的で、街並みに凛とした存在感を放つタワーマンションです。

敷地内にはバイク置き場や機械式駐車場、駐輪場が完備されており、大切な車やバイクも安心して保管可能。日常の利便性と安心感がしっかり確保された、暮らしやすい環境です。

エントランスはオートロックに加え、防犯カメラも設置されており、セキュリティ面も万全。さらにエレベーターホールに進む手前にももうひとつオートロックがあり、住まう方の安心感をしっかりサポートしていますよ。

ホテルのラウンジのようなエレベーターホールには、ゆったりとしたソファが配置され、エレベーター待ちも快適✧お部屋までの廊下は内廊下でホテルライクな印象でした。
その他の共用部・設備写真
物件概要
設備・特徴
エレベーター オートロック 宅配BOX トランクルーム 防犯カメラ コンシェルジュサービス24時間ゴミ出し可各階ダストステーション24時間有人管理 新耐震基準適合
テナント
郵便局クリーニング店
池尻大橋駅は渋谷や三軒茶屋へアクセスしやすく、都心での通勤・通学に便利な立地が魅力✧駅周辺にはスーパーやコンビニ、飲食店が充実しており、毎日の買い物や外食にも困りません。たとえばスーパー「ライフ」やカフェ、ファストフード店なども近く、忙しい日常でもサッと立ち寄れる利便性があります。さらに、周辺には「目黒川」や「目黒天空庭園」など自然を感じられるスポットも点在し、散歩やリフレッシュにぴったり。駅徒歩圏内でありながら、都会の便利さと穏やかな暮らしを両立できる環境が整っています❀
アクセス
東急田園都市線 『池尻大橋』駅 徒歩2分
京王井の頭線 『神泉』駅 徒歩16分
東急東横線/東京メトロ日比谷線 『中目黒』駅 徒歩18分
買い物
学区
※掲載している学区情報は、記事制作時点での参考情報です。
区域によっては学校の指定が異なる場合もありますので、詳細は必ずご確認ください。
その他
こちらの物件は弊社運営の別サイトでもご紹介中♪