間取り図
価格改定
なら
仲介手数料 無料!
追加費用も一切なし
マンションは、“どこから買うか”で
支払う費用が変わります
仕組みを詳しく見る
月々の支払い目安を見る
※ローンの⽬安は、頭⾦ゼロ、借⼊年数35年、都市銀⾏・変動⾦利0.595%(優遇利⽤を想定。) 審査内容により、融資の⼀部または全部をご利⽤いただけない場合がございます。予めご了承ください。
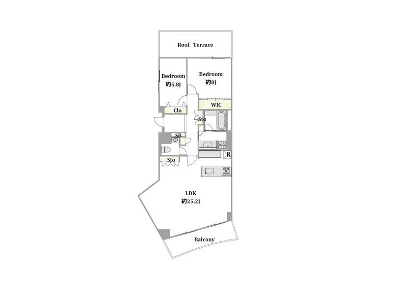
間取り図
404号室
詳細レポートは準備中です!
ひと足お先に、写真でお部屋の雰囲気をお楽しみください。
更新日:2025/12/05
更新日:2025/12/05








その他の室内・設備写真
東京グラウンド編集部の住まいレビュー
今回の舞台は麻布十番駅徒歩6分ほど、日向坂の上に佇む『三田清風ガーデン』の2LDK。専有面積は約90㎡とゆったりとした間取りで、バルコニー&ルーフテラスを含めると優に100㎡を越える贅沢な住まいです。2つある洋室にはいずれも大容量のクローゼットが取り入れられ寝室に最適。メインルームはおよそ25帖とのびのびとしたスペースが確保され、大きなソファやダイニングセットも自由にレイアウトすることが出来そうです。ちょっぴり珍しい6角形のお部屋となっており、コーナーを上手く使って存在感のあるアートを飾ったり、窓際に観葉植物を飾ったり、工夫次第で唯一無二の空間の使い方が出来そうです。少しでも気になる方はぜひ一度内見してみてくださいね。 ライター:kayo【25L05】
この物件の毎月の支払いイメージを
試算してみませんか?
頭金や返済年数などを入力するだけで毎月の合計支払額をシミュレーションできます。
24,900
毎月の支払い予想シミュレーション
※試算結果はあくまで目安であり、実際の借り入れを保証するものではありません。
※物件によっては上記以外の別途費用が発生する場合もございます。詳しくはお問い合わせくださいませ。
住戸概要
こちらのお部屋は販売終了いたしました
過去に販売したお部屋の一部をご紹介。
住まい探しやリノベーションのヒントにご覧ください。




東京グラウンド編集部の住まいレビュー
どこに行くにも便利な『麻布十番』駅からすぐの好立地マンション♡近隣には綱町三井倶楽部やオーストラリア大使館が佇む、閑静な街並みです。ホテルライクな共用部を抜けお部屋へ入ると、かなりゆとりのある間取りが広がります。トランクルームやシューズインクローゼット、ウォークインクローゼットもあり、収納スペースも豊富◎バルコニーからは墓地が見えますが、人によってはそこまで気にならずむしろ静かで落ち着いた住環境かと思いますよ♪大切なペットと一緒に開放感溢れる毎日をお過ごしください♡ ライター:田島【22C26】
こちらのお部屋は販売終了いたしました
過去に販売したお部屋の一部をご紹介。
住まい探しやリノベーションのヒントにご覧ください。




東京グラウンド編集部の住まいレビュー
今回は、洗練された雰囲気が漂う都内屈指の高級住宅街“三田エリア”の、日向坂の高台に佇むマンションをご紹介しました。資産価値の高いヴィンテージマンションで、ホテルさながらの佇まい。室内も広やかで素敵な内装が施されていました。収納力・動線など、暮らしやすい工夫が散りばめられ、どこを切り取っても素晴らしい物件。家具付の為、入居後インテリアコーディネートに迷うことなく、すぐに快適な生活をスタートさせることができる点も非常に大きなメリット♪ぜひ実際に足を運んでご自身の目でもチェックしてみてくださいね。きっと気に入るはずです♡ ライター:井出【21C08】
[優雅に奏でる曲線美] 三田清風ガーデン
麻布十番駅
徒歩4分




その他の共用部・設備写真
物件概要
設備・特徴
エレベーター オートロック トランクルーム 防犯カメラ 新耐震基準適合
三田1丁目は都心の利便性と落ち着いた住環境が心地よく融合する魅力的なロケーションです。周辺には慶應義塾大学や歴史ある寺院が点在し静かな風情が漂います。一方で、麻布十番・六本木・芝公園へも徒歩圏で、ショッピングやグルメ、緑豊かな散策スポットを気軽に楽しめる点も魅力。再開発が進む芝浦・田町エリアにも近く、生活動線の幅が広いのも特徴です。高台ならではの開放感ある街並みと、落ち着いた邸宅街の雰囲気が共存し、都心で快適かつ上質な暮らしを求める方にぴったりの住環境が整っています。
アクセス
東京メトロ南北線/都営大江戸線 『麻布十番』駅 徒歩4分
都営三田線/浅草線 『三田』駅 徒歩19分
学区
※掲載している学区情報は、記事制作時点での参考情報です。
区域によっては学校の指定が異なる場合もありますので、詳細は必ずご確認ください。