間取り図
価格改定
こちらの物件の仲介手数料は
個別にご案内いたします。
詳細をご希望の方は
お気軽にご相談ください。
お問い合わせはこちら
月々の支払い目安を見る
※ローンの⽬安は、頭⾦ゼロ、借⼊年数35年、都市銀⾏・変動⾦利0.595%(優遇利⽤を想定。) 審査内容により、融資の⼀部または全部をご利⽤いただけない場合がございます。予めご了承ください。
間取り図
1001号室
編集部が実際に現地を訪れ、見たもの・感じたことをレポート。
図面だけでは伝わらない"リアルな空気感"をお届けします。
更新日:2026/05/25
更新日:2026/05/25
東京タワーに見守られた暮らし

今回ご紹介のお部屋は、専有面積88.67㎡の2LDKです。南西角部屋のため全居室窓がありとっても開放的☀明るく爽やかな空間ですよ♪ペット飼育可能なのも嬉しいポイント。大切なペットと一緒に快適に暮らせること間違いなしです♡

メインルームは約17.0帖と広々としていて、リビングとダイニングのスペースをしっかりと分けることができるので、メリハリのある暮らしが可能です♡どんな家具とも相性が良さそうな、ナチュラルな室内デザインも良いですよね✦

玄関入ってすぐのベッドルームは約7.1帖。大きめのベッドを置いてもゆとりのあるサイズ感です。独立性が高く、睡眠の質もアップしそうですね♪大容量のウォークインクローゼットが備わっているので、荷物をたっぷりしまえます。

玄関を開けた瞬間から、築後未入居の美しさを体感できます。上品で高級感のある長い廊下は、お部屋への期待度を高めてくれますね♡シューズインクローゼットのおかげで、すっきりとした玄関を保てます。カウンターには季節のお花を飾るのも素敵ですね✿

お料理する方にもオススメできる、充実した機能が備わったキッチン。独立しているため、集中して作業ができちゃいます♪3口コンロにグリル、食洗機付きと、あると嬉しい設備が整った自慢のキッチンです♡

毎日の始まりと終わりを快適に過ごせるサニタリールーム。ミラーキャビネット仕様の洗面化粧台やリネン庫、洗濯機置き場の吊り棚など、収納スペースをしっかり確保しているため、細々とした洗面道具も整理整頓しやすいですね✦

明るいグレーのデザインパネルがお洒落なバスルームをチェック♡お子様との入浴も快適にできる広さがあり、家族とのコミュニケーションも自然と増えますね♪もちろん、追い焚き機能&浴室乾燥機が備わっていますよ✧

なんといってもリビングダイニングから東京タワーが見えるのが最大のオススメポイント♡日中は爽やかに、夜は煌びやかに、都会暮らしであることを実感させてくれる眺望です✦東京タワーが大好きな方にピッタリなお部屋♡
その他の室内・設備写真
▲ このお部屋の雰囲気がお好みの方へ
東京グラウンド編集部の住まいレビュー
国際色豊かで活気がありながらも落ち着いたエリアを併せ持つ、麻布台アドレスの『アトラス麻布台』✦麻布十番駅と六本木駅が利用でき、周辺に買い物・飲食・文化施設が多く暮らしやすさ抜群です♩都会暮らしをしたいけど、ゆったりとした時間も感じたいという方にピッタリだなと思いました。マンションはペット飼育可能で、共用部にペットの足洗い場があったりと、とっても便利♥セキュリティも防犯カメラにオートロックとご家族で安心して過ごせます✦お部屋は専有面積88㎡超えの2LDKで、ゆったりとした広さを確保しています。何よりも魅力に感じたのは、リビングダイニングから東京タワーが見えるので、東京タワー好きにはたまりません♡是非一度直接足を運んでいただき、素敵なシティビューをご覧いただきたいです♪
ライター:ana【26A09】
この物件の毎月の支払いイメージを
試算してみませんか?
頭金や返済年数などを入力するだけで毎月の合計支払額をシミュレーションできます。
38,500
毎月の支払い予想シミュレーション
※試算結果はあくまで目安であり、実際の借り入れを保証するものではありません。
※物件によっては上記以外の別途費用が発生する場合もございます。詳しくはお問い合わせくださいませ。
住戸概要
間取り図
価格改定
こちらの物件の仲介手数料は
個別にご案内いたします。
詳細をご希望の方は
お気軽にご相談ください。
お問い合わせはこちら
月々の支払い目安を見る
※ローンの⽬安は、頭⾦ゼロ、借⼊年数35年、都市銀⾏・変動⾦利0.595%(優遇利⽤を想定。) 審査内容により、融資の⼀部または全部をご利⽤いただけない場合がございます。予めご了承ください。
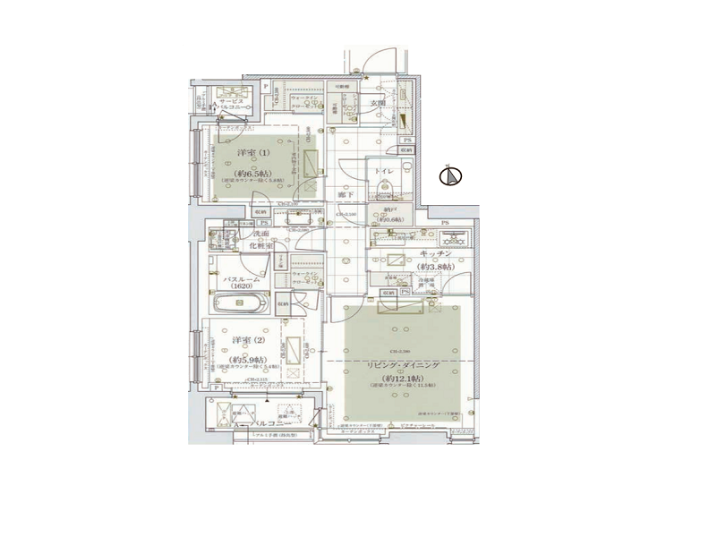
間取り図
201号室
編集部が実際に現地を訪れ、見たもの・感じたことをレポート。
図面だけでは伝わらない"リアルな空気感"をお届けします。
更新日:2026/05/25
更新日:2026/05/25
収納スペース豊富な快適空間

こちらのお部屋は1人暮らしからファミリーまで、家族構成の変化に対応しやすく使い勝手の良い2LDKです◎ペット飼育も可能で、長く住んでいただけますよ。2階に位置し南西角住戸で、陽当たり&通風良好なのも嬉しいですね。

リビングダイニングは約12.1帖ありました。木目調のフローリングが温かみを感じさせてくれます♪インテリアの邪魔をしないビルトインエアコンも良いですよね✦ピクチャーレールにはお気に入りの絵や写真を飾ってくださいね♡

リビングダイニングから出入り可能な洋室は、約5.9帖です。バルコニーに面した大きな窓が明るさと開放感を与えてくれますよ☀大容量のウォークインクローゼットが備わっていて、空間を有効活用できるのが助かりますね♪

廊下から出入りする洋室は約6.5帖。独立性も高いので主寝室にピッタリです♥収納スペースはクローゼットとウォークインクローゼットが設置されていて、スーツケースやゴルフバッグなど、かさばる荷物もしっかり保管してくれます✦

廊下とリビングダイニングから出入りできるキッチンは約3.8帖あります✧上下に収納棚が備わっていて、ついつい増えがちなキッチン用品も整理整頓しやすいですね♪お片付けは食洗機にお任せして、家族との時間を増やしちゃいましょう♡

物件探しの際に重要視される方も多いサニタリールームをチェック♪洗面化粧台・洗濯機置き場・バスルームがまとまっています。リネン庫もあるので、お風呂上りにパッとバスタオルが取り出せて便利ですね♡

大きなバスタブには手すりが備わっていて、転倒防止になる優しい設計のバスルーム。美しさにこだわるだけでなく、寒い冬も快適に半身浴を楽しめる追い焚き機能やミスト、浴室乾燥機まで、機能面も全く問題ありません♪

スタイリッシュな印象を与えてくれるタンクレスのトイレはお手入れもしやすいです◎独立した手洗い場が備わっているので、贅沢な造りですね。トイレットペーパーなどは吊り棚に収納して、足元はスッキリとした空間に♫
その他の室内・設備写真
▲ このお部屋の雰囲気がお好みの方へ
東京グラウンド編集部の住まいレビュー
『アトラス麻布台』の最寄りである麻布十番駅は、駅前に麻布十番商店街があり、老舗から話題の飲食店・カフェ・雑貨店まで多彩なお店が並んでいます♡休日に街歩きするだけでもとっても楽しめるエリアです♪スーパーやドラッグストア、コンビニも揃っているので、日々の買い物に困りません✦六本木も徒歩圏内で、休日も近場でアクティブに過ごせそうです✦ご紹介のマンションは品格と歴史ある丘に位置したマンションで、上品な暮らしが叶います。お部屋は2階ですが南西角住戸なのでしっかりと陽光が室内に届き、明るい空間でした☀収納スペースが豊富で、整理整頓しやすいのも嬉しいポイント♪ペットと一緒に暮らせるので、将来的に新しい家族を迎える選択肢を持つことができるお部屋ですよ♪まずはお気軽にお問い合わせくださいね。 ライター:ana【26A09】
この物件の毎月の支払いイメージを
試算してみませんか?
頭金や返済年数などを入力するだけで毎月の合計支払額をシミュレーションできます。
27,600
毎月の支払い予想シミュレーション
※試算結果はあくまで目安であり、実際の借り入れを保証するものではありません。
※物件によっては上記以外の別途費用が発生する場合もございます。詳しくはお問い合わせくださいませ。
住戸概要
[大好き東京タワー] アトラス麻布台
麻布十番駅
徒歩6分

麻布台の高台に佇む、こちらの建物が『アトラス麻布台』です◎2025年9月築と新しいので、美しく高級感が漂います✧鉄筋コンクリート造17階建て、総戸数34戸のマンションです♩

敷地内には駐輪場と駐車場を完備しています。屋内にあるため、大切な愛車を雨風の影響からしっかり守れますね♪休日もドライブにサイクリングにアクティブに動けそう◎

共用部にはオートロックと防犯カメラが備わっていて、セキュリティ面も安心です♫エントランスにはソファが置いてあり、タクシーの待ち時間も快適に過ごせますね✦

エレベーターが備わっていて、移動も楽々♪ホテルライクな共用部は美しい空間です。お部屋はプライベート性が高く、採光&通風に優れた1フロア2住戸、全戸角部屋という贅沢♡
その他の共用部・設備写真
物件概要
設備・特徴
エレベーター オートロック 宅配BOX 防犯カメラ 新耐震基準適合
都心にありながら下町情緒も感じられることが魅力の麻布十番。駅周辺には様々な店舗や施設が充実していて、スーパーマーケットやコンビニエンスストア、ドラッグストアが多数あり、日用品を揃えられます♪オシャレで高級なお店だけでなく、昔ながらの庶民的なお店も揃っていて、グルメな方にも楽しんでいただけるエリアです。是非お気に入りのお店を発掘してみてくださいね★夏には有名な「麻布十番納涼祭り」が開催されて多くの出店が並び、家族で気軽に楽しめるのも嬉しいですね♡新しい街並みと古い街並みが合わさり、緑豊かな自然も共存している麻布十番での暮らしはいかがでしょうか◎
アクセス
東京メトロ南北線/都営大江戸線 『麻布十番』駅 徒歩6分
東京メトロ日比谷線/都営大江戸線 『六本木』駅 徒歩11分
買い物
学区
※掲載している学区情報は、記事制作時点での参考情報です。
区域によっては学校の指定が異なる場合もありますので、詳細は必ずご確認ください。
その他