間取り図
価格改定
なら
仲介手数料 30% OFF
マンションは、“どこから買うか”で
支払う費用が変わります
仕組みを詳しく見る
月々の支払い目安を見る
※ローンの⽬安は、頭⾦ゼロ、借⼊年数35年、都市銀⾏・変動⾦利0.595%(優遇利⽤を想定。) 審査内容により、融資の⼀部または全部をご利⽤いただけない場合がございます。予めご了承ください。
間取り図
406号室
編集部が実際に現地を訪れ、見たもの・感じたことをレポート。
図面だけでは伝わらない"リアルな空気感"をお届けします。
更新日:2026/04/22
更新日:2026/04/22
新築の清潔感が息づく、ピュアな住まい

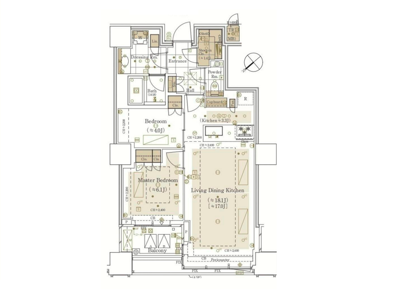
4階部分に位置する専有面積66.41㎡の2LDK住戸。カップルやご夫婦での暮らしにちょうどいいサイズ感で、ゆとりと機能性のバランスが取れた間取りです。居室同士の距離感も程よく、プライベートと共有空間をしっかり分けながら快適に暮らせそう。さらに新築未入居のため、室内はピカピカの綺麗な状態が保たれており、誰も使っていないフレッシュな空間で新生活をスタートできるのも嬉しいポイント。

メインのリビングダイニングは約18.1帖のゆとりある広さ。大きめのソファやダイニングセットを配置しても余裕があり、リビングとダイニングを自然にゾーニングできるのが魅力です。床暖房を完備しているため、寒い時期には足元からじんわりと室内を温め、空気を乾燥させにくい快適な住環境を実現。加えてビルトインエアコンを採用しており、天井にすっきりと収まったデザインが空間の美しさを損ないません。

リビングに隣接する洋室は約6.1帖の広さ。折り上げ天井が採用されており、実際の帖数以上に開放感のある空間が広がります。バルコニーへのアクセスも可能で、光や風を感じながら心地よく過ごすことができ、主寝室にぴったりです。クローゼットも備わっているため収納面も安心。

窓の外には、緑を前景にその奥へと続くビル群の景色が広がっています。都市の利便性と自然の安らぎを同時に感じられる、心地よい眺望が印象的でした。視線の先に木々の緑があることで、都心にいながらも落ち着いた雰囲気を味わえるのもポイントの1つ。窓際に立って外を眺めるだけで、日々の疲れがやわらぎそうな穏やかな景色です。

玄関には約1.4帖の大容量シューズインクロークを設けています。ゆとりある広さが確保されており、沢山の靴をすっきり収納できるのはもちろん、ベビーカーやゴルフバッグなどの大型アイテムも置いておけそう。傘置き場も備わっているため、雨の日の濡れた傘の収納場所にも困りません。玄関周りに物が溢れにくく、いつでも整った印象を保てるのは嬉しいですよね。

高級感のある大理石調デザインが印象的なバスルーム。落ち着いたトーンでまとめられ、上質なリラックスタイムを演出してくれます。追い焚き機能付きのバスタブを採用しているため、いつでも快適な温度で入浴可能。ワンタッチ操作で湯温を保てるので、半身浴やゆっくりとした長風呂にもぴったり♪

バスルームと統一感のあるデザインで仕上げられたトイレスペース。温水洗浄付き便座を備えており、季節を問わず快適に使用できます。さらに手洗いカウンター付きのため、来客時にも配慮された仕様に。さらに手洗い台下の収納や吊戸棚も備わっており、トイレットペーパーや掃除用品などをまとめて収納できます。

こちらは約4.0帖の洋室。窓はありませんが天井が高く設計されているため、圧迫感は感じにくい落ち着いた空間となっています。静かな環境を活かしてワークスペースや書斎、趣味部屋としての利用が最適。コンパクトながら収納スペースも確保されており、資料や衣類などをすっきり整理できます。集中したい時間を過ごす場所として重宝しそうな一室です。
その他の室内・設備写真
▲ このお部屋の雰囲気がお好みの方へ
東京グラウンド編集部の住まいレビュー
麻布十番駅から徒歩7分。落ち着いた街並みを歩いた先に佇む『三田ガーデンヒルズ ウエストヒル』は、都心にありながら穏やかな空気感を纏った印象的なレジデンスです。周囲には緑も点在し、喧騒から少し距離を置いたような静けさが感じられました。今回ご紹介するのは4階部分のお部屋。エントランスから共用部を進むにつれて上質な空間造りへのこだわりが伝わり、室内への期待も自然と高まります♪
玄関を開けると、まず目を引いたのは約1.4帖の大容量シューズインクローク。ゆとりある広さで、靴をたっぷり収納できるのはもちろん、ベビーカーやゴルフバッグなどの大きな荷物もすっきり収まりそうです。傘置き場も設けられており、玄関周りを整った状態に保てるのは嬉しいポイント。新築未入居ということもあり、室内はどこを見てもピカピカで、清潔感のある空間が広がっていました。専有面積66.41㎡の2LDKは、カップルやご夫婦での暮らしにちょうどいいサイズ感。無駄のない間取りで落ち着いた生活がイメージできます。
廊下を進むと、約18.1帖のリビングダイニングが広がります。実際に入ってみると数字以上の開放感があり、大きなソファやダイニングテーブルを配置しても余裕のある広さ。自然とリビングとダイニングをゾーニングできるため、暮らしのシーンにメリハリが生まれそうです。床暖房を完備しているので、寒い時期には足元からじんわりと暖まり、快適な時間を過ごせそう。さらにビルトインエアコンが採用されており、空間全体がすっきりと洗練された印象にまとまっていました。
バルコニーに出てみると、窓の外には緑の奥にビル群が立ち並ぶ景色が広がっていました。都心にいながらも自然の豊かさを感じられるのは嬉しいポイント。視界に入る緑が心を落ち着かせてくれ、窓辺に立つたびにホッと一息つけそうな眺望です。都心の利便性を享受しながら、緑の景色と落ち着いた住環境を味わえる住まい。ゆとりあるリビングと機能性の高い設備、そして新築未入居の清潔な室内が揃った、快適な暮らしを実現できそうなお部屋でした。 ライター:hana【26D13】
この物件の毎月の支払いイメージを
試算してみませんか?
頭金や返済年数などを入力するだけで毎月の合計支払額をシミュレーションできます。
34,000
毎月の支払い予想シミュレーション
※試算結果はあくまで目安であり、実際の借り入れを保証するものではありません。
※物件によっては上記以外の別途費用が発生する場合もございます。詳しくはお問い合わせくださいませ。
住戸概要
間取り図
価格改定
なら
仲介手数料 無料!
追加費用も一切なし
マンションは、“どこから買うか”で
支払う費用が変わります
仕組みを詳しく見る
月々の支払い目安を見る
※ローンの⽬安は、頭⾦ゼロ、借⼊年数35年、都市銀⾏・変動⾦利0.595%(優遇利⽤を想定。) 審査内容により、融資の⼀部または全部をご利⽤いただけない場合がございます。予めご了承ください。
間取り図
6F
この物件の毎月の支払いイメージを
試算してみませんか?
頭金や返済年数などを入力するだけで毎月の合計支払額をシミュレーションできます。
67,800
毎月の支払い予想シミュレーション
※試算結果はあくまで目安であり、実際の借り入れを保証するものではありません。
※物件によっては上記以外の別途費用が発生する場合もございます。詳しくはお問い合わせくださいませ。
住戸概要
[暮らしに品を添える穏やかな時間] 三田ガーデンヒルズ ウエストヒル
麻布十番駅
徒歩7分

麻布十番駅から徒歩7分の落ち着いた住宅街に佇む『三田ガーデンヒルズ ウエストヒル』。2025年に建てられたばかりの新築マンションで、外観や共用部には新しさならではの美しさが感じられます。さらに新耐震基準を満たしているため、将来にわたって安心して暮らせる点も魅力のひとつ。都心の利便性を享受しながら、安心感と快適性を兼ね備えた住環境が整っています。

『三田ガーデンヒルズ』は全7棟から構成される総戸数1002戸のビッグコミュニティ。敷地内にはゆとりある配置計画がなされており、街のようなスケール感を感じられます。アプローチ部分には館内マップが設置されているため、初めて訪れた方でも迷うことなく住戸へ向かえそう。大規模ならではの充実した共用部と整った導線が、快適な暮らしをサポートしてくれます。

エントランスにはオートロックが設置されており、防犯面にも配慮された安心のセキュリティ体制。居住者以外の出入りをしっかり管理できるため、日々の暮らしに安心感があります。さらに館内にはコンシェルジュサービスをはじめ、カフェラウンジなどホテルライクな共用施設が揃っているのも嬉しいポイントです。

お部屋までは天候の影響を受けにくい内廊下仕様。外気にさらされることなく移動できるため、雨の日や暑い日でも快適に行き来できます。廊下にはカーペットが敷かれており、歩行時の足音が響きにくい点も魅力。落ち着いた雰囲気が広がり、ホテルのような上質感も感じられました。
その他の共用部・設備写真
物件概要
設備・特徴
エレベーター オートロック 宅配BOX トランクルーム 防犯カメラ フィットネスルームゲストルームガーデンラウンジバーラウンジワークラウンジガーデンエリア 新耐震基準適合
赤羽橋駅は、都営大江戸線が利用できるアクセス性の高さが魅力の駅。六本木や新宿、汐留方面へ乗り換え少なく移動でき、都内主要エリアへの通勤・通学もスムーズです。さらに徒歩圏内には芝公園や麻布十番エリアが広がり、複数駅・複数路線を使い分けられる利便性の高さもポイント。駅周辺はオフィスビルと落ち着いた住宅街がバランスよく混在しており、都心でありながら穏やかな住環境が整っています。近隣にはスーパーや飲食店も点在し、日常の買い物や外食にも困りません。東京タワーや芝公園の緑を身近に感じられるロケーションも魅力で、利便性と落ち着きを兼ね備えた暮らしやすいエリアです。
アクセス
東京メトロ南北線/都営大江戸線 『麻布十番』駅 徒歩7分
都営大江戸線 『赤羽橋』駅 徒歩7分
都営三田線 『芝公園』駅 徒歩11分
買い物
学区
※掲載している学区情報は、記事制作時点での参考情報です。
区域によっては学校の指定が異なる場合もありますので、詳細は必ずご確認ください。
その他
三田ガーデンヒルズ パークマンションもご紹介中
三田ガーデンヒルズ イーストヒルもご紹介中
三田ガーデンヒルズ ノースヒルもご紹介中
三田ガーデンヒルズ サウスヒルもご紹介中