仲介物件の多くは『レインズ』という不動産会社だけが利用できる情報サイトに掲載されています。レインズはどの不動産会社も同じ情報にアクセスできる仕組みのため、会社によって紹介できる物件が限定されるということはほとんどありません。
当サイトに掲載されていない物件であっても、気になる物件があれば、仲介手数料無料または割引(規定上限額の30〜50%)でご案内可能です。そのため、物件の条件にかかわらず、常にお客さまのご負担を最小限に抑えたご提案を行っています。
【アデニウム学芸大学 3F】はご成約となりましたが、弊社では売買物件も賃貸物件も一律仲介手数料30%Offで ご紹介しております。
また、売買も賃貸も仲介手数料無料物件も多数ご用意しております。
是非お問い合せを頂けましたら、皆様にぴったりなマンションをお探しさせて頂きます♪
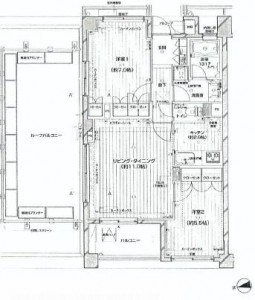
アデニウム学芸大学 3階

■住所 世田谷区野沢3-30-2
■築年数 平成18年9月
■構造 鉄筋コンクリート造 地下1階地上7階建 3階
■土地 所有権
■総戸数 55戸
■専有 59.04㎡
■バルコニー 5.79㎡
■ルーフバルコニー 28.76㎡
■間取り 2LDK
□管理費 10,740円
□修繕積立金 6,490円
□ルーフバルコニー使用料 900円
※ペット飼育 可(細則有)
ACCESS
・東急東横線 『学芸大学』駅 徒歩15分
・田園都市線 『駒沢大学』駅 徒歩15分

環七通り沿いに堂々と佇む「アデニウム学芸大学」。
「学芸大学」駅からは少し距離がありますが、駐車場もあり、車でのアクセスもスムーズなので、自家用車をお持ちの方はかなり良い立地です。
車を持っていなくても、目の前にバス停があるのでご安心をヾ(*ゝ∀・*)ノ☆゜
マンション周辺にはスーパー、コンビニ、病院など生活に欠かせない設備が揃っているのでご家族で住むにも安心です♡

マンションの外観は見る角度によって、違うので、色々な方向から見ても面白いかも(*゚▽゚)ノ
環七の音はどうなんだ(`・д・´) と気になる方もいらっしゃると思いますが、窓が二重サッシになっているため、窓を閉めれば気になりませんよ♪
エントランスはオートロックになっていて、コンシェルジュサービスも充実しています。
エントランスには広めの待合室もあるので、急な来客の対応も万全です。

重厚感あるエントランス、この門構えからもグレードの高さを感じます。


ガラス張りのエントランスホールはとても上品な雰囲気。ゆったりとしたソファーセットが置かれたゆとりある空間になっています。また管理体制も良好でコンシェルジュサービスを受けることができます。


エントランスホールを抜けお部屋へ向かいます。吹き抜けが開放的な廊下はちょっとしたアートのような空間になっています。こういったところからも管理の良さを感じます。
最新の募集状況やご質問に関しましてはいつでもお気軽にお問い合わせください☆☆