仲介物件の多くは『レインズ』という不動産会社だけが利用できる情報サイトに掲載されています。レインズはどの不動産会社も同じ情報にアクセスできる仕組みのため、会社によって紹介できる物件が限定されるということはほとんどありません。
当サイトに掲載されていない物件であっても、気になる物件があれば、仲介手数料無料または割引(規定上限額の30〜50%)でご案内可能です。そのため、物件の条件にかかわらず、常にお客さまのご負担を最小限に抑えたご提案を行っています。
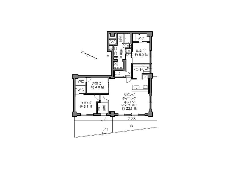
こちらのお部屋は販売終了いたしました
過去に販売したお部屋の一部をご紹介。
住まい探しやリノベーションのヒントにご覧ください。
東京グラウンド編集部の住まいレビュー
都立大学駅から徒歩7分に位置し、平町エリアの閑静な住宅街に佇む『豊栄平町マンション』。周辺にはスーパーやコンビニが揃い、都心へのアクセスと暮らしやすさのバランスが取れた環境が魅力です。建物は鉄筋コンクリート造の7階建てで、総戸数47戸の管理体制良好な中古マンション。過去には大規模修繕工事が実施されており、オートロックやエレベーターなどセキュリティ面、共用設備も整っています。ご紹介のお部屋は、専有面積92.34㎡のゆとりある3LDK+WIC。おおよそ22.5帖のリビングダイニングキッチンは2面採光で日当たり良好、対面式キッチンやパントリーなど設備充実の仕様が嬉しいポイントです。各洋室には収納が設けられ、約6.1帖、約5.0帖、約4.8帖と家族それぞれが落ち着ける広さを確保。庭とテラスの開放感もあり、窓を開ければ心地よい風が流れる暮らしが思い浮かびます。ファミリーやDINKsの方にぴったりの住まいです。ぜひ一度ご内覧くださいね♪ ライター:rei【25L08】
こちらのお部屋は販売終了いたしました
過去に販売したお部屋の一部をご紹介。
住まい探しやリノベーションのヒントにご覧ください。
東京グラウンド編集部の住まいレビュー
洗練された雰囲気の街並みが幅広い世代に人気の都立大学駅エリア。過去には大規模修繕工事が施された管理体制の良い『豊栄平町マンション』をご紹介します。2025年9月中旬に新規内装フルリノベーションが完了したばかりのこだわりの住空間♪白を基調とした明るい雰囲気の居室内は、専有面積46.17㎡の1LDK、約10.0帖の広々としたリビングダイニングキッチンがご家族や友人を招いてもゆったり過ごせます。南西向きの窓からは自然光がたっぷり入り、日当たり良好。お部屋全体が柔らかな光に包まれて、毎日の暮らしが明るく彩られそう。収納スペースもきちんと確保されているので、荷物の多い方でも安心してお住まいいただけます。洋室はおおよそ5.7帖で、寝室としてはもちろんワークスペースや趣味の部屋にも使いやすいサイズ感。生活に合わせた柔軟な使い方ができます。シングルやDINKSの方にぴったりの住まい。新築マンションのような設備充実さを持ちながら、中古マンションならではの落ち着いた雰囲気を楽しめます。ぜひ一度、実際にご覧になってみてください。 ライター:rei【25J07】
[心が温まる瞬間] 豊栄平町マンション
都立大学駅
徒歩5分

環七通りにどっしりと佇む『豊栄平町マンション』。1970年築、地上7階建て、総戸数48戸のマンションです。数々の有名建築物を手掛ける「株式会社大林組」が施工を担当しました。

エントランスにはオートロックが導入されています。日勤の管理人さんもいらっしゃるので、安心してお過ごしいただけるのではないでしょうか。

エレベーターホール&共用廊下は全て屋内仕様。雨風に晒されることはありません。隅々までゴミ1つなく、ピカピカに保たれています。

駐車場は屋内に、駐輪場やバイク置き場は屋外に設けられていました。空き状況や費用については、ご入居時にご確認ください。
その他の共用部・設備写真
物件概要
設備・特徴
エレベーター オートロック 防犯カメラ 長期修繕計画有
東急東横線都立大学駅は落ち着いた雰囲気と生活利便性を兼ね備えたエリアです。駅前にはスーパーや飲食店、日常使いのショップが揃い、暮らしやすさは抜群。少し歩けば緑豊かな公園や教育施設もあり、穏やかな環境が広がります。閑静な住宅街が多く、都心へのアクセスも良好なため、子育てファミリーからDINKs、シングルまで幅広い層に人気の街です。
アクセス
東急東横線 『都立大学』駅 徒歩5分
東急東横線 『学芸大学』駅 徒歩9分
東急目黒線/大井町線 『大岡山』駅 徒歩17分
東急バス 『平町』停 徒歩2分
買い物
学区
※掲載している学区情報は、記事制作時点での参考情報です。
区域によっては学校の指定が異なる場合もありますので、詳細は必ずご確認ください。
その他
こちらの物件は弊社運営の別サイトでもご紹介中♪