間取り図
なら
仲介手数料 無料!
追加費用も一切なし
マンションは、“どこから買うか”で
支払う費用が変わります
仕組みを詳しく見る
月々の支払い目安を見る
※ローンの⽬安は、頭⾦ゼロ、借⼊年数35年、都市銀⾏・変動⾦利0.595%(優遇利⽤を想定。) 審査内容により、融資の⼀部または全部をご利⽤いただけない場合がございます。予めご了承ください。
間取り図
105号室
編集部が実際に現地を訪れ、見たもの・感じたことをレポート。
図面だけでは伝わらない"リアルな空気感"をお届けします。
更新日:2025/12/16
更新日:2025/12/16
こだわりが息づくデザイナーズ空間

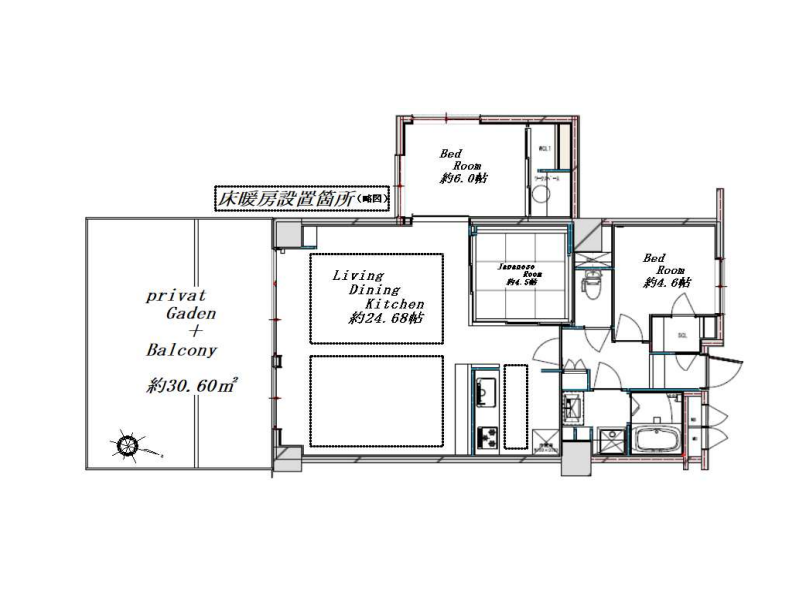
住まいの主役、約24.68帖の広々としたリビングダイニングキッチンは家族が集う中心にふさわしいスケール感。窓の向こうに専用庭とバルコニーが広がり、1階住戸でありながら視線が抜ける開放感を味わえます。

内装は2025年8月にフルリノベーション済み。細部まで丁寧に整えられ、デザイナーズマンションらしい洗練された雰囲気が漂います。床暖房を備えたリビングは足元から優しく暖まり、寒い季節も快適に過ごせるのが魅力。

キッチンはご家族とのコミュニケーションが取りやすいカウンタータイプを採用。調理中もリビングの様子を感じられ、日常の会話が自然と生まれます。作業スペースや設備が整っており、調理から配膳、片付けまでスムーズに♪

和室は約4.5帖のコンパクトなサイズ感ながら、畳ならではの温もりをしっかり感じられる空間。フローリングとは異なる落ち着きがあり、素足で過ごす時間も自然と増えそうです。リビングに近い配置のため、客間やお子さまの遊び場、ちょっと横になりたいときにも重宝しますよ✿

主寝室として使いやすい約6.0帖の洋室。ベッドを配置しても動線に余裕があり、落ち着いた時間を過ごせます。収納力のあるウォークインクローゼットに加え作業にぴったりなスペースが確保されており、暮らしの質を高めてくれそう。

シューズインクロークから繋がる約4.6帖の洋室は、使い勝手の良い万能空間です。ややコンパクトな造りですが、子ども部屋や書斎としても取り入れやすく、ライフスタイルに合わせた使い分けが可能。

ゆとりを感じるバスルームには、換気乾燥機や追焚き機能を搭載。天候を気にせず洗濯物を乾かせる点も魅力です。浴室TVを眺めながら、1日の疲れを癒す贅沢なバスタイムを堪能してみては・・・♡

ワイドに広がる約30.60㎡の専用庭とバルコニーは、住空間にもう1つの居場所を与えてくれます。リビングからそのまま出られるため、生活動線もスムーズ。ガーデニングや外気浴など、日常に自然を取り入れた暮らしが叶いそう☀
その他の室内・設備写真
東京グラウンド編集部の住まいレビュー
穏やかな街並みが広がる都立大学エリアに位置する『GSハイム都立大』。最寄りの都立大学駅から徒歩6分と程よい距離感で、駅前の利便性と住宅街ならではの静けさをどちらも享受できるロケーションです。周囲は低層の建物が中心で落ち着いた雰囲気の中、日々の暮らしをゆったりと楽しめそう。鉄筋コンクリート造・総戸数32戸のマンションで、長期修繕計画も整えられており、築年数を感じさせない管理状態の良さがうかがえました✧今回ご紹介するのは、2025年8月に内装フルリノベーションが完了した3LDKのお部屋。約24.68帖の広々としたLDKには床暖房を備え、寒い季節も快適に過ごせる仕様です。キッチンや水回り設備はすべて新規交換され、使い勝手と清潔感を両立!リビングの先には専用庭とバルコニーが広がり、1階住戸ならではの開放感を味わえますよ♪各居室に収納も確保され、実用性の高い住まいに仕上がっています。ぜひ気になる方は現地で、その心地よさを体感してみてください。 ライター:hana【25L16】
この物件の毎月の支払いイメージを
試算してみませんか?
頭金や返済年数などを入力するだけで毎月の合計支払額をシミュレーションできます。
7,980
毎月の支払い予想シミュレーション
※試算結果はあくまで目安であり、実際の借り入れを保証するものではありません。
※物件によっては上記以外の別途費用が発生する場合もございます。詳しくはお問い合わせくださいませ。
住戸概要
[調えられた空間で優雅に住まう] GSハイム都立大
都立大学駅
徒歩6分

都立大学駅から徒歩6分、中根小通りに面して佇む『GSハイム都立大』は、ホワイトタイルでまとめられた上品な外観が印象的な6階建てマンションです。総戸数は32戸と落ち着いた規模感で、1階部分には歯科医院などの店舗が入居。長期修繕計画もきちんと策定されており、これから先も安心して住み続けられる管理体制が整っています。

アプローチを進むと、数段の階段を下った先にエントランス入口が設けられていました。半地下ならではの落ち着いた雰囲気があり、外からの視線が気になりにくい点も魅力のひとつ。階段にはしっかりと手すりが設置されているため、小さなお子様からご年配の方まで安心して利用できそう。

エントランスにはオートロックが備えられており、居住者以外の立ち入りをしっかりと制限。防犯面への配慮が感じられ、安心して日々の暮らしを送ることができます。さらに管理人室も併設されており、共用部の管理やちょっとした相談ができる環境が整っているのも心強いポイント。

共用部には宅配ボックスも設置されており、留守中でも荷物を受け取れる便利な仕様。仕事で帰宅が遅くなりがちな方や、ネットショッピングをよく利用される方にとっては欠かせない設備ですね。再配達の手間が省けることで、日常のちょっとしたストレスも軽減◎
その他の共用部・設備写真
物件概要
設備・特徴
エレベーター オートロック 宅配BOX 防犯カメラ 長期修繕計画有
テナント
歯科クリニック
都立大学駅は東急東横線が利用でき、渋谷や自由が丘へダイレクトにアクセスできる利便性の高い駅です。通勤・通学はもちろん休日のお出かけもスムーズで、都心と程よい距離感を保ちながら暮らせるのが魅力。駅周辺にはスーパーやドラッグストア、コンビニが点在し、日々の買い物に不自由することはありません。個人経営のベーカリーやカフェ、飲食店も多く落ち着いた雰囲気の中で食事を楽しめるのも嬉しいポイントです。少し歩けば住宅街が広がり、緑を感じられる公園も点在。利便性と穏やかな住環境を兼ね備えた、バランスの良い街並みが広がっています✿
アクセス
東急東横線 『都立大学』駅 徒歩6分
東急大井町線 『緑が丘』駅 徒歩12分
東急東横線/大井町線 『自由が丘』駅 徒歩18分
買い物
学区
※掲載している学区情報は、記事制作時点での参考情報です。
区域によっては学校の指定が異なる場合もありますので、詳細は必ずご確認ください。
その他
こちらの物件は弊社運営の別サイトでもご紹介中♪