仲介物件の多くは『レインズ』という不動産会社だけが利用できる情報サイトに掲載されています。レインズはどの不動産会社も同じ情報にアクセスできる仕組みのため、会社によって紹介できる物件が限定されるということはほとんどありません。
当サイトに掲載されていない物件であっても、気になる物件があれば、仲介手数料無料または割引(規定上限額の30〜50%)でご案内可能です。そのため、物件の条件にかかわらず、常にお客さまのご負担を最小限に抑えたご提案を行っています。
こちらのお部屋は販売終了いたしました
過去に販売したお部屋の一部をご紹介。
住まい探しやリノベーションのヒントにご覧ください。
東京グラウンド編集部の住まいレビュー
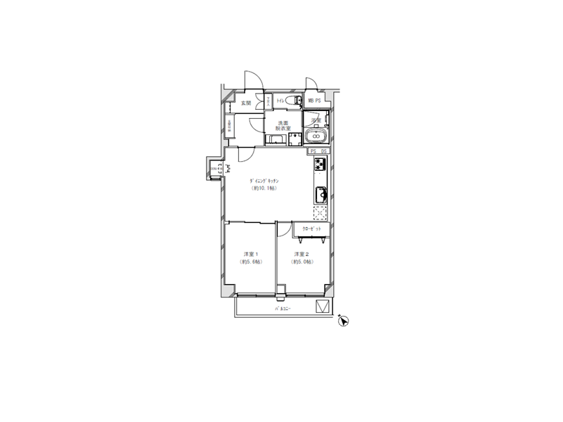
駒沢大学駅から徒歩14分の『フジタ野沢マンション』をご紹介しました。駅からは距離がありますが、バス停が近いため実はアクセス良好◎複数駅からダイレクトに向かうことができます。スーパーや100円ショップが近隣にあるのも嬉しいポイントですね。今回は1階・2LDKのお部屋にお邪魔しました。家具を選ばないシンプルな内装ですが、所々に見えるお洒落さにキュンとします♡キッチン、トイレ、バスルームの設備や各居室の収納など、暮らしやすさもしっかりと考えられていますよ。植栽に覆われているため外から室内は見えず、のびのびとお過ごしいただけます✿ ライター:加藤【22K27】
[都心部を一望] フジタ野沢マンション
駒沢大学駅
徒歩14分

馴染み深いタイル貼りの『フジタ野沢マンション』。大通り沿いから見るとコンパクトな印象ですが、裏側に回ってみると存在感がありますね。1980年に建てられた5階建てのマンションで、総戸数は36戸となっています。

駐車場、駐輪場、バイク置場は建物の裏手に完備しています。駐輪場は1番奥にありますが、広々としているため出し入れは楽々◎自転車があれば最寄り駅以外の複数駅にアクセスがしやすく、グッと生活が便利になりますよ。

正面のエントランス前には街路樹が並び、季節ごとに違った表情を見せてくれます✿エントランス内にも程よく外の光が入り、明るい雰囲気ですね。

奥にはエレベーターが1基と、鮮やかなオレンジ色に輝く階段と廊下が✦どちらも屋外にあり、風通しは抜群です。
その他の共用部・設備写真
物件概要
設備・特徴
エレベーター 防犯カメラ 長期修繕計画有
最寄り駅である駒澤大学駅からマンションまでは徒歩14分ほど。少々距離がありますが、学芸大学駅も利用可能です◎バスや自転車を併用することでより便利に暮らせそうですね。駅名の通り大学が近隣にあるため、お手頃な飲食店が多いことが特徴です。マンションが建つ環七通りに出るとバス停があり、バスを利用すれば渋谷駅や目黒駅などから直接アクセスできる便利さがあります。マンションの近くには大きなスーパーと100円ショップがあるので、買い出しの度に遠出をする必要はありません✿廃棄予定の食品のみを販売するお店「iiMaquet」はフードロス問題解消に貢献しながら、食品をお得に購入できますよ♪
アクセス
東急田園都市線 『駒沢大学』駅 徒歩14分
東急東横線 『学芸大学』駅 徒歩17分
買い物
学区
※掲載している学区情報は、記事制作時点での参考情報です。
区域によっては学校の指定が異なる場合もありますので、詳細は必ずご確認ください。
その他
こちらの物件は弊社運営の別サイトでもご紹介中♪