間取り図
価格改定
なら
仲介手数料 無料!
追加費用も一切なし
マンションは、“どこから買うか”で
支払う費用が変わります
仕組みを詳しく見る
月々の支払い目安を見る
※ローンの⽬安は、頭⾦ゼロ、借⼊年数35年、都市銀⾏・変動⾦利0.595%(優遇利⽤を想定。) 審査内容により、融資の⼀部または全部をご利⽤いただけない場合がございます。予めご了承ください。
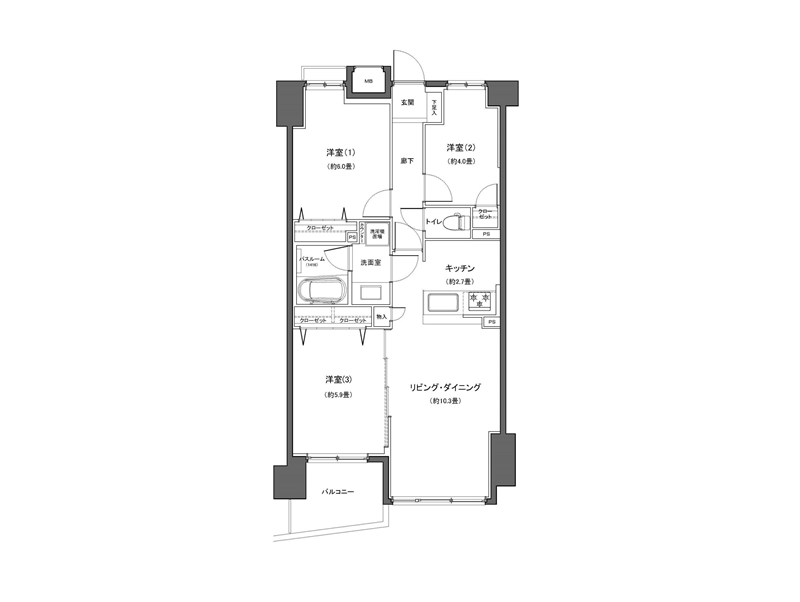
間取り図
210号室
編集部が実際に現地を訪れ、見たもの・感じたことをレポート。
図面だけでは伝わらない"リアルな空気感"をお届けします。
更新日:2026/03/24
更新日:2026/03/24
ペットも家族ものんびり

ファミリーでの住まいにぴったりな3LDKのお部屋は、木目を基調とした温かさを大事にしながら、所々にあしらわれたブラックの建具や間接照明のしつらえに洗練を感じる住空間。家族そろっての落ち着いた団欒のひとときに寄り添います。家具付きマンションにつき、お引っ越しでペースを乱されることなく、すぐに快適な生活を始められますよ✧

東向きの窓に向かって広がりをみせ、開放感に溢れたリビング&ダイニング。アクセントクロスとホワイトクロスの切り替えによって柔らかにゾーニングされた窓際のスペースは、リラックスタイムにうってつけの雰囲気がありました。ソファを置けば、日差しや外を感じながらのゆったりとした時間を過ごせそうです。

スペースが確保され、動線周りに使いやすさを感じるキッチン。忙しい朝や夕食後の時間など、複数人がキッチン回りを使用しても窮屈さを感じない造りが魅力的です。広々としたシンクは水撥ねしにくく、調理もスムーズに。食洗機と3口コンロまで兼ね備えた、機能的なキッチンです。

リビングダイニングキッチンに隣接した洋室は寝室としてもお使いいただけますが、引き戸を開け放ってメインルームの一部のような使い方をすることも可能です。クローゼットが付いており、お洋服はもちろんのことシーズンアイテムを収納しておくのにもぴったり。備え付けのバルコニーからは心地の良い風が吹き込み、清潔な住まいを保ってくれそうです。

パウダールームにはリビング内から出入りすることができ、家族の動きや様子を感じながらの生活が叶います。バスルームに加えて洗面化粧台・洗濯機置き場が集合することで、家事動線が集約された配置が使いやすそうです。収納はミラー裏や洗面台下に加えて洗濯機置き場の付近にカウンターが設けられ、洗濯洗剤やフレグランスなどを置いておくのにぴったりです。

新規交換を経てピカピカに生まれ変わったバスルームは、ワイドな鏡と柔らかい色遣いによって開放感のある空間に仕上がっています。鏡下の棚は家族それぞれのシャンプーやボディソープを置いておけるだけの広さがあり、便利。追い焚き機能&浴室乾燥を備え、忙しい毎日に寄り添う機能が満載です。

廊下から出入りできるこちらの洋室はおよそ6帖あり、ベッド以外にもテーブルやチェアを置いて余暇活動を楽しむことのできる余白がありました。全ての居室に窓とクローゼットが付いており、メインルームでの家族の時間と個人の時間を両立できる、メリハリある暮らしが叶います✧

ホワイトで統一された玄関ポーチ。ゴールドの美しいドアノブのしつらえや、足元の柔らかな照明に品と洗練を感じます。高さのあるミラーによって、お出かけ前に全身の身だしなみを確認出来て便利ですね。裏はシューズボックスになっており、家族の靴を段ごとに分けて収納しておけます。
その他の室内・設備写真
▲ このお部屋の雰囲気がお好みの方へ
東京グラウンド編集部の住まいレビュー
東急池上線洗足池駅から徒歩7分の『ナイスアーバン洗足池公園』のご紹介でした。東急大井町線大岡山駅・東急池上線石川台駅も利用可能で、交通アクセスは良好です◎
洗足池駅の目の前には水辺と緑のコントラストが目に鮮やかな洗足池が広がり、美しく優雅な池のほとりを生活圏にできるのが大変魅力的です。
ピクニックやお散歩にもぴったりで、1年を通して生活に潤いを与えてくれる癒しの存在になってくれそうですね。
コンビニやスーパーなどの主要な店舗は駅前に集まっているので、お買い物は帰宅やお出かけのついでに済ませるのがおすすめです。
2階に位置する専有面積62.42㎡・3LDKのお部屋は、東向きにつき明るさが確保されています。メインルームや各洋室にはグレーやベージュの落ち着いたカラーのアクセントクロスが採用され、マンネリ化しがちなお部屋内にさりげない上品さを添えているのが素敵だなと感じました。長く住んでも飽きの来ない魅力あふれる空間です。
ペット可能物件につき、将来小さな家族を迎えたいご一家は、夢が広がりますね✧
実際にお部屋を見て使いやすそうだなと感じたのは、全ての居室に窓と収納が付いている点。ひとつひとつを1個のお部屋として完全に独立させることができ、家族の生活スタイルや持ち物をそれぞれ快適に管理できそうでした。
大切な時間を共有しながら、個人の生活リズムも大事にしていきたいファミリーにおすすめのお部屋です。是非1度現地へ足を運んで、穏やかな雰囲気を感じてみて下さいね✧ ライター:yurika【26C07】
この物件の毎月の支払いイメージを
試算してみませんか?
頭金や返済年数などを入力するだけで毎月の合計支払額をシミュレーションできます。
9,490
毎月の支払い予想シミュレーション
※試算結果はあくまで目安であり、実際の借り入れを保証するものではありません。
※物件によっては上記以外の別途費用が発生する場合もございます。詳しくはお問い合わせくださいませ。
住戸概要
[お散歩は緑豊かな池のほとりで] ナイスアーバン洗足池公園
洗足池駅
徒歩7分

穏やかな住宅街の中、緑に囲まれて堂々と佇むのは『ナイスアーバン洗足池公園』。鉄筋コンクリート造5階建て・総戸数50戸の中規模レジデンスです。1996年築で、新耐震基準もクリア。

建物右部から出入りできる屋外駐車場がありました。1台ごとにエリアが区切られ、出し入れのしやすい造り。駐車場内には自転車を停めるスペースも設けられていました。こちらは屋根付き・屋根ありに分かれていたのようなので、入居時に相談してみては✧

オートロックマンションにつき、外部の人間が出入りしにくい造りでセキュリティは強固です◎オートロックの手前には宅配ボックスを設置しており、忙しくてなかなか宅配が受け取れない方にありがたいですね。撮影の日は、より住みやすいマンションに向けて工事が行われていました✧

エレベーターを下りると、外廊下に沿って各戸の扉が並んでいます。手摺付きの外階段もあり、有事の際はもちろんのこと混み合う朝の時間帯にもお使いいただけますよ◎
その他の共用部・設備写真
物件概要
設備・特徴
エレベーター オートロック 宅配BOX 新耐震基準適合
洗足池駅は東急池上線の駅で、落ち着いた住宅街の中にあり、住民の生活を支える存在。駅名の由来にもなっている洗足池は改札を出てすぐの場所にあり、四季折々の自然を楽しめる憩いのスポットになっています。春は桜の名所として知られ、ボードや散策を楽しむ人の姿も。
五反田駅までは電車で約10分と都心へのアクセスも良好で、駅周辺にはスーパーや飲食店、病院など生活に必要な施設がそろい、日常生活を送りやすい環境が整っています。肩ひじ張らず落ち着いて暮らせるエリアでありながら、通勤・通学にも便利な立地が魅力です。
アクセス
東急池上線 『洗足池』駅 徒歩7分
東急池上線 『石川台』駅 徒歩7分
東急目黒線/大井町線 『大岡山』駅 徒歩9分
買い物
学区
※掲載している学区情報は、記事制作時点での参考情報です。
区域によっては学校の指定が異なる場合もありますので、詳細は必ずご確認ください。
その他
こちらの物件は弊社運営の別サイトでもご紹介中♪