間取り図
価格改定
なら
仲介手数料 無料!
追加費用も一切なし
マンションは、“どこから買うか”で
支払う費用が変わります
仕組みを詳しく見る
月々の支払い目安を見る
※ローンの⽬安は、頭⾦ゼロ、借⼊年数35年、都市銀⾏・変動⾦利0.595%(優遇利⽤を想定。) 審査内容により、融資の⼀部または全部をご利⽤いただけない場合がございます。予めご了承ください。
間取り図
508号室
編集部が実際に現地を訪れ、見たもの・感じたことをレポート。
図面だけでは伝わらない"リアルな空気感"をお届けします。
更新日:2025/10/24
更新日:2025/10/24
家具完備で手間いらず、快適ライフへ

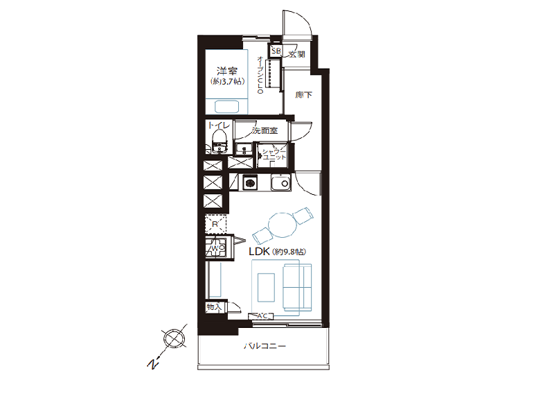
リノベーションが施された、インテリアのセンスを引き立てる専有面積31.81㎡・1LDKのお部屋。ベージュの木目天井や間接照明のアクセントウォールなど、細部にまでこだわったデザインが魅力です♪

メインルームは約9.8帖。北西向きの優しい陽光が入る爽やかな空間です。こちらの一室は厳選家具付きなので、忙しい方やインテリアに自信がない方も安心◎入居直後から洗練された暮らしをスタートできますよ。

コンパクトなIHコンロ付きキッチンは、外食中心の方や軽い自炊に便利◎サッと拭くだけで手入れができ、毎日の生活に無理なくフィットする設計です。

メインルームに設置済みのエアコンにより、入居直後から快適な室温で過ごすことが可能。夏の猛暑や冬の冷え込みにも対応でき、引っ越し直後から暮らしを整えられるので、初期費用や準備の手間も軽減されます。

メインルームにある木目調の壁はマグネット対応で、写真や小物を直接飾ることが可能。思い出の写真や雑貨を自由にディスプレイでき、自分だけの空間作りを楽しめます。遊び心を加えながら暮らしに個性をプラスできるのが魅力です♡

新規リノベーションにより交換されたシャワールームは、床や壁もピカピカで清潔感たっぷり。湯船に浸かる時間が少ない方や、掃除の手間を減らしたい方におすすめの設備です✧

約3.7帖と小さめの洋室ですが、棚板付きの可動式クローゼット完備で収納には困りません。リビングにベッドを置き寝室と兼用する場合、こちらの洋室を丸ごと収納スペースとして活用すれば、生活空間にゆとりを持たせることができますよ。

バルコニーの外には静かな住宅街の景色が広がります。視界が開けており、爽やかな風を感じながら洗濯物を干すことも可能。風通しが良く、落ち着いた暮らしをサポートしてくれるアウトドア空間です。
その他の室内・設備写真
東京グラウンド編集部の住まいレビュー
洗練されたデザインと効率的な間取りが魅力の1LDK、専有面積31.81㎡の単身向け住戸です。リノベーションにより、シンプルながらもスタイリッシュな空間に生まれ変わっています✧シャワールームと1口コンロのキッチンでコンパクトにまとめ、居室の使いやすさを最大限に確保!さらにリビングダイニングには家具が備え付けられており、入居後すぐにおしゃれな生活をスタートできます。また、壁の一部は木目調でマグネット対応になっており、フックや小物棚、写真やカードなどを自由にディスプレイ可能。自分らしい暮らしの彩りをプラスできる、遊び心あるお部屋です✿ぜひ、気になる方は現地にてご確認くださいね。 ライター:hana【25J24】
この物件の毎月の支払いイメージを
試算してみませんか?
頭金や返済年数などを入力するだけで毎月の合計支払額をシミュレーションできます。
4,199
毎月の支払い予想シミュレーション
※試算結果はあくまで目安であり、実際の借り入れを保証するものではありません。
※物件によっては上記以外の別途費用が発生する場合もございます。詳しくはお問い合わせくださいませ。
住戸概要
こちらのお部屋は販売終了いたしました
過去に販売したお部屋の一部をご紹介。
住まい探しやリノベーションのヒントにご覧ください。




こちらのお部屋は販売終了いたしました
過去に販売したお部屋の一部をご紹介。
住まい探しやリノベーションのヒントにご覧ください。




[外でも中でも森林浴] 白金武蔵野コーポラス
白金台駅
徒歩6分

閑静な住宅街に佇む『白金武蔵野コーポラス』。1970年築ではありますが、過去には大規模修繕工事が行われ綺麗な状態が保たれています✧

駐車場・自転車置き場・バイク置き場は敷地内にありました。それぞれ屋根が付いているので、雨風に晒される心配がありません。

アプローチに奥行きがあるので、外からの視線を防ぎプライバシーを保護。大きな庇が付いているため、雨の日の雨具の準備もゆとりを持てますよ。

2024年に改修されたエントランスはオートロック式の防犯性の高い設計に✧管理人室も隣接しており、日々の暮らしの安心感をサポートしてくれます。
その他の共用部・設備写真
物件概要
設備・特徴
エレベーター オートロック 防犯カメラ 長期修繕計画有
白金台駅は都営三田線と東京メトロ南北線が利用できる交通利便性の高い駅です。五反田・目黒・六本木方面へのアクセスがスムーズで、都心での通勤やお出かけにも便利。駅周辺には落ち着いた住宅街が広がり、高級感のある街並みと緑豊かな公園も点在しているため穏やかで静かな住環境が魅力です✿お買い物面ではスーパーやカフェ、レストランが点在し日々の買い物や外食にも困りません。また、治安の良さも特徴で夜間でも安心して歩ける街としてファミリー層や単身者からも人気のエリアです。
アクセス
東京メトロ南北線/都営三田線 『白金台』駅 徒歩6分
東京メトロ南北線/都営三田線 『白金高輪』駅 徒歩9分
買い物
学区
※掲載している学区情報は、記事制作時点での参考情報です。
区域によっては学校の指定が異なる場合もありますので、詳細は必ずご確認ください。
その他
こちらの物件は弊社運営の別サイトでもご紹介中♪