仲介物件の多くは『レインズ』という不動産会社だけが利用できる情報サイトに掲載されています。レインズはどの不動産会社も同じ情報にアクセスできる仕組みのため、会社によって紹介できる物件が限定されるということはほとんどありません。
当サイトに掲載されていない物件であっても、気になる物件があれば、仲介手数料無料または割引(規定上限額の30〜50%)でご案内可能です。そのため、物件の条件にかかわらず、常にお客さまのご負担を最小限に抑えたご提案を行っています。
こちらのお部屋は販売終了いたしました
過去に販売したお部屋の一部をご紹介。
住まい探しやリノベーションのヒントにご覧ください。
東京グラウンド編集部の住まいレビュー
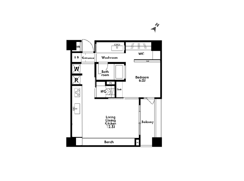
白金高輪駅から徒歩5分という抜群の立地に佇む『パークホームズ白金高輪アーバンレジデンス』。高級住宅街としての落ち着きと都市型の利便性が心地よく共存するエリアに位置し、日常の暮らしに上質さと快適さをもたらしてくれます。今回ご紹介するお部屋は2階部分。2025年10月にリノベーションが完了したばかりの1LDK+WICで、木目調×ホワイトの明るく洗練された内装が印象的✿約12.3帖のメインルームには床暖房が敷設され、ペットとの暮らしにも対応した希少性の高い住戸となっています。壁付タイプの大きなキッチンはナチュラルテイストのデザインで空間に溶け込み、収納・作業スペースともにたっぷり確保!洋室にはDENスペースが設けられ、仕事や読書に集中できる“小さな書斎”として活躍しそう。さらにウォークインクローゼットも完備しており収納力も抜群。玄関には洗濯機置き場を配置し、帰宅後の動線にも優れていると思いました。上質な街並みと快適性にこだわった室内空間が調和した、魅力あふれる一室です。ぜひ気になる方は現地にてご確認くださいね。 ライター:hana【25L02】
こちらのお部屋は販売終了いたしました
過去に販売したお部屋の一部をご紹介。
住まい探しやリノベーションのヒントにご覧ください。
東京グラウンド編集部の住まいレビュー
今回は、港区の中心“三田エリア”に佇む『パークホームズ白金高輪アーバンレジデンス』の一室をご紹介しました。三井不動産の“パークホームズシリーズ”のひとつで、資産価値も高いブランドマンション。閑静な街に溶け込みつつもブランドマンションらしい品格を纏います。水や光が優雅な空間を演出するエントランスは癒しの雰囲気に包まれ、お部屋への期待も高まります。そんなお部屋は2LDKの間取りで、なんといってもウッドデッキが敷かれたルーフバルコニーが魅力的。室内も北向きであることを忘れてしまうほど明るい雰囲気で、方角はあまり気にしなくてもいいお部屋かもしれません♩是非、実際に現地へ足を運んでみてくださいね。 ライター:井出【22D04】
[アーバンライフをとことん満喫] パークホームズ白金高輪アーバンレジデンス
白金高輪駅
徒歩5分

白金高輪駅から徒歩5分という便利な立地に佇む『パークホームズ白金高輪アーバンレジデンス』。2005年築、8階建てのマンションで、閑静な住宅街に溶け込みながらもこの地に相応しい上品な風格をまとっています。落ち着いた外観は街並みに調和しつつ、存在感も感じさせるため、住む人に安心感と誇らしさを与えてくれます。

敷地内にはビルトインタイプの駐車場を完備しており、車体を雨や黄砂からしっかりと守ることができます。1台ずつ区切られているため、隣の車との接触の心配もなく、安心して駐車できる点も大きな魅力。車を日常的に使う方にとって、利便性と安全性の両方を兼ね備えた設備ですね。

建物には2箇所のエントランスが設けられており、オートロック・管理人室・防犯カメラが整備された安心のセキュリティ体制。エントランスロビーは水と光が織りなす落ち着いた空間で、優雅な音を奏でる滝が訪れる人の心を自然と癒してくれるデザインに✧

日常の荷物の受け取りにも便利な宅配ボックスを完備。外出が多い日でも荷物を受け取りやすく、生活の利便性を高めてくれる設備として、快適な都市生活をサポートしてくれます。
その他の共用部・設備写真
物件概要
設備・特徴
エレベーター オートロック 宅配BOX 防犯カメラ 24時間ゴミ出し可 新耐震基準適合 長期修繕計画有
白金高輪駅は東京メトロ南北線と都営三田線の2路線が利用でき、都心の主要エリアへのアクセスに非常に便利な駅。六本木・麻布十番・白金台・目黒・大手町方面へもスムーズに移動でき、通勤・通学だけでなく休日のお出かけにも快適です。駅周辺は高級住宅街として知られ、落ち着いた街並みと静かな住環境が魅力。洗練されたカフェやレストラン、スーパーや商店も徒歩圏内に点在しており日常の買い物やグルメも気軽に楽しめます。さらに、街灯や人通りが整った安全な環境で、治安面でも安心して暮らせるエリアです。利便性と上質な生活環境を兼ね備えた暮らしやすい立地と言えるでしょう。
アクセス
東京メトロ南北線/都営三田線 『白金高輪』駅 徒歩5分
東京メトロ南北線/都営大江戸線 『麻布十番』駅 徒歩13分
都営三田線/浅草線 『三田』駅 徒歩14分
買い物
学区
※掲載している学区情報は、記事制作時点での参考情報です。
区域によっては学校の指定が異なる場合もありますので、詳細は必ずご確認ください。
その他