購入・売却・リノベ・無料相談はこちら 公式LINEで気軽に相談

ライフェール新宿御苑ノースサイド

ライフェール新宿御苑ノースサイド

URLとタイトルをコピーしました!

【仲介手数料最大無料】新宿区大京町22-3/新宿御苑前駅徒歩5分/ペット飼育可/新耐震基準適合/総戸数36戸/定休日なしで内見予約・無料相談受付中です!
この物件の売却相談はこちら

仲介手数料最大無料でご紹介

東京グラウンド掲載物件以外も
仲介手数料が最大無料!

仲介物件の多くは『レインズ』という不動産会社だけが利用できる情報サイトに掲載されています。レインズはどの不動産会社も同じ情報にアクセスできる仕組みのため、会社によって紹介できる物件が限定されるということはほとんどありません。
仲介手数料最大無料でご紹介 当サイトに掲載されていない物件であっても、気になる物件があれば、仲介手数料無料または割引(規定上限額の30〜50%)でご案内可能です。そのため、物件の条件にかかわらず、常にお客さまのご負担を最小限に抑えたご提案を行っています。

●ご購入以外の当社サービスについても、すべて無料相談を承っております

ご希望のサービスにチェックを入れて、お問い合わせフォームへお進みください。

無料相談する

成約済み
販売終了物件
成約済み
販売終了物件

こちらのお部屋は販売終了いたしました

編集部の
部屋レポ

過去に販売したお部屋の一部をご紹介。
住まい探しやリノベーションのヒントにご覧ください。

▲ このお部屋の雰囲気がお好みの方へ

東京グラウンド編集部の住まいレビュー

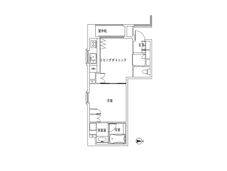
新宿御苑前駅は、大きなビルが立ち並ぶオフィス街。新宿駅まで歩くこともできるので、駅周辺の百貨店で気軽にショッピングをお楽しみいただけますよ♥『ライフェール新宿御苑ノースサイド』は大通りに面していますが、セキュリティ面がしっかりしているので安心して暮らすことができますね。お部屋のオススメポイントは、開放感のある洋室です。保温効果に優れた2重サッシが用いられたお部屋なら、寒い冬でも快適ですね。美しい緑を眺められるお部屋は、毎日の暮らしを特別なものに変えてくれるはず。ぜひ一度、ご覧ください♬ ライター:田中【22G09】

こちらのお部屋は販売終了いたしました

編集部の
部屋レポ

過去に販売したお部屋の一部をご紹介。
住まい探しやリノベーションのヒントにご覧ください。

▲ このお部屋の雰囲気がお好みの方へ

東京グラウンド編集部の住まいレビュー

『新宿御苑前』駅は、新宿駅まで歩いていくことができるアクセス良好な街。百貨店も近いので、お買い物がお好きな方にもピッタリな場所と言えますね♡『ライフェール新宿御苑ノースサイド』は、高級感ある共用部が印象的でした。歩道に面していますが、セキュリティー面がしっかりしているので安心してお過ごしいただけますよ。お部屋のおすすめポイントは、広々としたサービスルーム。アイディア次第でいろいろな使い方ができそうな空間です。ぜひ一度、ご覧ください♬ ライター:田中【22C04】

建物と街のようす

[都会のオアシス] ライフェール新宿御苑ノースサイド

新宿区大京町22-3MAP

新宿御苑前駅

徒歩5分

外観・共用部

その他の共用部・設備写真

物件概要

物件名
ライフェール新宿御苑ノースサイド
所在地
新宿区大京町22-3
築年月
平成15年/2003年2月
構造
鉄骨鉄筋コンクリート造
階数
地下1階付 13階建
土地
所有権
総戸数
36戸
分譲会社
株式会社ライフアップ建設
管理会社
株式会社レーベンコミュニティ
駐車場
駐輪場
有 (200円/月)
バイク置き場
有 (2,000円/月)
ペット飼育
可 (飼育細則有)
事務所使用
不可

設備・特徴

エレベーター オートロック 宅配BOX 防犯カメラ 新耐震基準適合 建物状況調査済

アクセス・周辺環境

アクセス

東京メトロ丸ノ内線 『新宿御苑前』駅 徒歩5分

東京メトロ丸ノ内線 『四谷三丁目』駅 徒歩5分

JR総武線 『千駄ヶ谷』駅 徒歩10分

都営大江戸線 『国立競技場』駅 徒歩10分

JR総武線 『信濃町』駅 徒歩14分

学区

四谷第六小学校
徒歩8分(650m)
四谷中学校
徒歩24分(1.7km)

※掲載している学区情報は、記事制作時点での参考情報です。
区域によっては学校の指定が異なる場合もありますので、詳細は必ずご確認ください。

こちらの物件は弊社運営の別サイトでもご紹介中♪

こんなお部屋に住みたい方へ リフォーム:リノベーション

不動産にまつわるご相談・ご質問・資料請求など
まずはお気軽にお問い合わせくださいませ。