購入・売却・リノベ・無料相談はこちら 公式LINEで気軽に相談

秀和第2田町レジデンス

秀和第2田町レジデンス

URLとタイトルをコピーしました!

【仲介手数料無料】港区芝浦2-4-11/芝浦ふ頭駅徒歩9分/秀和第2田町レジデンス(港区芝浦2-4-11/田町駅)を写真・動画多数掲載で詳しくご紹介中。仲介手数料無料or割引で購入・賃貸ならハイアーグラウンドへ!年中無休・ご内見いつでも可能♪賃貸管理もお任せを。お気軽にお問い合わせ下さい!/定休日なしで内見予約・無料相談受付中です!
この物件の売却相談はこちら
仲介手数料無料
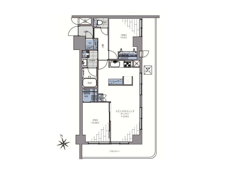
305号室
8,199万円
成約済み
販売終了物件
成約済み
販売終了物件

間取り図

URLとタイトルをコピーしました!
8,199万円
54.57㎡
2LDK
なら

仲介手数料 無料!

通常
277万円
当社
0

追加費用も一切なし

マンションは、“どこから買うか”で
支払う費用が変わります

仕組みを詳しく見る

月々の支払い目安を見る

ローンの目安
216,000円/月
管理費
14,600円/月
修繕積立金
16,500円/月
合計
247,100円/月

※ローンの⽬安は、頭⾦ゼロ、借⼊年数35年、都市銀⾏・変動⾦利0.595%(優遇利⽤を想定。) 審査内容により、融資の⼀部または全部をご利⽤いただけない場合がございます。予めご了承ください。

間取り図

305号室
54.57㎡ 2LDK

この物件の毎月の支払いイメージを
試算してみませんか?

頭金や返済年数などを入力するだけで毎月の合計支払額をシミュレーションできます。

8,199

万円

最初にまとめて支払うお金です。
頭金なしでもローンは組めますので
ご安心ください。

万円

ローンを何年かけて返済するかを
入力します。よくある期間は
35年、30年、20年など。

変動金利で0.3〜0.6%(低金利だが将来的に変動)、固定金利で1.0〜1.5%(返済額がずっと一定で安心)が一般的な目安です。

毎月の支払い予想シミュレーション

ローン支払い目安
216,000円/月
管理費
14,600円/月
修繕積立金
16,500円/月
合計
247,100円/月

※試算結果はあくまで目安であり、実際の借り入れを保証するものではありません。
※物件によっては上記以外の別途費用が発生する場合もございます。詳しくはお問い合わせくださいませ。

住戸概要

価格
8,199万円
所在階
3階
間取り
2LDK
専有面積
54.57㎡
バルコニー
19.26㎡
管理費
14,600円/月
修繕積立金
16,500円/月
リノベーションR1住宅適合

こちらのお部屋は販売終了いたしました

編集部の
部屋レポ

過去に販売したお部屋の一部をご紹介。
住まい探しやリノベーションのヒントにご覧ください。

▲ このお部屋の雰囲気がお好みの方へ

東京グラウンド編集部の住まいレビュー

『秀和第2田町レジデンス』は、芝浦ふ頭駅や田町駅、三田駅の3駅5路線が利用可能です。お出かけ先に合わせて駅を選べるのは何とも便利ですよね♡駅からマンションまでは少し距離がありますが、しっかり舗装された綺麗な道が続くので歩きやすく快適でした♫『秀和第2田町レジデンス』はお隣のシリーズマンション『秀和田町レジデンス』とそっくりな見た目をしていますが、タッチキー式のオートロックや玄関ドアが備わっていて、よりセキュリティ性がしっかりしているのが特徴です。お部屋で一番印象に残ったのは、カフェのようなデザインが素敵なリビングダイニングキッチンです。家具にこだわれば、もっとオシャレな空間に。ご友人とのホームパーティーを開催するのも良さそうです✦寝室がコンパクトなので、背の高い方や体格が良い方は狭いと感じるかもしれません。是非サイズ感やデザインなど直接ご覧ください。 ライター:田中【23I01】

こちらのお部屋は販売終了いたしました

編集部の
部屋レポ

過去に販売したお部屋の一部をご紹介。
住まい探しやリノベーションのヒントにご覧ください。

▲ このお部屋の雰囲気がお好みの方へ

建物と街のようす

[ビッグコミュニティーで安心生活] 秀和第2田町レジデンス

港区芝浦2-4-11MAP

田町駅

徒歩9分

外観・共用部

その他の共用部・設備写真

物件概要

物件名
秀和第2田町レジデンス
所在地
港区芝浦2-4-11
築年月
昭和57年/1982年6月
構造
鉄骨鉄筋コンクリート・鉄筋コンクリート造
階数
11階建
土地
所有権
総戸数
129戸
分譲会社
秀和株式会社
管理会社
レジデンス・ビルディングマネジメント株式会社
駐車場
有 (30,000円/月)
駐輪場
有 (大人用:300円/月 、幼児用:200円/月 )
バイク置き場
有 (125cc以下:1,000円/月 、125cc超:1,500円/月 )
ペット飼育
その他 (小鳥・鑑賞用小魚のみ可 ※細則有)
事務所使用
不可

設備・特徴

エレベーター オートロック 宅配BOX 防犯カメラ

アクセス・周辺環境

アクセス

JR山手線/京浜東北線 『田町』駅 徒歩9分

ゆりかもめ 『芝浦ふ頭』駅 徒歩11分

都営三田線/浅草線 『三田』駅 徒歩12分

こちらの物件は弊社運営の別サイトでもご紹介中♪

こんなお部屋に住みたい方へ リフォーム:リノベーション

不動産にまつわるご相談・ご質問・資料請求など
まずはお気軽にお問い合わせくださいませ。