間取り図
なら
仲介手数料 無料!
追加費用も一切なし
マンションは、“どこから買うか”で
支払う費用が変わります
仕組みを詳しく見る
月々の支払い目安を見る
※ローンの⽬安は、頭⾦ゼロ、借⼊年数35年、都市銀⾏・変動⾦利0.595%(優遇利⽤を想定。) 審査内容により、融資の⼀部または全部をご利⽤いただけない場合がございます。予めご了承ください。
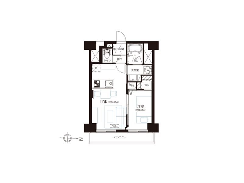
間取り図
508号室
編集部が実際に現地を訪れ、見たもの・感じたことをレポート。
図面だけでは伝わらない"リアルな空気感"をお届けします。
更新日:2026/04/22
更新日:2026/04/22
暮らしやすさで選ぶ

ご紹介するのは『五反田ダイヤモンドマンション』の5階にあるお部屋。専有面積35.00㎡のコンパクトな1LDKです。2026年4月にフルリノベーション工事が完了し、温かみのあるお部屋に生まれ変わりました。

メインルームは約9.5帖の縦長空間。リビング・ダイニング・キッチンが縦1列に並びます。家具付きなのでこのまま生活可能!コーブ照明とダウンライトが適度な明るさをキープし、窓からの採光とともにバランスよく室内を照らします♩

メインルームの窓は東向き。室内には朝日が射しみ、出勤前には朝食が食べたくなることでしょう。お昼から午後にかけては安定した明るさをキープしてくれるので、休日はのんびりとした午後を過ごすことができますよ。

キッチンはリビングダイニングに相対した位置にあり、お料理の最中でもリビングの団らんに参加可能です。キッチン背面のスペースが広く取られているため、家族やご友人と一緒にお料理することもできます◎

メインルームの横には約4.0帖の洋室があります。こちらも窓が東向きなので、朝は心地よい陽光が気持ちの良い目覚めを促してくれるでしょう。木目調の優しい色に包まれた、心落ち着く洋室です♩

こちらの洋室は収納が非常に充実!左には小物などの雑貨を多機能に収納できる棚、右にはお洋服だけでなく掃除機などの大型荷物まで収納可能なウォークインクローゼットがありました。

パウダールームには、収納が豊富な3面鏡洗面化粧台がありました。何かと散らかりがちなパウダールームですが、タオルや化粧品類などをしっかりと収納可能です。洗面化粧台は照明が明るく、身だしなみを整えるのには最適✦

バスルームは木目調のクロスがリラックス効果抜群です。目に優しい色味で、日ごろの疲れを癒してくれます。汚れが目立ちにくく、清潔感を保ちやすい点もメリットです◎
その他の室内・設備写真
▲ このお部屋の雰囲気がお好みの方へ
東京グラウンド編集部の住まいレビュー
JR山手線・都営浅草線・東急池上線の3路線が乗り入れる五反田駅をはじめとした、6駅が徒歩圏内にある好立地。『五反田ダイヤモンドマンション』の5階にあるお部屋をご紹介しました。地域密着型の小売店が立ち並ぶ「戸越銀座商店」などが生活圏にあり、交通利便性だけでなく住みやすさも保証された住環境が広がります。
お部屋は専有面積35.00㎡の1LDK。メインルームは約9.5帖の広さで、コンパクトながら生活に彩りをもたらす装飾が素敵です。室内はウッド調の柔らかい色味で統一され、コーブ照明とダウンライトによって優しく照らされておりました。家具付き物件につき、このまま暮らしていただけますよ◎バルコニーへと続く窓は、晴れた日の朝に陽光を室内に取り入れてくれる東向き。隣接する洋室も同じく東向きの窓が付いているため、心地よい目覚めを促してくれます。引き戸を開けることで、洋室とメインルームを繋げることもでき、空間をより広々と使うことも可能◎天候や時間帯などによって、部屋の明るさ・奥行きを自由に調節できるお部屋です♩
このお部屋が気になる方は、ぜひ一度足を運んでみてください。 ライター:takumi【26D21】
この物件の毎月の支払いイメージを
試算してみませんか?
頭金や返済年数などを入力するだけで毎月の合計支払額をシミュレーションできます。
4,699
毎月の支払い予想シミュレーション
※試算結果はあくまで目安であり、実際の借り入れを保証するものではありません。
※物件によっては上記以外の別途費用が発生する場合もございます。詳しくはお問い合わせくださいませ。
住戸概要
こちらのお部屋は販売終了いたしました
過去に販売したお部屋の一部をご紹介。
住まい探しやリノベーションのヒントにご覧ください。
東京グラウンド編集部の住まいレビュー
今回ご紹介したのは、4駅4路線利用可能でアクセス良好な『五反田ダイヤモンドマンション』の11階にある1LDK。レンガ色のタイルに包まれたちょっぴりレトロな外観とは打って変わって、室内は新規内装リノベーションが施されまるで新築のようにピカピカに。木目天井やアクセントクロス、マグネットがくっつく木目調パネルが取り入れられたナチュラルモダンな内装は細部にまでこだわりを感じるデザインとなっています。メインルームはおよそ9.3帖ほどのスペースが確保されていました。キッチンはリビングダイニングスペースがゆったりとご利用いただける壁付けのレイアウト。南向きのバルコニーに面した大きな2面の窓があるおかげで開放的で実寸よりも広々と感じられますよ。利便性の高い街で伸び伸びとした生活を送りたい人にオススメのお部屋です。ぜひ1度内見してみてくださいね。 ライター:kayo【25J18】
こちらのお部屋は販売終了いたしました
[住めば都] 五反田ダイヤモンドマンション
戸越駅
徒歩6分

『五反田ダイヤモンドマンション』は1979年築の13階建てSRC造マンション。総戸数187のビッグコミュニティです。大通り沿いに面したオレンジ色の外観が目を惹きます。

こちらがエントランス。防犯カメラが設置されており、防犯性能はバッチリです。左手にはスロープ付きのエントランスもありました。

1階共用部にはランドリーが設置されておりました。コインランドリーまで歩く必要がなく、快適にお洗濯していただけます◎

エレベーターは2基ありました。混雑しがちな朝のご移動も問題なく行えそうです。
その他の共用部・設備写真
物件概要
設備・特徴
エレベーター 防犯カメラ 24時間ゴミ出し可・コインランドリー・自動販売機 耐震補強工事実施済 長期修繕計画有
『五反田ダイヤモンドマンション』が佇む西五反田6丁目は、6駅が徒歩圏内・8路線が利用可能であり、交通利便性に非常に優れた住環境です。加えて、アトレ五反田・五反田JPビルディング・TOCビルなどの商業施設、さらに東京で最も長い商店街として有名な戸越銀座商店街が利用可能。周辺には自然あふれる公園施設や学習水準の高いの公立学校があり、子育てにも適しております。都心への素早いアクセスと、暮らしやすい住環境が魅力的なエリアです。
アクセス
都営浅草線 『戸越』駅 徒歩6分
東急池上線 『戸越銀座』駅 徒歩9分
東急池上線 『大崎広小路』駅 徒歩10分
JR山手線/東急池上線/都営浅草線 『五反田』駅 徒歩13分
東急目黒線 『不動前』駅 徒歩15分
JR山手線/埼京線/湘南新宿ライン/りんかい線 『大崎』駅 徒歩17分
買い物
学区
※掲載している学区情報は、記事制作時点での参考情報です。
区域によっては学校の指定が異なる場合もありますので、詳細は必ずご確認ください。
その他
こちらの物件は弊社運営の別サイトでもご紹介中♪