仲介物件の多くは『レインズ』という不動産会社だけが利用できる情報サイトに掲載されています。レインズはどの不動産会社も同じ情報にアクセスできる仕組みのため、会社によって紹介できる物件が限定されるということはほとんどありません。
当サイトに掲載されていない物件であっても、気になる物件があれば、仲介手数料無料または割引(規定上限額の30〜50%)でご案内可能です。そのため、物件の条件にかかわらず、常にお客さまのご負担を最小限に抑えたご提案を行っています。
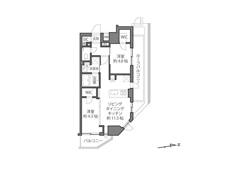
こちらのお部屋は販売終了いたしました
[感度高めの生活圏] デュオステージ下北沢
新代田駅
徒歩2分

『デュオステージ下北沢』は鉄筋コンクリート造・8階建て、総戸数29戸の中規模レジデンス。ブラック×ホワイトのコントラストとデザイン性のある格子窓がアクセントになった、モダンな外観が特徴的です。

植栽が囲む石造りのエントランスへと向かっていきます。緩やかな勾配の階段は上り下りしやすく、小さなお子様でも通行しやすいのがありがたいですね。

敷地内には専用の駐輪スペースを完備。駐輪スタンドがあるおかげで隣と重ならずに停めることができ、強風の際にも倒れにくいという利点が✧頑丈な屋根が付いているので雨もしっかりと防いでくれます。

グレーの壁を間接照明が照らすエントランスは、お仕事で疲れて帰宅してもほっと一息つける落ち着いた空間。外部の人間の侵入を防ぐオートロック、そして時間帯を問わず荷物を受け取れる宅配ボックスを備えた暮らしやすいマンションです。
その他の共用部・設備写真
物件概要
設備・特徴
エレベーター オートロック 宅配BOX 新耐震基準適合
新代田駅は京王井の頭線で渋谷駅へ直通約10分と、都心へのアクセスに優れた立地。下北沢駅へは1駅、徒歩でも行き来できる距離感で、商業施設や個性的な飲食店を気分に合わせて使い分けられる点も魅力です。駅周辺は環七通り沿いにスーパーや飲食店が点在し、日常の買い物にも便利。一方で、通りから一歩入ると落ち着いた住宅街が広がり、穏やかな暮らしが叶います。羽根木公園も身近にあり、緑を感じながら過ごせる、利便性と静けさを兼ね備えた住環境です。
アクセス
京王井の頭線 『新代田』駅 徒歩2分
小田急線 『世田谷代田』駅 徒歩5分
買い物
学区
※掲載している学区情報は、記事制作時点での参考情報です。
区域によっては学校の指定が異なる場合もありますので、詳細は必ずご確認ください。
その他