間取り図
なら
仲介手数料 30% OFF
マンションは、“どこから買うか”で
支払う費用が変わります
仕組みを詳しく見る
月々の支払い目安を見る
※ローンの⽬安は、頭⾦ゼロ、借⼊年数35年、都市銀⾏・変動⾦利0.595%(優遇利⽤を想定。) 審査内容により、融資の⼀部または全部をご利⽤いただけない場合がございます。予めご了承ください。
間取り図
12F
東京グラウンド編集部の住まいレビュー
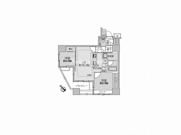
中目黒は感度の高いショップや飲食店が並び、街を歩くだけでこのエリアならではの空気感を感じられます。ほど近くには「目黒川」が流れ、春には桜が満開に咲き誇り街全体が淡いピンク色に染まる光景も日常の一部に。都心の利便性と、季節の移ろいを身近に感じられる環境が共存する立地です。そんな中目黒駅から徒歩4分の所に佇む『クレヴィア中目黒』。マンションはオートロック・防犯カメラ・セコムと整ったセキュリティ体制で安心感がありました。今回ご紹介するのは12階部分、専有面積56.16㎡の2LDKの一室。廊下から各空間へ無駄なくつながる間取りで、メインルームは約10.2帖。整った形状のため家具配置がしやすく、リビングとダイニングのゾーニングも自然に行えます。また、約2.6帖のキッチンは独立性が高く、生活感が居住空間に出にくいのも魅力的です。洋室は約6.5帖と約4.0帖の2部屋構成。主寝室とワークスペース、あるいは2人暮らしの個室としても使い分けしやすくWICを備えた収納計画も実用的◎バルコニーに面した開口部からは12階ならではの抜け感があり、都心にいながらも空を近くに感じられる住まいです。ぜひ、気になる方はお気軽にお問合せくださいね♪ ライター:hana【26A16】
この物件の毎月の支払いイメージを
試算してみませんか?
頭金や返済年数などを入力するだけで毎月の合計支払額をシミュレーションできます。
17,900
毎月の支払い予想シミュレーション
※試算結果はあくまで目安であり、実際の借り入れを保証するものではありません。
※物件によっては上記以外の別途費用が発生する場合もございます。詳しくはお問い合わせくださいませ。
住戸概要
こちらのお部屋は販売終了いたしました
東京グラウンド編集部の住まいレビュー
今回は、中目黒と代官山が徒歩圏内のブランドマンションをご紹介しました。ブランドマンションながらいい意味でギラギラしすぎない、ゆったり落ち着く共用部。新規リノベーションされたお部屋はシングルの方やディンクスの方におススメの1LDKで、充実した機能をそろえています。都内の一等地で、充実した毎日を送りたい方にぜひおすすめしたいお部屋です♡ ライター:井出【22C14】
[変わりゆく都会の姿を見守って] クレヴィア中目黒
中目黒駅
徒歩4分

山手通り沿いに建つ『クレヴィア中目黒』は、ベージュを基調としたスタイリッシュな外観が印象的。2012年築、14階建て・総戸数66戸のマンションで、新耐震基準を満たしており構造面でも安心感があります。都心の利便性を享受しながら、落ち着いた佇まいを保つレジデンスです。

敷地内には機械式駐車場を完備しており、車をお持ちの方にも対応可能です。出庫には多少時間を要するため、通勤やお出かけの際には時間に余裕を持って行動すると安心。あらかじめ流れを把握しておくことで、日常使いもしやすくなりますよ。

エントランスにはオートロックをはじめ、管理人室・防犯カメラ・セコムを完備。セキュリティ体制が整っており、日々の暮らしに安心感をもたらします。天井が高く設計された空間は、視覚的にも開放感があり、住まいの第一印象を上質に演出していました。

仕事や外出で帰宅が遅くなっても、宅配ボックスがあることで荷物の受け取りはスムーズ。再配達の手続きをする必要がなく、ストレスの少ない日常が叶います。小さな設備ですが暮らしの快適さを確実に底上げしてくれる便利な存在ですね。
その他の共用部・設備写真
物件概要
設備・特徴
エレベーター オートロック 宅配BOX 防犯カメラ 新耐震基準適合
中目黒駅は東急東横線と東京メトロ日比谷線が利用でき、渋谷・恵比寿・六本木など主要エリアへスムーズにアクセスできる利便性の高い駅です。駅周辺にはスーパーやドラッグストア、個性豊かな飲食店が揃い、日常の買い物から外食まで困ることはありません。人通りが多く街全体が整っているため治安面でも安心感があります。また、駅近くを流れる「目黒川」では、春になると桜が満開となり街一帯が淡いピンク色に包まれる風景が広がります。都市機能と季節の潤い、そのどちらも享受できるのが中目黒の魅力です✿
アクセス
東急東横線/東京メトロ日比谷線 『中目黒』駅 徒歩4分
東急東横線 『代官山』駅 徒歩10分
買い物
学区
※掲載している学区情報は、記事制作時点での参考情報です。
区域によっては学校の指定が異なる場合もありますので、詳細は必ずご確認ください。
その他