仲介物件の多くは『レインズ』という不動産会社だけが利用できる情報サイトに掲載されています。レインズはどの不動産会社も同じ情報にアクセスできる仕組みのため、会社によって紹介できる物件が限定されるということはほとんどありません。
当サイトに掲載されていない物件であっても、気になる物件があれば、仲介手数料無料または割引(規定上限額の30〜50%)でご案内可能です。そのため、物件の条件にかかわらず、常にお客さまのご負担を最小限に抑えたご提案を行っています。
こちらのお部屋は販売終了いたしました
過去に販売したお部屋の一部をご紹介。
住まい探しやリノベーションのヒントにご覧ください。
東京グラウンド編集部の住まいレビュー
中目黒駅から徒歩9分、恵比寿駅から徒歩12分。5路線2駅利用可能で都心へ軽快にアクセスでき、周辺は落ち着きのある住環境が広がる好立地マンションをご紹介します。
鉄骨鉄筋コンクリート造地上8階建の『まんしょん中目黒』は、昭和築とは思えないほど綺麗な外観が保たれていました。オートロック完備のセキュリティ体制。敷地内駐車場やトランクルームも備え、安心感があります。
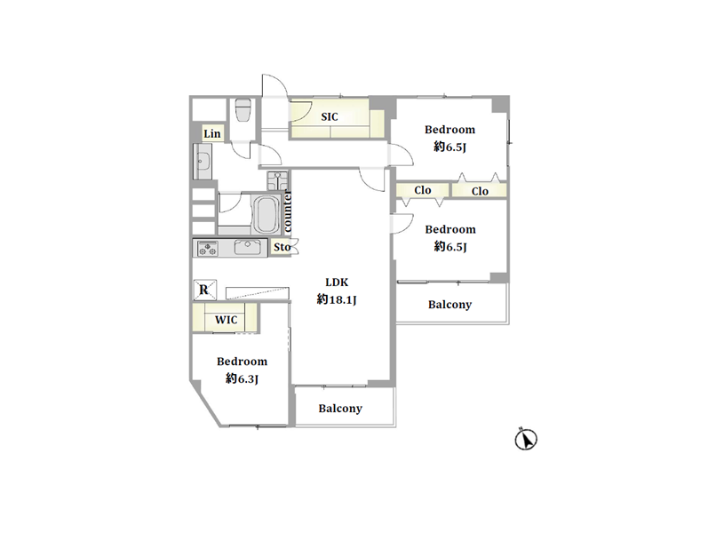
ご紹介のお部屋は、専有面積89.82㎡の3LDK。約18.1帖のリビングダイニングキッチンは、南西向きで日当たり良好、角住戸につき通風も良好です。約6.5帖×2室、約6.3帖の洋室にはウォークインクローゼット、玄関にはシューズインクローゼットを配置し収納も充実。2面バルコニーからの眺望も開放的です。2026年1月に新規内装リノベーションが完了したばかりなので、システムキッチンやバスルームなど水回りの機能も充実しています。
ゆとりある広さはファミリーやDINKsにおすすめ。ぜひ一度ご内覧ください。 ライター:rei【26B13】
[感性くすぐる街] まんしょん中目黒
中目黒駅
徒歩9分

閑静な住宅街に佇む8階建てマンション、こちらが『まんしょん中目黒』です。総戸数は32戸。

広々としたアプローチ。昭和築でレトロな雰囲気ではありますが、隅々まで綺麗に保たれていました。敷地内には駐車場と駐輪場を完備しています。

エントランスには防犯カメラと管理人室があり、セキュリティ対策は万全。ゴミ1つなく、綺麗な空間です。

奥まで進むとエレベーターが1基あります。総戸数32戸なので基本的には待ち時間少なくご利用いただけそう。
その他の共用部・設備写真
物件概要
設備・特徴
エレベーター トランクルーム 防犯カメラ
中目黒駅を最寄りにするマンションの魅力は、利便性と感度の高い街並みを同時に楽しめる点にあります。東急東横線と東京メトロ日比谷線が利用でき、渋谷や恵比寿、六本木方面へも軽快にアクセス可能。駅周辺にはカフェやショップが点在し、目黒川沿いの風景は四季の移ろいを身近に感じさせてくれます。
アクセス
東急東横線/東京メトロ日比谷線 『中目黒』駅 徒歩9分
東急東横線 『代官山』駅 徒歩14分
JR山手線/埼京線/湘南新宿ライン/東京メトロ日比谷線 『恵比寿』駅 徒歩15分
買い物
学区
※掲載している学区情報は、記事制作時点での参考情報です。
区域によっては学校の指定が異なる場合もありますので、詳細は必ずご確認ください。
その他
こちらの物件は弊社運営の別サイトでもご紹介中♪