購入・売却・リノベ・無料相談はこちら 公式LINEで気軽に相談

麻布コーポラス(南麻布1丁目)

麻布コーポラス(南麻布1丁目)

URLとタイトルをコピーしました!

【仲介手数料相談】港区南麻布1-9-8/麻布十番駅徒歩6分/駐車場有/総戸数72戸/昭和44年/1969年8月/定休日なしで内見予約・無料相談受付中です!
この物件の売却相談はこちら
仲介手数料相談
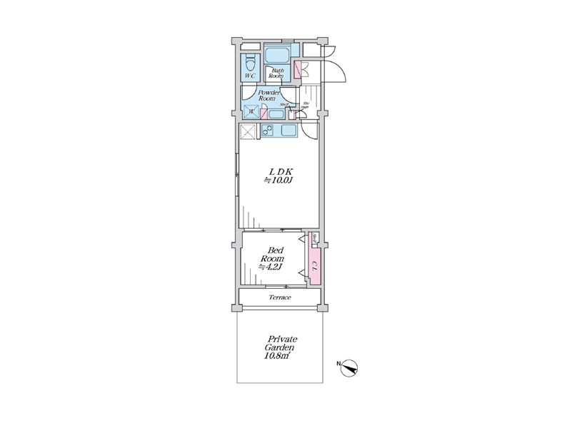
111号室
4,998万円

間取り図

URLとタイトルをコピーしました!
4,998万円
39.96㎡
1LDK

こちらの物件の仲介手数料は
個別にご案内いたします。
詳細をご希望の方は
お気軽にご相談ください。

お問い合わせはこちら

月々の支払い目安を見る

ローンの目安
131,000円/月
管理費
9,100円/月
修繕積立金
11,000円/月
合計
151,100円/月

※ローンの⽬安は、頭⾦ゼロ、借⼊年数35年、都市銀⾏・変動⾦利0.595%(優遇利⽤を想定。) 審査内容により、融資の⼀部または全部をご利⽤いただけない場合がございます。予めご了承ください。

間取り図

111号室
39.96㎡ 1LDK

この物件の毎月の支払いイメージを
試算してみませんか?

頭金や返済年数などを入力するだけで毎月の合計支払額をシミュレーションできます。

4,998

万円

最初にまとめて支払うお金です。
頭金なしでもローンは組めますので
ご安心ください。

万円

ローンを何年かけて返済するかを
入力します。よくある期間は
35年、30年、20年など。

変動金利で0.3〜0.6%(低金利だが将来的に変動)、固定金利で1.0〜1.5%(返済額がずっと一定で安心)が一般的な目安です。

毎月の支払い予想シミュレーション

ローン支払い目安
131,000円/月
管理費
9,100円/月
修繕積立金
11,000円/月
合計
151,100円/月

※試算結果はあくまで目安であり、実際の借り入れを保証するものではありません。
※物件によっては上記以外の別途費用が発生する場合もございます。詳しくはお問い合わせくださいませ。

住戸概要

価格
4,998万円
所在階
1階
間取り
1LDK
専有面積
39.96㎡
管理費
9,100円/月
修繕積立金
11,000円/月
テラス
8.61㎡
専用庭
10.80㎡
リノベーション

建物と街のようす

[上質が日常に] 麻布コーポラス(南麻布1丁目)

港区南麻布1-9-8MAP

麻布十番駅

徒歩6分

外観・共用部

その他の共用部・設備写真

物件概要

物件名
麻布コーポラス(南麻布1丁目)
所在地
港区南麻布1-9-8
築年月
昭和44年/1969年8月
構造
鉄骨造
階数
8階建
土地
所有権
総戸数
72戸
分譲会社
ニチモ株式会社
管理会社
グローシップ株式会社
駐車場
有 (35,000円/月)
駐輪場
有 (使用料不要)
バイク置き場
有 (1,000円/月)
ペット飼育
不可
事務所使用
不可
楽器使用
不可
備考・その他
外部居住者管理費:3,000円/月

設備・特徴

エレベーター 防犯カメラ

アクセス・周辺環境

アクセス

東京メトロ南北線/都営大江戸線 『麻布十番』駅 徒歩6分

東京メトロ南北線/都営三田線 『白金高輪』駅 徒歩11分

都営大江戸線 『赤羽橋』駅 徒歩18分

東京メトロ日比谷線 『広尾』駅 徒歩18分

学区

東町小学校
六本木中学校

※掲載している学区情報は、記事制作時点での参考情報です。
区域によっては学校の指定が異なる場合もありますので、詳細は必ずご確認ください。

こんなお部屋に住みたい方へ リフォーム:リノベーション

不動産にまつわるご相談・ご質問・資料請求など
まずはお気軽にお問い合わせくださいませ。