仲介物件の多くは『レインズ』という不動産会社だけが利用できる情報サイトに掲載されています。レインズはどの不動産会社も同じ情報にアクセスできる仕組みのため、会社によって紹介できる物件が限定されるということはほとんどありません。
当サイトに掲載されていない物件であっても、気になる物件があれば、仲介手数料無料または割引(規定上限額の30〜50%)でご案内可能です。そのため、物件の条件にかかわらず、常にお客さまのご負担を最小限に抑えたご提案を行っています。
こちらのお部屋は販売終了いたしました
過去に販売したお部屋の一部をご紹介。
住まい探しやリノベーションのヒントにご覧ください。
東京グラウンド編集部の住まいレビュー
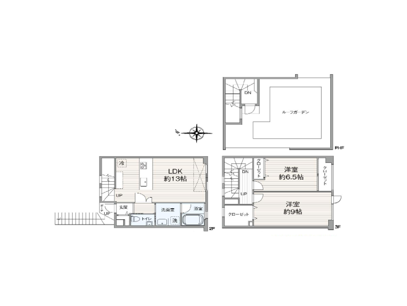
東京メトロ銀座線外苑前駅駅から徒歩9分、表参道や明治神宮前、原宿などの繁華街も生活圏とする神宮前エリア。流行や情報が集まる都心にありながら、一本奥へ入ると空気がすっと落ち着く、そのコントラストはこの街ならではの魅力です。日常の買い物や外出も負担が少なく、都心らしい軽快なフットワークで暮らせます。ご紹介する『BAOS神宮前』は鉄筋コンクリート造のデザイナーズマンション。ご紹介のお部屋はまるで戸建て住宅のようなメゾネットタイプの2LDK。上下階を使ったプランニングにより、生活空間とプライベート空間を程よく分けられる間取りです。約32.8㎡の広さを誇るルーフバルコニーからは空を近くに感じられ、日々の暮らしに余白をもたらします。設備面も整理され、住む人のスタイルに自然と馴染む一邸、是非一度ご内見にいらして下さい♪ ライター:rei【25K29】
[大人の余裕] BAOS神宮前
外苑前駅
徒歩9分

渋谷区神宮前アドレスに佇む、プライベートなデザイナーズマンション『BAOS神宮前』。総戸数は9戸。コンクリート打ち放しを基調とした外観は、都会的でありながら無機質すぎない絶妙なバランス。

道路から一段奥まったアプローチは、コンクリートと植栽のコントラストが美しく、建物へ向かう動線そのものがデザインの一部として計算されています。

シンプルで無駄のないエントランスは、デザイナーズマンションらしい洗練された印象。素材感を活かした設えと落ち着いた色合いが、来訪者を自然に迎え入れます。

住戸へと続く階段は、単なる共用動線ではなく、この建物の個性を象徴する空間。段差や勾配にも配慮され、手すり付きで安心感がありますね。
その他の共用部・設備写真
物件概要
設備・特徴
宅配BOX 新耐震基準適合
外苑前駅を最寄りに暮らす魅力は、都心にいながら緑と洗練を身近に感じられる点にあります。表参道や青山一丁目へスムーズにアクセスでき、通勤や外出の利便性は高水準。それでいて駅周辺は落ち着いた空気が流れ、街並みには大使館やデザイン性の高い建築が点在し、上質な雰囲気を形成しています。少し歩けば神宮外苑の緑が広がり、季節の移ろいを感じながら散策やリフレッシュが可能。都市的な刺激と穏やかな住環境がバランスよく共存するため、日常を丁寧に楽しみたい方にとって魅力的なロケーションです。
アクセス
東京メトロ銀座線 『外苑前』駅 徒歩9分
東京メトロ副都心線/千代田線 『明治神宮前』駅 徒歩10分
東京メトロ銀座線/千代田線/半蔵門線 『表参道』駅 徒歩12分
JR山手線 『原宿』駅 徒歩13分
買い物
学区
※掲載している学区情報は、記事制作時点での参考情報です。
区域によっては学校の指定が異なる場合もありますので、詳細は必ずご確認ください。
その他