間取り図
価格改定
なら
仲介手数料 無料!
追加費用も一切なし
マンションは、“どこから買うか”で
支払う費用が変わります
仕組みを詳しく見る
月々の支払い目安を見る
※ローンの⽬安は、頭⾦ゼロ、借⼊年数35年、都市銀⾏・変動⾦利0.595%(優遇利⽤を想定。) 審査内容により、融資の⼀部または全部をご利⽤いただけない場合がございます。予めご了承ください。
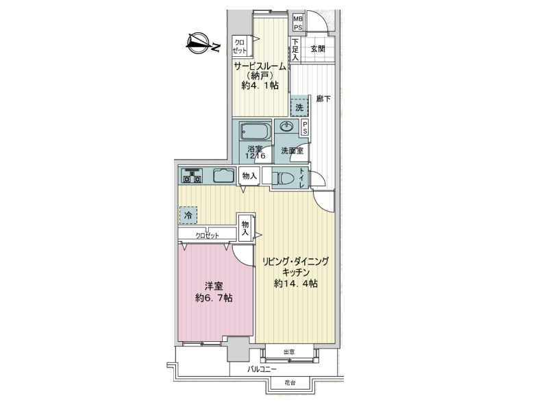
間取り図
2F
編集部が実際に現地を訪れ、見たもの・感じたことをレポート。
図面だけでは伝わらない"リアルな空気感"をお届けします。
更新日:2025/11/13
更新日:2025/11/13
暮らしにフィットするシンプルさ

リノベーションが施された1SLDKのお部屋。明るく落ち着いた色調の内装が特徴で、家具選びが楽しくなるシンプルデザイン。大切なペットと一緒にのびのびと暮らせる住まいです。

リビングダイニングキッチンは約14.4帖。奥行きのある造りで、大きめのソファやダイニングセットもゆったり置けます。家族やゲストとの時間を贅沢に楽しめる空間です♪

メインルームの隣には約6.7帖の洋室が。大容量のクローゼット付きで、季節もののコートや厚手の衣類もすっきり収納可能。大きな掃き出し窓からはたっぷりの陽光が差し込む、快適なプライベート空間です。

サービスルームは約4.1帖とコンパクトな空間。小さな窓があるので換気面は問題ありません◎収納も備わっており、衣装部屋や趣味のスペースとして活用できる使い勝手の良い空間です。

白で統一された独立型システムキッチンは清潔感抜群。3口コンロ・グリル・食洗機が揃い、お料理好きの方には嬉しい設備◎機能性とデザイン性を両立した空間です。

洗面化粧台とバスルームを一体化したサニタリースペース。人気の3面鏡を採用し、後ろ姿のチェックまで簡単に。収納力も豊富でドライヤーやスキンケア用品などもすっきり収納できますよ。

玄関はスタイリッシュなデザインで、トールタイプの大容量シューズボックスを完備。ご家族全員の靴を整理整頓し、美しい空間を保てます。

バルコニーは東向きに設けられており、朝の気持ち良い陽光が差し込みます☀落ち着いた住宅街の眺望を楽しみながら、心地よい風を感じられるアウトドア空間です。
その他の室内・設備写真
東京グラウンド編集部の住まいレビュー
便利さと落ち着きを両立する東池袋エリア。徒歩圏内には大型ショッピングモール「サンシャインシティ」がありショッピング・映画・カフェ巡りなど、休日の楽しみも手軽に叶います✧『グランレーブ目白東』は東池袋駅から徒歩9分ほど。マンションの目の前に広がる「雑司ケ谷霊園」は、静かな環境と開放感をもたらしてくれます✿今回ご紹介するのは2階部分、1SLDKのお部屋。リノベーションが施された室内はシンプルなデザインで家具選びが楽しくなりそう。ちょっとしたデザインの遊び心が暮らしに彩りを添えてくれますよ。さらに書斎や趣味のスペース、子ども部屋としても活用できる多用途なサービスルームまで◎ぜひ現地で、この心地よい空間を体感してみてください。 ライター:hana【25K13】
この物件の毎月の支払いイメージを
試算してみませんか?
頭金や返済年数などを入力するだけで毎月の合計支払額をシミュレーションできます。
6,598
毎月の支払い予想シミュレーション
※試算結果はあくまで目安であり、実際の借り入れを保証するものではありません。
※物件によっては上記以外の別途費用が発生する場合もございます。詳しくはお問い合わせくださいませ。
住戸概要
[街の進化とともに歩む日々] グランレーブ目白東
東池袋駅
徒歩9分

落ち着いたブラウンタイルが印象的な『グランレーブ目白東』。重厚感のある鉄筋コンクリート造、地下1階付き地上5階建て・全33戸のマンションです。1994年築で新耐震基準を満たしており、安心して長くお住まいいただけます。

エントランスへ続くアプローチは、広々として落ち着いた雰囲気。丁寧に手入れされた植栽が彩りを添え、管理の行き届いた印象。入口前に設けられた階段が、住まう方のプライベートをさりげなく守ってくれます✿

駐車場は、スペースを有効活用できる立体駐車場タイプを採用。屋内に設けられているため、愛車を雨風や直射日光からしっかり守ることができます。防犯面でも安心の環境です◎

オートロックを抜けると、明るく開放的なロビーが広がります。開放感がありながらも落ち着いた雰囲気で、帰宅するたびにほっとできそう。上層階へは、エレベーターまたは階段でアクセス可能ですよ。
その他の共用部・設備写真
物件概要
設備・特徴
エレベーター オートロック 宅配BOX 防犯カメラ 新耐震基準適合
都心の利便性と穏やかな暮らしやすさを兼ね備えた東池袋エリア。東池袋駅からは、東京メトロ有楽町線で池袋駅までわずか1駅といった好アクセスです。さらに、副都心線や山手線など複数路線へスムーズに乗り換えができるため通勤や通学、お出かけにも便利◎駅周辺には、ショッピングモール「サンシャインシティ」をはじめ、スーパーやドラッグストア、コンビニなど生活に必要な施設が充実。休日には映画館や水族館などのレジャー施設も楽しめ、アクティブな毎日を送れます。一方で、少し駅を離れると落ち着いた住宅街が広がり、都会にいながら穏やかな時間が流れています。公園や緑地も多く子どもをのびのび遊ばせられる環境が整っているのも魅力。教育施設や医療機関も近隣に点在しており、子育て世帯にも安心の住環境です✿
アクセス
東京メトロ有楽町線 『東池袋』駅 徒歩9分
買い物
学区
※掲載している学区情報は、記事制作時点での参考情報です。
区域によっては学校の指定が異なる場合もありますので、詳細は必ずご確認ください。
その他
こちらの物件は弊社運営の別サイトでもご紹介中♪