間取り図
なら
仲介手数料 無料!
追加費用も一切なし
マンションは、“どこから買うか”で
支払う費用が変わります
仕組みを詳しく見る
月々の支払い目安を見る
※ローンの⽬安は、頭⾦ゼロ、借⼊年数35年、都市銀⾏・変動⾦利0.595%(優遇利⽤を想定。) 審査内容により、融資の⼀部または全部をご利⽤いただけない場合がございます。予めご了承ください。
間取り図
203号室
編集部が実際に現地を訪れ、見たもの・感じたことをレポート。
図面だけでは伝わらない"リアルな空気感"をお届けします。
更新日:2025/11/14
更新日:2025/11/14
センスが映える、しなやかな空間

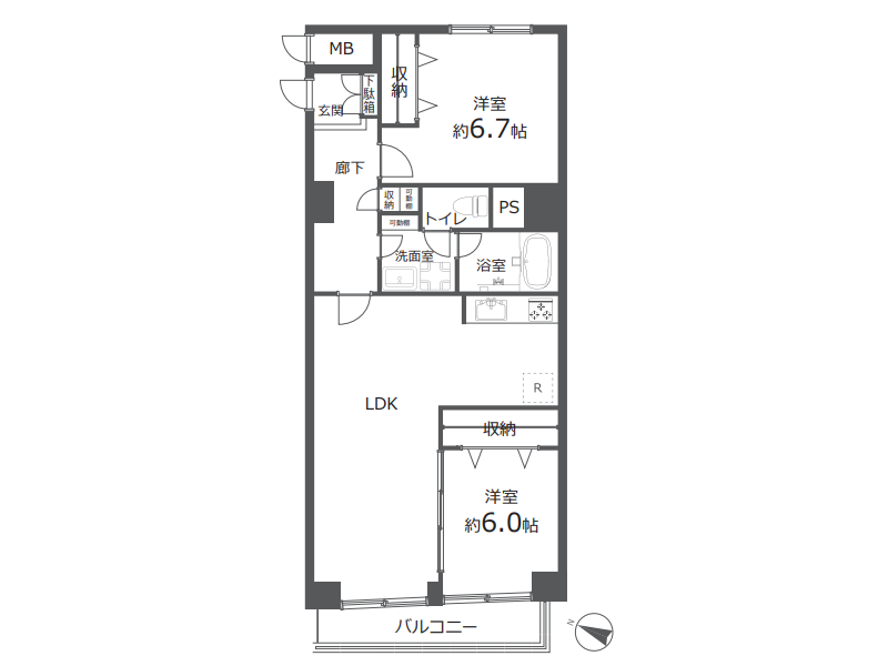
暮らしやすさにこだわった2LDKタイプのお部屋。単身の方からファミリー世帯まで幅広くフィットし、ライフスタイルの変化にも柔軟に対応できる間取りです♪リノベーションにより築年数を忘れるほどの綺麗な内装に一新。さらにペット飼育可なので、大切な家族と一緒に新生活を楽しめます。

L字型に広がるリビングダイニングキッチンは、ゆったりとした開放感が魅力。食事スペースとくつろぎの空間を自然にゾーニングでき、生活リズムにメリハリが生まれます。アクセントクロスが上品に彩りを添え、さりげなく個性を演出。毎日を気持ちよく過ごせる上質なメインルームですよ♡

メインルームと隣接した約6.0帖の洋室。リビングとつながるスライドドアを開放すれば、自由度の高い開放的な空間に変化します。さらに大きなクローゼットも完備されているので、お荷物の多い方でも安心!

シンプルなデザインのトイレは、アクセントクロスが入ることで程よい個性を演出。手洗い一体型なので節水対策にもなるのが嬉しいポイント。もちろん温水洗浄便座付きで、快適な使用感が得られます。

白をベースにしたサニタリースペースは、清潔で爽やかな雰囲気。洗濯機置き場・独立洗面台・バスルームが1ヶ所にまとまり、身支度がスムーズ。ミラーキャビネット仕様の洗面台は収納力が高く、細々したアイテムも整理できます✧毎朝の準備が気持ちよく進められそうですね。

奥行きのあるキッチンは、収納家具を追加しやすいゆとりのレイアウト。3口コンロとグリル付きで、調理の効率がぐんと上がりそうです◎上下の収納が充実しているので、調理器具や食品ストックもしまいやすいのが魅力。清潔感のある空間で、毎日の料理が楽しくなりますね。

独立した6.7帖の洋室は、静かに過ごしたい方にぴったりのゆとりある広さ。ダブルベッドを配置できるため、主寝室としての使い勝手も十分◎落ち着いた時間が流れる快適なお部屋です。

マンションは音羽通りに面していますが、窓には二重サッシが採用されているため室内はとても静か。バルコニーは控えめな広さのため、洗濯は浴室乾燥機を活用すると効率的ですよ。
その他の室内・設備写真
東京グラウンド編集部の住まいレビュー
『音羽サンハイツ』は護国寺駅から徒歩2分という便利なロケーションに佇むマンション。昭和築ではありますが、これまでに複数回の修繕工事が行われており共用部をはじめ建物全体が丁寧に維持されています。オートロック付きでセキュリティ面も心強く、女性の1人暮らしや小さなお子さまがいるご家庭でも安心してお住まいいただける環境ですよ◎今回ご紹介するのは2階部分に位置する2LDKのお部屋。リノベーションが施された室内は、ホワイト基調とした明るくクリーンな空間で、どんなインテリアとも調和しやすいシンプルなデザインが魅力です。レイアウトの自由度が高いため、自分らしいスタイルをそのまま住まいに反映できます。間取りにはゆとりがあり、ご家族そろって伸び伸びと暮らせる住環境が整っていると感じました♪ぜひ、気になる方は現地にてご確認くださいね。 ライター:hana【25K14】
この物件の毎月の支払いイメージを
試算してみませんか?
頭金や返済年数などを入力するだけで毎月の合計支払額をシミュレーションできます。
6,899
毎月の支払い予想シミュレーション
※試算結果はあくまで目安であり、実際の借り入れを保証するものではありません。
※物件によっては上記以外の別途費用が発生する場合もございます。詳しくはお問い合わせくださいませ。
住戸概要
こちらのお部屋は販売終了いたしました
過去に販売したお部屋の一部をご紹介。
住まい探しやリノベーションのヒントにご覧ください。




こちらのお部屋は販売終了いたしました
過去に販売したお部屋の一部をご紹介。
住まい探しやリノベーションのヒントにご覧ください。




[自然と歴史といっしょに] 音羽サンハイツ
護国寺駅
徒歩3分

護国寺駅から徒歩3分、音羽通りに堂々と佇むこちらのマンションが『音羽サンハイツ』。過去に大規模修繕工事・耐震補強工事が施され2023年7月現在も綺麗な状態が保たれています。

アプローチはフルフラット施工で、ベビーカーでの通行やキャリーバッグをお持ちの際もスムーズです◎エントランスまで距離があるため、プライバシー性も高いのではないでしょうか。

オートロックは非接触タイプを採用し、かざすだけで解錠ができ荷物を持っている時もスムーズです。エントランスを抜けると管理人室があるのでお困りの際は管理人さんにご相談くださいね。

館内にエレベーターは1基完備。全31戸のマンション規模を考えると、朝のラッシュ時でもそれほど混み合わず利用できるでしょう◎
その他の共用部・設備写真
物件概要
設備・特徴
エレベーター オートロック 防犯カメラ 24時間ゴミ出し可24時間セキュリティ 新耐震基準適合 耐震補強工事実施済
護国寺駅は都心への優れたアクセスと落ち着いた住環境が共存する魅力的なエリアです。東京メトロ有楽町線が乗り入れており池袋・飯田橋・有楽町方面へ乗り換えなしでアクセスできるため、通勤・通学の負担を軽減してくれます。駅周辺は大通りが整備され、明るく歩きやすい道が多いのが特徴。夜間でも安心感があり、初めての1人暮らしやファミリー層からも支持を集めています。また、由緒ある護国寺が身近にあることで、周囲には豊かな緑が広がり、四季の移ろいを感じられる静かなロケーションです。
アクセス
東京メトロ有楽町線 『護国寺』駅 徒歩3分
東京メトロ有楽町線 『江戸川橋』駅 徒歩10分
東京メトロ丸ノ内線 『茗荷谷』駅 徒歩12分
買い物
学区
※掲載している学区情報は、記事制作時点での参考情報です。
区域によっては学校の指定が異なる場合もありますので、詳細は必ずご確認ください。
その他
こちらの物件は弊社運営の別サイトでもご紹介中♪